RE
Thingwall Road, Wirral, Merseyside, CH61
By Redwing
£ 100,000
Reviews
3 out of 5 stars
Redwing says ..
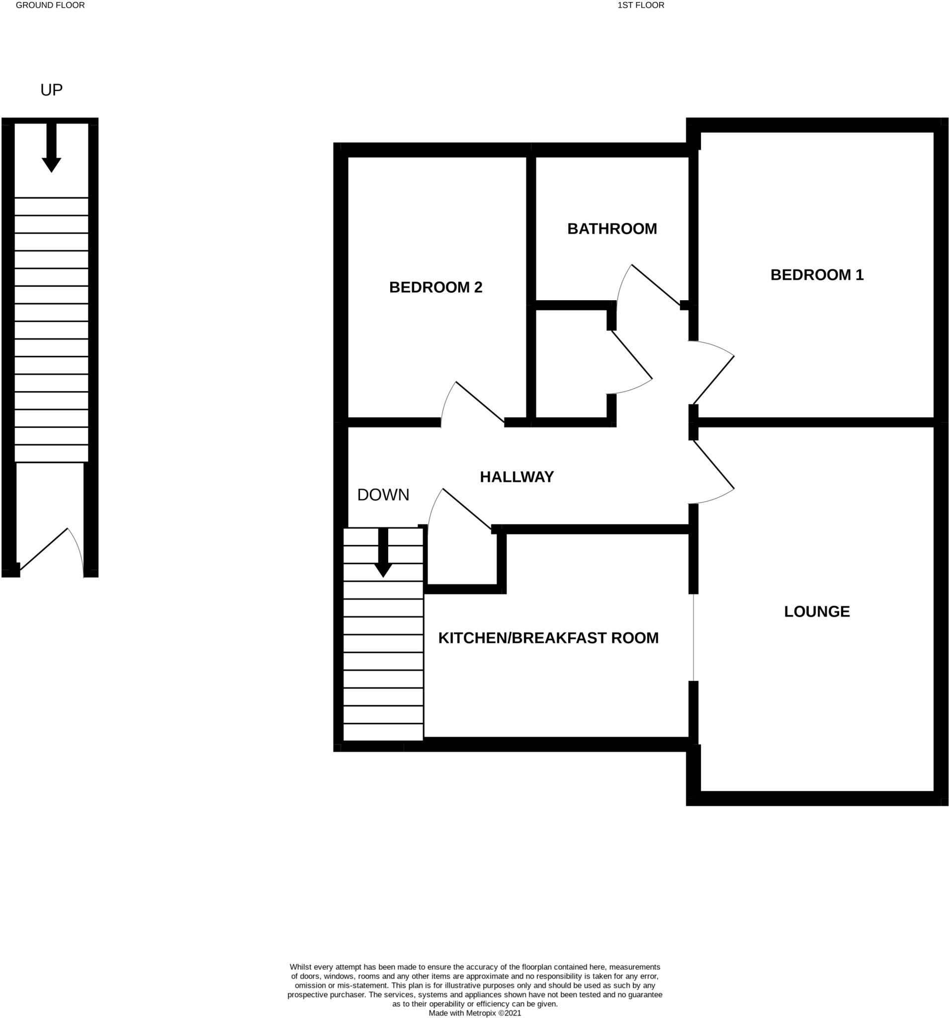
A rare opportunity to acquire a two-bedroom retirement apartment located in the picturesque village of Irby. The property is set out over the first floor but has its own ground floor entrance. The accommodation includes, a hall, lounge, generous refitted kitchen with breakfast area, two good bedr...
Property Oracle says ..
Therefore, we give this property 6 / 10. *Disclaimer: This is our option and does constitute a recommendation or financial advice. Do your own research. *
- Price
- 6
- Condition
- 7
- Location
- 7
- Land
- 6
- Bedrooms
- 2
- Bathrooms
- 0
- Sqft (est)
- 775.00
The heatmap indicates the level of crime in the area. The color of the heatmap indicates the crime severity and recency.
Metrics Year-on-Year
- Average area value
- 429,000.00 £Increased by 36.65 %
- Est sale value
- 356,500.00 £Increased by 41.54 %
- Average area rental value
- 1,163.00 £/moIncreased by 0.43 %
- Est letting value
- 775.00 £/moUnchanged by 0.00 %
- Est rental Yield
- 3.25 %Decreased by 26.64 %
- Crime Rate
- 2.00 %Unchanged by 0.00 %
from 313,930.00 £
from 251,875.00 £
from 1,158.00 £/mo
from 775.00 £/mo
from 4.43 %
from 2.00 %
Agent Activity
Redwing created the listing.
Nearby Schools
| Name | Type | Ofsted | Distance |
|---|---|---|---|
| Irby Primary School | Community School | Outstanding | 0.39 KM |
| Pensby High School | Foundation School | Good | 1.17 KM |
| South And West Hub - Pensby Children'S Centre | Children's Centre | 1.26 KM | |
| Ladymount Catholic Primary School | Voluntary Aided School | Good | 1.67 KM |
| Greasby Junior School | Community School | Good | 2.02 KM |
Images
Nearby Streets
| Name | Average Price | Average Sqft | Distance |
|---|---|---|---|
| Foothpath 45 | £ 160,000 | 0 | 0.00 KM |
| Manor Road | £ 0 | 0 | 0.00 KM |
| Devonshire Road | £ 0 | 0 | 0.00 KM |
| Dawlish Road | £ 550,000 | 0 | 0.00 KM |
| Edgemoor Drive | £ 300,000 | 0 | 0.00 KM |
Nearby Transport
| Name | NLC | TLC | Distance |
|---|---|---|---|
| Upton (Merseyside) | 2141 | UPT | 4.85 KM |
| Heswall | 2138 | HSW | 5.12 KM |
| Moreton (Merseyside) | 2151 | MRT | 5.94 KM |
| Leasowe | 2237 | LSW | 6.22 KM |
| Meols | 2254 | MEO | 6.81 KM |
Nearby Listings
| Address | Price | Type | Score | Distance |
|---|---|---|---|---|
| Thingwall Road, Wirral, Merseyside, CH61 | £ 100,000 | BUY | 6 / 10 | 0.00 KM |
| Thingwall Road, Wirral, Merseyside, CH61 | £ 92,000 | BUY | 6 / 10 | 0.12 KM |
| Coombe Road, Irby, Wirral | £ 290,000 | BUY | 7 / 10 | 0.17 KM |
| Coniston Road, Irby, Wirral | £ 350,000 | BUY | 7 / 10 | 0.18 KM |
| Laburnum Grove, Irby | £ 349,950 | BUY | 7 / 10 | 0.27 KM |
Nearby Properties
| Address | Price | Distance |
|---|---|---|
| 75 Thingwall Road | £ 235,000 | 0.14 KM |
| 93 Thingwall Road | £ 440,000 | 0.14 KM |
| 67 Thingwall Road | £ 232,358 | 0.14 KM |
| 95 Thingwall Road | £ 199,950 | 0.14 KM |
| 91 Thingwall Road | £ 365,000 | 0.14 KM |