Alan de Maid says ..
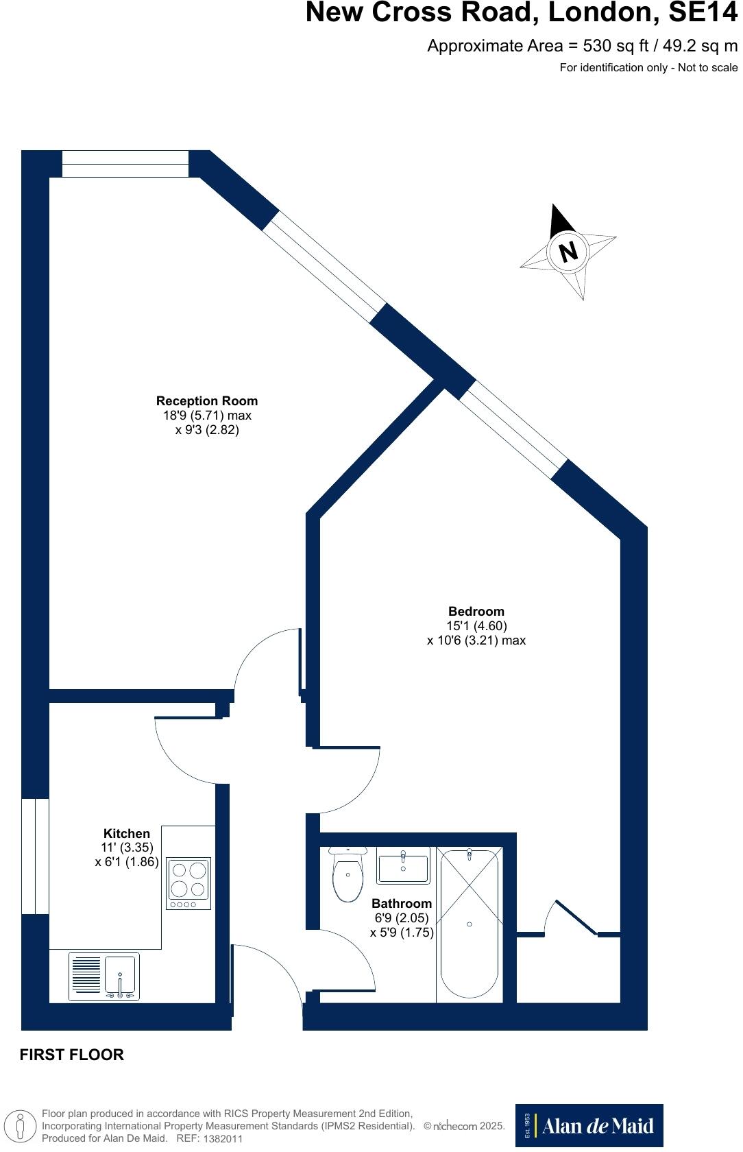
Alan de Maid are delighted to present this charming one bedroom Victorian conversion flat ideally located in the heart of New Cross, offering excellent transport links to Central London via DLR and mainline services. The property features a spacious lounge, a modern fitted kitchen, and a wel...
Property Oracle says ..
This is a 2-bedroom flat on New Cross Road, London. The property is in a good location, with convenient access to transportation, schools, and local amenities. The flat appears to be in generally good condition, although some areas could benefit from modernization. The property has limited land. The asking price of £310,000 is slightly above the average price per square foot for the area, but this may be justified by the property’s location and condition. Overall, this property presents a solid opportunity for buyers looking for a well-located flat in London.
Therefore, we give this property 6 / 10. *Disclaimer: This is our option and does constitute a recommendation or financial advice. Do your own research. *
- Price
- 7
- Condition
- 7
- Location
- 7
- Land
- 3
- Bedrooms
- 2
- Bathrooms
- 0
- Sqft (est)
- 393.25
The heatmap indicates the level of crime in the area. The color of the heatmap indicates the crime severity and recency.
Metrics Year-on-Year
- Average area value
- 479,495.00 £Increased by 10.34 %
- Est sale value
- 249,320.50 £Increased by 1.28 %
- Average area rental value
- 2,475.00 £/moIncreased by 16.09 %
- Est letting value
- 1,179.75 £/moUnchanged by 0.00 %
- Est rental Yield
- 6.19 %Increased by 5.09 %
- Crime Rate
- 10.00 %Unchanged by 0.00 %
Agent Activity
Alan de Maid created the listing.
Nearby Schools
| Name | Type | Ofsted | Distance |
|---|---|---|---|
| Addey And Stanhope School | Voluntary Aided School | Good | 0.26 KM |
| Lucas Vale Primary School | Community School | Requires improvement | 0.48 KM |
| Goldsmiths College, University Of London | Higher Education Institutions | 0.56 KM | |
| Myatt Garden Primary School | Community School | Good | 0.58 KM |
| St Joseph'S Catholic Primary School | Voluntary Aided School | Good | 0.68 KM |
Images
Nearby Streets
| Name | Average Price | Average Sqft | Distance |
|---|---|---|---|
| New Cross Road | £ 0 | 0 | 0.00 KM |
| Mornington Road | £ 313,333 | 0 | 0.00 KM |
| Elgar Close | £ 0 | 0 | 0.00 KM |
| Pagnell Street | £ 0 | 0 | 0.00 KM |
| St. Nicholas Street | £ 0 | 0 | 0.00 KM |
Nearby Transport
| Name | NLC | TLC | Distance |
|---|---|---|---|
| Deptford | 5145 | DEP | 0.60 KM |
| St Johns | 5059 | SAJ | 1.09 KM |
| New Cross Gate | 5345 | NXG | 1.10 KM |
| Brockley | 5404 | BCY | 1.43 KM |
| Greenwich | 5146 | GNW | 1.92 KM |
Nearby Listings
| Address | Price | Type | Score | Distance |
|---|---|---|---|---|
| New Cross Road, London | £ 310,000 | BUY | 6 / 10 | 0.00 KM |
| 390 New Cross Road, London , SE14 | £ 265,000 | BUY | Unknown | 0.02 KM |
| New Cross Road, London, SE14 | £ 290,000 | BUY | 7 / 10 | 0.04 KM |
| New Cross Road, London, SE14 | £ 325,000 | BUY | 7 / 10 | 0.05 KM |
| New Cross Road, London | £ 425,000 | BUY | 6 / 10 | 0.05 KM |
Nearby Properties
| Address | Price | Distance |
|---|---|---|
| 424 New Cross Road | £ 310,000 | 0.01 KM |
| 404 New Cross Road | £ 145,000 | 0.01 KM |
| 450 New Cross Road | £ 60,000 | 0.01 KM |
| 408 New Cross Road | £ 700,000 | 0.01 KM |
| 402 New Cross Road | £ 367,500 | 0.01 KM |