Pinnacle House, Battersea Reach, Juniper Drive, London, SW18
By BidX1
£ 990,000
Reviews
3 out of 5 stars
BidX1 says ..
To be sold at an online auction. For further information, viewing times and legal documentation, please visit bidx1.com.
Property Oracle says ..
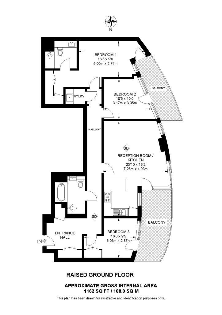
This property is a three-bedroom, two-bathroom apartment located in Pinnacle House, Battersea Reach, a desirable development in Wandsworth, London. The apartment itself appears to be modern, well-maintained, and finished to a high standard. Images show a spacious open-plan living area, a modern kitchen, and well-appointed bathrooms. Two balconies are also present, offering outdoor space. The development benefits from secure access, potentially with a concierge and on-site facilities. This area offers convenient access to various transport links, including Wandsworth Town station, providing good connectivity to central London. Proximity to several well-regarded schools adds to the family-friendly appeal of the location. However, it’s crucial to note that the square footage of the property and its plot are not explicitly stated which makes a precise assessment of value and space difficult. In addition, the information provided on nearby properties is lacking detail for proper comparative market analysis. The listing’s presentation suggests a luxury apartment in a well-connected, desirable area. To determine if the asking price is optimal, more precise details on square footage and a more complete analysis of recent comparable sales are essential. This would allow for a deeper investigation of the true price per square foot and assist in giving a precise determination of the market value.
Therefore, we give this property 6 / 10. *Disclaimer: This is our option and does constitute a recommendation or financial advice. Do your own research. *
- Price
- 7
- Condition
- 9
- Location
- 8
- Land
- 2
- Bedrooms
- 3
- Bathrooms
- 2
The heatmap indicates the level of crime in the area. The color of the heatmap indicates the crime severity and recency.
Metrics Year-on-Year
- Average area value
- 977,174.00 £Increased by 2.62 %
- Average area rental value
- 2,684.00 £/moIncreased by 1.51 %
- Est rental Yield
- 3.30 %Decreased by 0.90 %
- Crime Rate
- 5.00 %Unchanged by 0.00 %
Agent Activity
BidX1 created the listing.
Nearby Schools
| Name | Type | Ofsted | Distance |
|---|---|---|---|
| St Faith'S Cofe Primary School | Voluntary Aided School | Good | 0.48 KM |
| St Anne'S Cofe Primary School | Voluntary Aided School | Good | 0.87 KM |
| Park House School | Other Independent Special School | Outstanding | 0.93 KM |
| Thomas'S Fulham | Other Independent School | 0.94 KM | |
| Anglo Portuguese School Of London | Free Schools | 0.97 KM |
Images
Nearby Streets
| Name | Average Price | Average Sqft | Distance |
|---|---|---|---|
| Wandsworth Bridge | £ 0 | 0 | 0.00 KM |
| Marl Road | £ 0 | 0 | 0.00 KM |
| Odyssey Way | £ 0 | 0 | 0.00 KM |
| Jews Row | £ 487,500 | 0 | 0.00 KM |
| Smugglers Way | £ 0 | 0 | 0.00 KM |
Nearby Transport
| Name | NLC | TLC | Distance |
|---|---|---|---|
| Wandsworth Town | 5576 | WNT | 0.41 KM |
| Imperial Wharf | 9586 | IMW | 1.30 KM |
| Clapham Junction | 5595 | CLJ | 1.67 KM |
| Earlsfield | 5584 | EAD | 2.37 KM |
| West Brompton | 8875 | WBP | 2.86 KM |
Nearby Listings
| Address | Price | Type | Score | Distance |
|---|---|---|---|---|
| Pinnacle House, Wandsworth, Juniper Drive, SW18 | £ 800,000 | BUY | 6 / 10 | 0.00 KM |
| Juniper Drive, London, SW18 1JE | £ 870,000 | BUY | 6 / 10 | 0.00 KM |
| Pinnacle House, Battersea Reach | £ 1,345,000 | BUY | 8 / 10 | 0.00 KM |
| Juniper Drive, London, SW18 | £ 575,000 | BUY | 7 / 10 | 0.00 KM |
| Juniper Drive, SW18 1JE | £ 1,400,000 | BUY | 7 / 10 | 0.00 KM |
Nearby Properties
| Address | Price | Distance |
|---|---|---|
| 12 Eltringham Street | £ 481,250 | 0.18 KM |
| 6 Eltringham Street | £ 332,000 | 0.18 KM |
| 22 Eltringham Street | £ 250,000 | 0.18 KM |
| 32 Eltringham Street | £ 735,000 | 0.18 KM |
| 26 Eltringham Street | £ 794,000 | 0.18 KM |