Prince Arthur Road, Hampstead, London, NW3
By Foxtons
£ 700,000
Reviews
3 out of 5 stars
Foxtons says ..
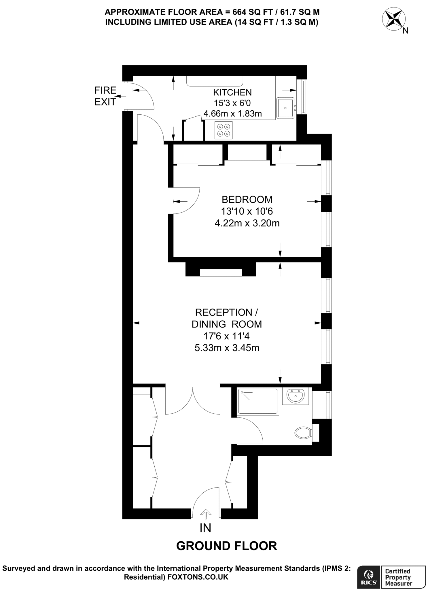
Refurbished throughout to an exceptional standard and fabulously appointed throughout, this delightful 1 bedroom flat in Hampstead boasts elegant, large format tiled floors and integrated LED lighting.
Property Oracle says ..
This is a modern one-bedroom flat in Hampstead. The property is in excellent condition and benefits from a modern kitchen and bathroom. The property is located in a desirable area, close to schools and transportation. The flat is listed below the average price for the area, making it a potentially good value investment.
Therefore, we give this property 7 / 10. *Disclaimer: This is our option and does constitute a recommendation or financial advice. Do your own research. *
- Price
- 7
- Condition
- 9
- Location
- 9
- Land
- 3
- Bedrooms
- 1
- Bathrooms
- 1
- Sqft (est)
- 664.13
The heatmap indicates the level of crime in the area. The color of the heatmap indicates the crime severity and recency.
Metrics Year-on-Year
- Average area value
- 2,218,571.00 £Increased by 9.99 %
- Est sale value
- 1,241,258.97 £Increased by 16.30 %
- Average area rental value
- 3,652.00 £/moIncreased by 18.30 %
- Est letting value
- 1,992.39 £/moIncreased by 50.00 %
- Est rental Yield
- 1.98 %Increased by 7.61 %
- Crime Rate
- 10.00 %Unchanged by 0.00 %
Agent Activity
Foxtons created the listing.
Nearby Schools
| Name | Type | Ofsted | Distance |
|---|---|---|---|
| North Bridge House Senior School | Other Independent School | 0.09 KM | |
| St Anthony'S Preparatory School | Other Independent School | 0.11 KM | |
| Fitzjohn'S Primary School | Community School | Good | 0.13 KM |
| Lsi Independent College | Other Independent School | Good | 0.19 KM |
| Devonshire House Preparatory School | Other Independent School | 0.24 KM |
Images
Nearby Streets
| Name | Average Price | Average Sqft | Distance |
|---|---|---|---|
| Oriel Court | £ 1,395,000 | 0 | 0.00 KM |
| Church Row | £ 850,000 | 0 | 0.00 KM |
| Holly Berry Lane | £ 0 | 0 | 0.00 KM |
| Stamford Close | £ 0 | 0 | 0.00 KM |
| Cannon Lane | £ 15,000,000 | 0 | 0.00 KM |
Nearby Transport
| Name | NLC | TLC | Distance |
|---|---|---|---|
| Finchley Road And Frognal | 1445 | FNY | 0.96 KM |
| Hampstead Heath | 1413 | HDH | 1.09 KM |
| South Hampstead | 1451 | SOH | 1.50 KM |
| West Hampstead | 1421 | WHD | 1.90 KM |
| West Hampstead Thameslink | 1525 | WHP | 1.92 KM |
Nearby Listings
| Address | Price | Type | Score | Distance |
|---|---|---|---|---|
| Prince Arthur Road, Hampstead, London, NW3 | £ 700,000 | BUY | 7 / 10 | 0.00 KM |
| Prince Arthur Road, Hampstead | £ 1,500,000 | BUY | 6 / 10 | 0.02 KM |
| Greenhill Prince Arthur Road Hampstead Village NW3 | £ 699,950 | BUY | 6 / 10 | 0.06 KM |
| Prince Arthur Road, Hampstead | £ 1,200,000 | BUY | Unknown | 0.07 KM |
| Prince Arthur Road, Hampstead Village | £ 750,000 | BUY | 6 / 10 | 0.07 KM |
Nearby Properties
| Address | Price | Distance |
|---|---|---|
| Greenhill | £ 390,000 | 0.02 KM |
| 17 Vane Close | £ 1,220,000 | 0.09 KM |
| 10 Vane Close | £ 1,012,500 | 0.09 KM |
| 21 Vane Close | £ 410,000 | 0.09 KM |
| 19 Vane Close | £ 1,665,000 | 0.11 KM |