Lower Cloister Walk, Exminster
By West of Exe
£ 220,000
Reviews
2 out of 5 stars
West of Exe says ..
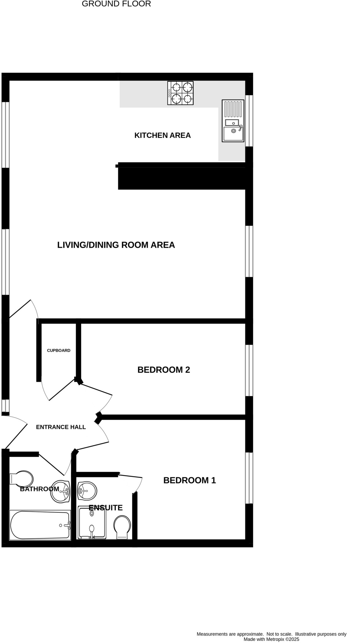
Superb two double bedroom apartment situated in a tucked away location within the beautiful grounds of Devington Park, Exminster. This attractive property offers light and spacious accommodation with high ceilings and tall windows, and comprises of; large double aspect open plan living/dining and...
Property Oracle says ..
This two-bedroom apartment in Lower Cloister Walk, Exminster, is situated within the attractive grounds of the Grade II listed Devington Park. The property boasts a modern interior, including an updated kitchen and bathrooms, though the square footage and lack of private outdoor space are noteworthy considerations. The communal grounds offer an attractive amenity. The location benefits from relatively easy access to transport links to Exeter and beyond, and is close to several schools, although further investigation into the specific amenities within easy reach would improve the overall assessment. The price is in line with comparable properties in the area based on the available data, suggesting reasonable value. While the property is presented well, buyers should undertake a thorough survey and assess the relative lack of private outdoor space against their needs and priorities.
Therefore, we give this property 5 / 10. *Disclaimer: This is our option and does constitute a recommendation or financial advice. Do your own research. *
- Price
- 7
- Condition
- 7
- Location
- 7
- Land
- 1
- Bedrooms
- 2
- Bathrooms
- 2
- Sqft (est)
- 700.00
The heatmap indicates the level of crime in the area. The color of the heatmap indicates the crime severity and recency.
Metrics Year-on-Year
- Average area value
- 287,463.00 £Decreased by 27.54 %
- Est sale value
- 235,900.00 £Increased by 8.71 %
- Average area rental value
- 1,250.00 £/moDecreased by 10.65 %
- Est letting value
- 700.00 £/moUnchanged by 0.00 %
- Est rental Yield
- 5.22 %Increased by 23.40 %
- Crime Rate
- 13.00 %Unchanged by 0.00 %
Agent Activity
West of Exe marked this listing as sold.
West of Exe created the listing.
Nearby Schools
| Name | Type | Ofsted | Distance |
|---|---|---|---|
| The New School | Other Independent School | 0.97 KM | |
| Exminster Community Primary | Community School | Good | 0.97 KM |
| Countess Wear Community School | Community School | Requires improvement | 2.00 KM |
| Countess Wear Exeter | Children's Centre | 2.06 KM | |
| Infocus School | Non-maintained Special School | Special Measures | 2.50 KM |
Images
Nearby Streets
| Name | Average Price | Average Sqft | Distance |
|---|---|---|---|
| Lime Grove | £ 485,000 | 0 | 0.00 KM |
| Sannerville Way | £ 525,000 | 0 | 0.00 KM |
| Hill Crest | £ 275,000 | 0 | 0.00 KM |
| Medland Way | £ 425,000 | 0 | 0.00 KM |
| Stapleton Way | £ 441,111 | 0 | 0.00 KM |
Nearby Transport
| Name | NLC | TLC | Distance |
|---|---|---|---|
| Newcourt | 9589 | NCO | 4.27 KM |
| Topsham | 5758 | TOP | 4.42 KM |
| Digby And Sowton | 5753 | DIG | 4.85 KM |
| Polsloe Bridge | 3422 | POL | 5.40 KM |
| Exeter St Thomas | 3414 | EXT | 5.41 KM |
Nearby Listings
| Address | Price | Type | Score | Distance |
|---|---|---|---|---|
| Lower Cloister Walk, Exminster | £ 220,000 | BUY | 5 / 10 | 0.00 KM |
| Lower Cloister Walk, Devington Park, Exminster, EX6 | £ 217,500 | BUY | 6 / 10 | 0.00 KM |
| Lawrence Walk, Exminster | £ 315,000 | BUY | Unknown | 0.04 KM |
| Mansion House, Devington Park, Exminster, Exeter | £ 190,000 | BUY | 6 / 10 | 0.06 KM |
| Dartington Walk, Exminster | £ 265,000 | BUY | 7 / 10 | 0.06 KM |
Nearby Properties
| Address | Price | Distance |
|---|---|---|
| 1 Upper Cloister Walk | £ 105,000 | 0.01 KM |
| 4 Upper Cloister Walk | £ 157,000 | 0.01 KM |
| 7 Upper Cloister Walk | £ 182,500 | 0.01 KM |
| 8 Upper Cloister Walk | £ 195,000 | 0.01 KM |
| 2 Upper Cloister Walk | £ 181,000 | 0.01 KM |