HA
Middle Stoke, Limpley Stoke, BA2
By Hamptons Sales
£ 1,000,000
Reviews
3 out of 5 stars
Hamptons Sales says ..
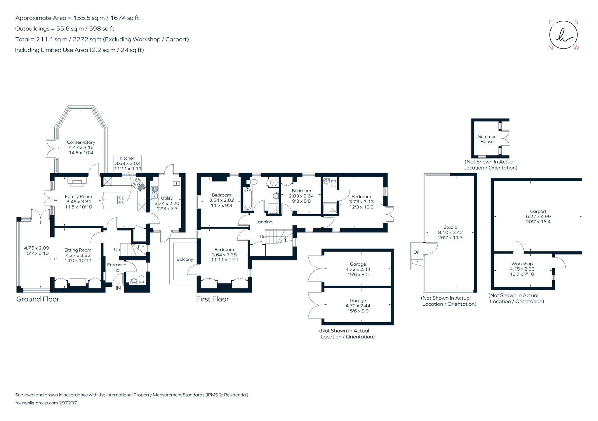
Located in the most sought after Limpley Stoke offering sensational views across the valley. Situated neatly over two floors offering four bedrooms as well as an outbuilding which would be perfect for home working. The property has a double car port incorporating an additional space used as a wor...
Property Oracle says ..
Therefore, we give this property 7 / 10. *Disclaimer: This is our option and does constitute a recommendation or financial advice. Do your own research. *
- Price
- 7
- Condition
- 8
- Location
- 8
- Land
- 7
- Bedrooms
- 4
- Bathrooms
- 2
- Sqft (est)
- 2,272.26
The heatmap indicates the level of crime in the area. The color of the heatmap indicates the crime severity and recency.
Metrics Year-on-Year
- Average area value
- 578,750.00 £Decreased by 10.96 %
- Est sale value
- 1,208,842.32 £Increased by 11.30 %
- Average area rental value
- 1,548.00 £/moIncreased by 13.82 %
- Est letting value
- 2,272.26 £/moUnchanged by 0.00 %
- Est rental Yield
- 3.21 %Increased by 27.89 %
- Crime Rate
- 47.00 %Unchanged by 0.00 %
from 650,000.00 £
from 1,086,140.28 £
from 1,360.00 £/mo
from 2,272.26 £/mo
from 2.51 %
from 47.00 %
Agent Activity
Hamptons Sales created the listing.
Nearby Schools
| Name | Type | Ofsted | Distance |
|---|---|---|---|
| Freshford Church School | Academy Converter | 1.43 KM | |
| Monkton Senior School | Other Independent School | 1.67 KM | |
| Ralph Allen School | Academy Converter | Good | 2.40 KM |
| Monkton Prep School | Other Independent School | 2.86 KM | |
| Winsley Coe Vc Primary School | Academy Converter | 3.52 KM |
Images
Nearby Streets
| Name | Average Price | Average Sqft | Distance |
|---|---|---|---|
| The Glebe | £ 0 | 0 | 0.00 KM |
| Blackberry Lane | £ 8,950,000 | 0 | 0.00 KM |
| Saint Michaels Court | £ 1,625,000 | 0 | 0.00 KM |
| Rose Cottages | £ 0 | 0 | 0.00 KM |
| St. Michaels Court | £ 0 | 0 | 0.00 KM |
Nearby Transport
| Name | NLC | TLC | Distance |
|---|---|---|---|
| Freshford | 3344 | FFD | 1.77 KM |
| Avoncliff | 3265 | AVF | 3.96 KM |
| Bath Spa | 3271 | BTH | 5.71 KM |
| Bradford-On-Avon | 3341 | BOA | 7.11 KM |
| Oldfield Park | 3219 | OLF | 7.99 KM |
Nearby Listings
| Address | Price | Type | Score | Distance |
|---|---|---|---|---|
| Middle Stoke, Limpley Stoke, BA2 | £ 1,000,000 | BUY | 7 / 10 | 0.00 KM |
| Middle Stoke, Limpley Stoke, Bath, Wiltshire, BA2 | £ 950,000 | BUY | 7 / 10 | 0.08 KM |
| Middle Stoke, Limpley Stoke, Bath, BA2 7GF | £ 300,000 | BUY | 5 / 10 | 0.08 KM |
| Middle Stoke, Limpley Stoke, Bath, Wiltshire, BA2 | £ 750,000 | BUY | 7 / 10 | 0.09 KM |
| Midford Lane, Limpley Stoke, Bath, Somerset, BA2 | £ 1,575,000 | BUY | 7 / 10 | 0.15 KM |
Nearby Properties
| Address | Price | Distance |
|---|---|---|
| 26 Middle Stoke | £ 390,000 | 0.09 KM |
| 39 Middle Stoke | £ 374,000 | 0.09 KM |
| 25 Middle Stoke | £ 500,000 | 0.09 KM |
| 19 Middle Stoke | £ 350,000 | 0.09 KM |
| 30 Middle Stoke | £ 450,000 | 0.09 KM |