JO
Taylors Lake, Pembroke, Pembrokeshire, SA71
By John Francis
£ 325,000
John Francis says ..
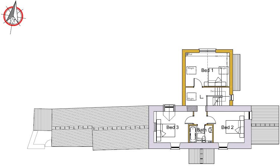
Former Farmhouse for renovation including 20.91 acres or thereabout.. Planning permission (ref 22/0246/PA) is in place to renovate, alter and extend this former farmhouse to create a 4 bedroom family home with garage. The site is set in a rural location, however, accessible approx. 1 m...
- Bedrooms
- 0
- Bathrooms
- 0
The heatmap indicates the level of crime in the area. The color of the heatmap indicates the crime severity and recency.
Metrics Year-on-Year
- Average area value
- 278,905.00 £Increased by 2.67 %
- Average area rental value
- 800.00 £/moDecreased by 34.53 %
- Est rental Yield
- 3.44 %Decreased by 36.30 %
- Crime Rate
- 0.00 %
from 271,663.00 £
from 1,222.00 £/mo
from 5.40 %
from 0.00 %
Agent Activity
John Francis created the listing.
Nearby Schools
| Name | Type | Ofsted | Distance |
|---|---|---|---|
| Monkton Priory Cp School | Welsh Establishment | 1.21 KM | |
| Ysgol Harri Tudur/Henry Tudor School | Welsh Establishment | 2.27 KM | |
| Ysgol Gelli Aur Golden Grove | Welsh Establishment | 2.35 KM | |
| Pembroke Dock Cp School | Welsh Establishment | 3.00 KM | |
| Pennar Community School | Welsh Establishment | 3.58 KM |
Images
Nearby Streets
| Name | Average Price | Average Sqft | Distance |
|---|---|---|---|
| Mountain Lane | £ 145,000 | 0 | 0.00 KM |
| Angle Road | £ 235,000 | 0 | 0.00 KM |
| South Terrace | £ 170,000 | 0 | 0.00 KM |
| Marshal Road | £ 0 | 0 | 0.00 KM |
| Church Terrace | £ 0 | 0 | 0.00 KM |
Nearby Transport
| Name | NLC | TLC | Distance |
|---|---|---|---|
| Pembroke | 4101 | PMB | 2.82 KM |
| Pembroke Dock | 4102 | PMD | 3.42 KM |
| Lamphey | 4084 | LAM | 6.28 KM |
Nearby Listings
| Address | Price | Type | Score | Distance |
|---|---|---|---|---|
| Taylors Lake, Pembroke, Pembrokeshire, SA71 | £ 325,000 | BUY | Unknown | 0.00 KM |
| Taylors Lake, Pembroke, Pembrokeshire, SA71 | £ 240,000 | BUY | 5 / 10 | 0.01 KM |
| Maidenwells, Pembroke, Pembrokeshire, SA71 | £ 425,000 | BUY | 6 / 10 | 0.69 KM |
| Gilead, Maidenwells, Pembroke, Pembrokeshire, SA71 | £ 225,000 | BUY | 6 / 10 | 1.14 KM |
| Long Mains, Monkton, Pembroke, SA71 | £ 150,000 | BUY | 6 / 10 | 1.15 KM |
Nearby Properties
| Address | Price | Distance |
|---|---|---|
| Spring View | £ 240,000 | 0.92 KM |
| 106 Angle Road | £ 77,500 | 1.06 KM |
| 13 South Terrace | £ 120,000 | 1.13 KM |
| 5 South Terrace | £ 164,000 | 1.13 KM |
| 30 South Terrace | £ 106,000 | 1.13 KM |