Quantum Estate Agents says ..
A two bedroom first floor flat sat within the Barbican Mews development, offering a great investment opportunity or first time home. The property is currently tenanted however can be sold with vacant possession. Improvements can be made to boost the property's appeal and value. The flat ...
Property Oracle says ..
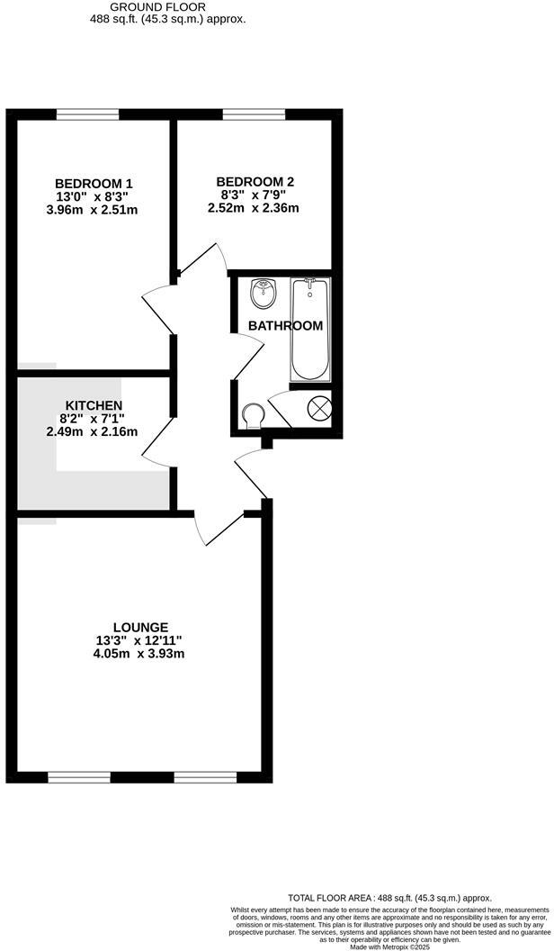
This is a 2-bedroom flat located in Fishergate, York. The property is in reasonable condition but would benefit from some modernisation. The kitchen and bathroom, in particular, look dated. The property has a small communal garden to the front. The property is located close to local schools and transportation links. The property is listed for £187,500, which seems reasonable given its size and location.
Therefore, we give this property 6 / 10. *Disclaimer: This is our option and does constitute a recommendation or financial advice. Do your own research. *
- Price
- 8
- Condition
- 6
- Location
- 7
- Land
- 3
- Bedrooms
- 2
- Bathrooms
- 1
- Sqft (est)
- 487.61
The heatmap indicates the level of crime in the area. The color of the heatmap indicates the crime severity and recency.
Metrics Year-on-Year
- Average area value
- 391,421.00 £Increased by 20.41 %
- Est sale value
- 195,044.00 £Decreased by 8.05 %
- Average area rental value
- 1,243.00 £/moDecreased by 1.97 %
- Est letting value
- 487.61 £/moUnchanged by 0.00 %
- Est rental Yield
- 3.81 %Decreased by 18.59 %
- Crime Rate
- 5.00 %Unchanged by 0.00 %
Agent Activity
Quantum Estate Agents created the listing.
Nearby Schools
| Name | Type | Ofsted | Distance |
|---|---|---|---|
| St Lawrence'S Church Of England Primary Academy | Academy Sponsor Led | Requires improvement | 0.48 KM |
| St Lawrence'S Children'S Centre | Children's Centre | 0.48 KM | |
| St George'S Catholic Primary School - A Catholic Voluntary Academy | Academy Converter | 0.61 KM | |
| Fishergate Primary School | Community School | Good | 0.69 KM |
| The Avenues Children'S Centre | Children's Centre | 1.25 KM |
Images
Nearby Streets
| Name | Average Price | Average Sqft | Distance |
|---|---|---|---|
| Lawrence Court | £ 0 | 0 | 0.00 KM |
| Lawrence Lane | £ 0 | 0 | 0.00 KM |
| Garden Court | £ 0 | 0 | 0.00 KM |
| James Street | £ 0 | 0 | 0.00 KM |
| St Ann's Court | £ 0 | 0 | 0.00 KM |
Nearby Transport
| Name | NLC | TLC | Distance |
|---|---|---|---|
| York | 8263 | YRK | 2.67 KM |
| Poppleton | 8254 | POP | 9.10 KM |
Nearby Listings
| Address | Price | Type | Score | Distance |
|---|---|---|---|---|
| Barbican Mews, York | £ 200,000 | BUY | 6 / 10 | 0.00 KM |
| Barbican Mews, York | £ 192,500 | BUY | 6 / 10 | 0.00 KM |
| Barbican Mews, York | £ 190,000 | BUY | 6 / 10 | 0.00 KM |
| Barbican Mews, York | £ 200,000 | BUY | 5 / 10 | 0.00 KM |
| Barbican Mews, York | £ 210,000 | BUY | 6 / 10 | 0.00 KM |
Nearby Properties
| Address | Price | Distance |
|---|---|---|
| 37 Barbican Mews | £ 142,500 | 0.01 KM |
| 41 Barbican Mews | £ 170,000 | 0.01 KM |
| 38 Barbican Mews | £ 131,000 | 0.01 KM |
| 2 Barbican Mews | £ 223,000 | 0.01 KM |
| 22 Barbican Mews | £ 27,500 | 0.01 KM |