ParaBar Estates says ..
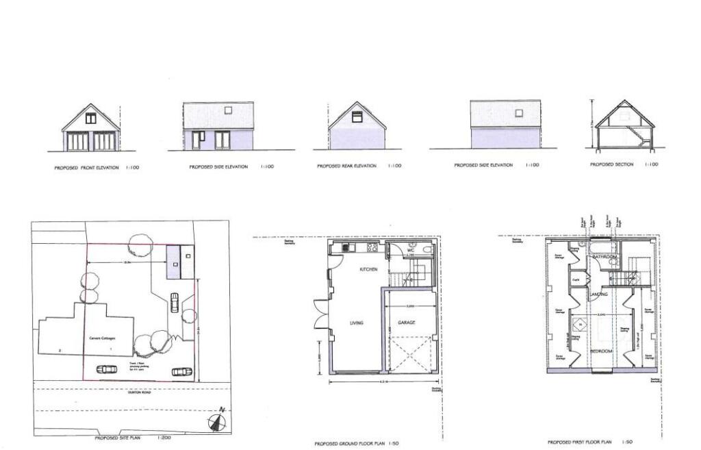
* CHARACTER COTTAGE * DOUBLE GARAGE WITH PLANNING FOR ANNEX CONVERSION * FOUR BEDROOMS * LARGE LOUNGE * PARKING FOR MULTIPLE VEHICLES * LITTLE BURSTEAD LOCATION * SEPARTE DINING ROOM * CONSERVATORY * Situated in a semi rural location in Little Burstead on a plot of 1/3 of an Acre is this great si...
Property Oracle says ..
This four-bedroom property in Little Burstead, Essex, presents a compelling proposition for buyers seeking a balance between rural tranquility and convenient access to amenities. The property is well-maintained and benefits from a recent modernisation reflected in the provided photographs. The ample outdoor space, encompassing a large garden and substantial driveway, is a notable asset. Its location provides proximity to well-regarded schools and is reasonably close to transport links. While precise pricing comparisons are hampered by a lack of detailed data on comparable properties’ square footage, the overall package seems to offer competitive value within the area’s housing market. The inclusion of planning permission for an annex conversion further enhances its potential. Potential buyers should conduct their own thorough research and valuation to make an informed purchasing decision.
Therefore, we give this property 7 / 10. *Disclaimer: This is our option and does constitute a recommendation or financial advice. Do your own research. *
- Price
- 7
- Condition
- 7
- Location
- 7
- Land
- 8
- Bedrooms
- 4
- Bathrooms
- 2
- Sqft (est)
- 2,594.00
The heatmap indicates the level of crime in the area. The color of the heatmap indicates the crime severity and recency.
Metrics Year-on-Year
- Average area value
- 709,018.00 £Increased by 4.48 %
- Est sale value
- 1,522,678.00 £Increased by 130.20 %
- Average area rental value
- 1,763.00 £/moIncreased by 34.58 %
- Est letting value
- 2,594.00 £/mo
- Est rental Yield
- 2.98 %Increased by 28.45 %
- Crime Rate
- 7.00 %Unchanged by 0.00 %
Agent Activity
ParaBar Estates created the listing.
Nearby Schools
| Name | Type | Ofsted | Distance |
|---|---|---|---|
| Millhouse Primary School | Community School | Good | 2.47 KM |
| Quilters Infant School | Foundation School | Outstanding | 2.51 KM |
| Quilters Junior School | Foundation School | Outstanding | 2.51 KM |
| South Green Junior School | Foundation School | Good | 2.58 KM |
| The Billericay School | Academy Converter | Good | 2.60 KM |
Images
Nearby Streets
| Name | Average Price | Average Sqft | Distance |
|---|---|---|---|
| Southend Arterial Road | £ 0 | 0 | 0.00 KM |
| Seax Way | £ 0 | 0 | 0.00 KM |
Nearby Transport
| Name | NLC | TLC | Distance |
|---|---|---|---|
| Laindon | 7445 | LAI | 3.61 KM |
| Billericay | 6871 | BIC | 3.68 KM |
| Basildon | 7494 | BSO | 6.06 KM |
| Ingatestone | 6882 | INT | 8.33 KM |
| West Horndon | 7466 | WHR | 8.35 KM |
Nearby Listings
| Address | Price | Type | Score | Distance |
|---|---|---|---|---|
| Dunton Road, Billericay | £ 800,000 | BUY | 7 / 10 | 0.00 KM |
| Rectory Road, Billericay, CM12 | £ 875,000 | BUY | 8 / 10 | 0.20 KM |
| Rectory Road, Little Burstead, Billericay, Essex | £ 875,000 | BUY | 6 / 10 | 0.21 KM |
| Rectory Road, Little Burstead, CM12 | £ 875,000 | BUY | 7 / 10 | 0.27 KM |
| Dunton Road, Little Burstead, Essex, SS15 | £ 1,250,000 | BUY | 7 / 10 | 0.33 KM |
Nearby Properties
| Address | Price | Distance |
|---|---|---|
| Whitegates | £ 930,000 | 0.21 KM |
| Tumblemead | £ 220,250 | 0.21 KM |
| Acacia | £ 93,500 | 0.65 KM |
| Crystal | £ 425,000 | 0.65 KM |
| Many Berries | £ 110,000 | 0.78 KM |