Nested says ..
Being sold via Secure Sale online bidding. Terms & Conditions apply. Starting Bid: £75,000 – an ideal investment opportunity not to be missed.
Property Oracle says ..
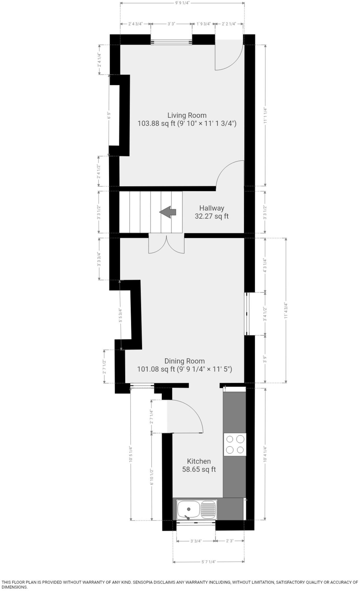
This property is a two-bedroom terraced house located on Alexandra Road in Doncaster. The list price is £75,000, which is significantly below the average price for the area (£474,742). However, this is likely due to the property needing renovation. The property is small, with only 295.88 sqft, and has no garden. While the location is close to several primary schools and transportation links, the condition of the property is a major factor to consider. The images show that it requires significant modernisation and updating.
Therefore, we give this property 4 / 10. *Disclaimer: This is our option and does constitute a recommendation or financial advice. Do your own research. *
- Price
- 7
- Condition
- 3
- Location
- 6
- Land
- 1
- Bedrooms
- 2
- Bathrooms
- 1
- Sqft (est)
- 295.88
The heatmap indicates the level of crime in the area. The color of the heatmap indicates the crime severity and recency.
Metrics Year-on-Year
- Average area value
- 464,990.00 £Increased by 12.84 %
- Est sale value
- 147,644.12 £Increased by 45.06 %
- Average area rental value
- 1,081.00 £/moDecreased by 23.22 %
- Est letting value
- 295.88 £/moUnchanged by 0.00 %
- Est rental Yield
- 2.79 %Decreased by 31.95 %
- Crime Rate
- 19.00 %Unchanged by 0.00 %
Agent Activity
Nested created the listing.
Nearby Schools
| Name | Type | Ofsted | Distance |
|---|---|---|---|
| Balby Central Primary Academy | Academy Converter | Requires improvement | 0.36 KM |
| Hexthorpe Primary School | Academy Converter | Requires improvement | 0.73 KM |
| Sycamore Hall Preparatory School | Other Independent School | Requires improvement | 0.96 KM |
| St Francis Xavier Catholic Primary School | Voluntary Aided School | Good | 1.00 KM |
| Woodfield Primary School | Academy Converter | Good | 1.06 KM |
Images
Nearby Streets
| Name | Average Price | Average Sqft | Distance |
|---|---|---|---|
| Kent Road | £ 0 | 0 | 0.00 KM |
| Travis Grove | £ 0 | 0 | 0.00 KM |
| Suffolk Road | £ 0 | 0 | 0.00 KM |
| Tranquil Close | £ 0 | 0 | 0.00 KM |
| Pullman Close | £ 0 | 0 | 0.00 KM |
Nearby Transport
| Name | NLC | TLC | Distance |
|---|---|---|---|
| Doncaster | 6417 | DON | 1.67 KM |
| Bentley (South Yorkshire) | 8352 | BYK | 3.74 KM |
| Adwick | 8353 | AWK | 7.70 KM |
| Conisbrough | 6488 | CNS | 9.70 KM |
Nearby Listings
| Address | Price | Type | Score | Distance |
|---|---|---|---|---|
| Alexandra Road, Doncaster, DN4 | £ 75,000 | BUY | 4 / 10 | 0.00 KM |
| Alexandra Road, Doncaster | £ 80,000 | BUY | 6 / 10 | 0.03 KM |
| King Edward Road, Doncaster | £ 89,995 | BUY | 5 / 10 | 0.08 KM |
| Alexandra Road, Balby, Doncaster | £ 60,000 | BUY | 6 / 10 | 0.10 KM |
| Alexandra Road, Doncaster, DN4 | £ 82,000 | BUY | Unknown | 0.10 KM |
Nearby Properties
| Address | Price | Distance |
|---|---|---|
| 63 Alexandra Road | £ 65,000 | 0.10 KM |
| 81 Alexandra Road | £ 49,000 | 0.10 KM |
| 85 Alexandra Road | £ 95,500 | 0.10 KM |
| 7 Alexandra Road | £ 125,000 | 0.10 KM |
| 29 Alexandra Road | £ 75,000 | 0.10 KM |