SJ
Holland Street, BRIGHTON BN2
By SJ Property Services
£ 1,768
SJ Property Services says ..
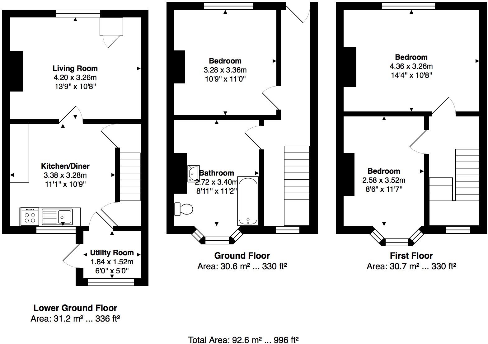
SJ Property Services are delighted to offer this three double bedroom fully furnished property located in popular Hanover area, short distance to the city centre and near Lewes Road amenities. The property is set over three floors. Upon entering the hallway, the first room is a double bedroom...
- Bedrooms
- 3
- Bathrooms
- 1
- Sqft (est)
- 996.74
The heatmap indicates the level of crime in the area. The color of the heatmap indicates the crime severity and recency.
Metrics Year-on-Year
- Average area value
- 392,498.00 £Decreased by 19.21 %
- Est sale value
- 554,187.44 £Increased by 9.45 %
- Average area rental value
- 1,784.00 £/moDecreased by 5.61 %
- Est letting value
- 1,993.48 £/moIncreased by 100.00 %
- Est rental Yield
- 5.45 %Increased by 16.70 %
- Crime Rate
- 1.00 %Unchanged by 0.00 %
from 485,835.00 £
from 506,343.92 £
from 1,890.00 £/mo
from 996.74 £/mo
from 4.67 %
from 1.00 %
Agent Activity
SJ Property Services created the listing.
Nearby Schools
| Name | Type | Ofsted | Distance |
|---|---|---|---|
| Tarnerland Nursery School | Local Authority Nursery School | Outstanding | 0.27 KM |
| Carlton Hill Primary School | Community School | Good | 0.34 KM |
| Tarner Children'S Centre | Children's Centre | 0.42 KM | |
| Royal Spa Nursery School | Local Authority Nursery School | Outstanding | 0.52 KM |
| Kings Brighton | Other Independent School | Good | 0.62 KM |
Images
Nearby Streets
| Name | Average Price | Average Sqft | Distance |
|---|---|---|---|
| Albion Street | £ 0 | 0 | 0.00 KM |
| Richmond Gardens | £ 0 | 0 | 0.00 KM |
| Tamplin Terrace | £ 250,000 | 0 | 0.00 KM |
| Thames Close | £ 0 | 0 | 0.00 KM |
| Victoria Gardens | £ 0 | 0 | 0.00 KM |
Nearby Transport
| Name | NLC | TLC | Distance |
|---|---|---|---|
| Brighton | 5268 | BTN | 1.23 KM |
| London Road (Brighton) | 5281 | LRB | 1.26 KM |
| Moulsecoomb | 5312 | MCB | 2.53 KM |
| Preston Park | 5285 | PRP | 3.46 KM |
| Hove | 5273 | HOV | 4.55 KM |
Nearby Listings
| Address | Price | Type | Score | Distance |
|---|---|---|---|---|
| Albion Hill, BN2 | £ 1,400 | RENT | Unknown | 0.06 KM |
| Scotland Street, Brighton, BN2 | £ 1,700 | RENT | Unknown | 0.07 KM |
| Richmond Street | £ 1,400 | RENT | Unknown | 0.08 KM |
| Richmond Street | £ 1,400 | RENT | Unknown | 0.08 KM |
| Albion Hill, Brighton | £ 4,610 | RENT | Unknown | 0.08 KM |
Nearby Properties
| Address | Price | Distance |
|---|---|---|
| 38 Albion Hill | £ 558,650 | 0.06 KM |
| 39 Albion Hill | £ 500,000 | 0.06 KM |
| 48 Albion Hill | £ 590,000 | 0.06 KM |
| 107a Albion Hill | £ 177,000 | 0.06 KM |
| 105 Albion Hill | £ 160,250 | 0.06 KM |