Julian Marks says ..
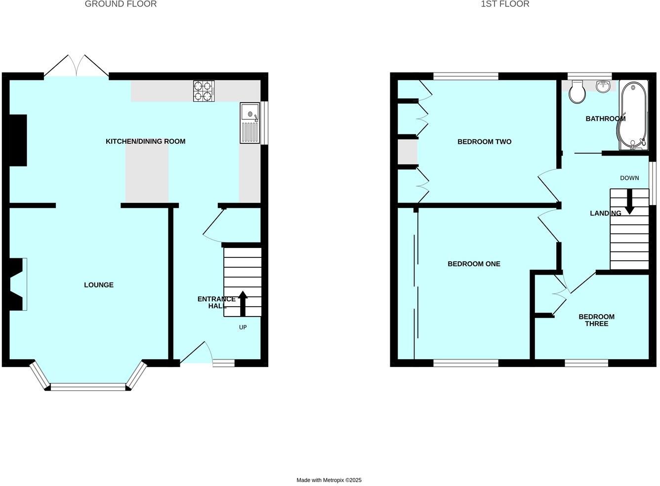
Superbly-situated semi-detached house in a quiet tucked-away position in this very popular cul-de-sac in Oreston. The accommodation briefly comprises an entrance hall, bay-fronted lounge with wood burner, open-plan kitchen/dining room, 3 bedrooms & bathroom. Other features include utilised loft s...
Property Oracle says ..
Therefore, we give this property 7 / 10. *Disclaimer: This is our option and does constitute a recommendation or financial advice. Do your own research. *
- Price
- 6
- Condition
- 8
- Location
- 7
- Land
- 8
- Bedrooms
- 3
- Bathrooms
- 1
The heatmap indicates the level of crime in the area. The color of the heatmap indicates the crime severity and recency.
Metrics Year-on-Year
- Average area value
- 339,996.00 £Increased by 4.84 %
- Average area rental value
- 1,581.00 £/moIncreased by 51.87 %
- Est rental Yield
- 5.58 %Increased by 44.94 %
- Crime Rate
- 0.00 %
from 324,288.00 £
from 1,041.00 £/mo
from 3.85 %
from 0.00 %
Agent Activity
Julian Marks created the listing.
Nearby Schools
| Name | Type | Ofsted | Distance |
|---|---|---|---|
| Oreston Community Academy | Academy Converter | Good | 0.24 KM |
| Morley Meadow Primary School | Academy Converter | 1.28 KM | |
| Hooe Primary Academy | Academy Converter | Good | 1.39 KM |
| Pomphlett Primary School | Academy Converter | 1.40 KM | |
| Prince Rock Primary School | Academy Converter | 1.56 KM |
Images
Nearby Streets
| Name | Average Price | Average Sqft | Distance |
|---|---|---|---|
| Houldsworth Road | £ 300,000 | 0 | 0.00 KM |
| Park Crescent | £ 312,000 | 0 | 0.00 KM |
| Sunnyside | £ 0 | 0 | 0.00 KM |
| Moor View | £ 0 | 0 | 0.00 KM |
| Chillmark Close | £ 165,000 | 0 | 0.00 KM |
Nearby Transport
| Name | NLC | TLC | Distance |
|---|---|---|---|
| Plymouth | 3580 | PLY | 4.58 KM |
| Devonport | 3579 | DPT | 7.51 KM |
| Dockyard (Devonport) | 3588 | DOC | 8.16 KM |
| Keyham | 3571 | KEY | 8.81 KM |
Nearby Listings
| Address | Price | Type | Score | Distance |
|---|---|---|---|---|
| Oreston, Plymouth | £ 320,000 | BUY | 7 / 10 | 0.00 KM |
| Thornyville Close, Plymouth, Devon, PL9 | £ 197,750 | BUY | 6 / 10 | 0.03 KM |
| Thornyville Close, Plymouth, Devon | £ 295,000 | BUY | 6 / 10 | 0.04 KM |
| Thornyville Close, Oreston, Plymouth, Devon | £ 305,000 | BUY | 6 / 10 | 0.04 KM |
| Oreston Road, Plymstock, Plymouth, Devon, PL9 | £ 850,000 | BUY | 7 / 10 | 0.17 KM |
Nearby Properties
| Address | Price | Distance |
|---|---|---|
| 7 Thornyville Close | £ 145,000 | 0.03 KM |
| 19 Thornyville Close | £ 225,000 | 0.03 KM |
| 12 Thornyville Close | £ 224,950 | 0.03 KM |
| 9 Thornyville Close | £ 55,000 | 0.03 KM |
| 13 Thornyville Close | £ 187,000 | 0.03 KM |