Windmill Road, Gillingham, Kent, ME7
By Robinson Michael & Jackson
£ 420,000
Reviews
3 out of 5 stars
Robinson Michael & Jackson says ..
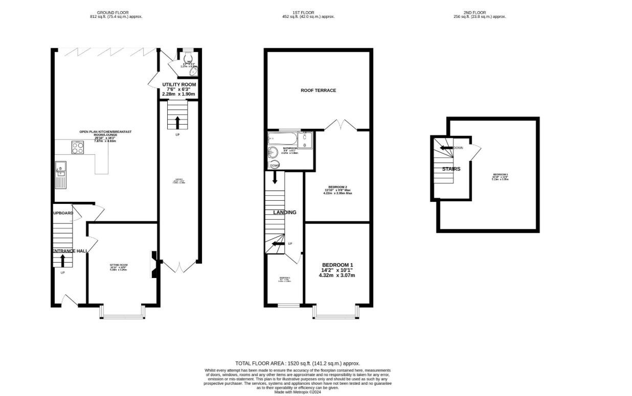
Guide Price £420,000 - £440,000 Exceptional extended 4-Bedroom Detached Family Home in the Desirable Poets Corner Neighbourhood Discover this beautifully presented 4-bedroom detached home, perfectly situated in the highly sought-after Poets Corner area. Designed...
Property Oracle says ..
Therefore, we give this property 6 / 10. *Disclaimer: This is our option and does constitute a recommendation or financial advice. Do your own research. *
- Price
- 5
- Condition
- 8
- Location
- 7
- Land
- 7
- Bedrooms
- 4
- Bathrooms
- 1
- Sqft (est)
- 572.92
The heatmap indicates the level of crime in the area. The color of the heatmap indicates the crime severity and recency.
Metrics Year-on-Year
- Average area value
- 253,389.00 £Increased by 1.64 %
- Est sale value
- 196,511.56 £Increased by 26.10 %
- Average area rental value
- 981.00 £/moDecreased by 6.12 %
- Est letting value
- 572.92 £/moUnchanged by 0.00 %
- Est rental Yield
- 4.65 %Decreased by 7.55 %
- Crime Rate
- 4.00 %Unchanged by 0.00 %
from 249,311.00 £
from 155,834.24 £
from 1,045.00 £/mo
from 572.92 £/mo
from 5.03 %
from 4.00 %
Agent Activity
Robinson Michael & Jackson marked this listing as sold.
Robinson Michael & Jackson created the listing.
Nearby Schools
| Name | Type | Ofsted | Distance |
|---|---|---|---|
| Hospital And Medical Tuition Service | Miscellaneous | 0.12 KM | |
| Luton Primary School | Community School | Outstanding | 0.66 KM |
| Brompton Academy | Academy Sponsor Led | Good | 0.67 KM |
| Byron Primary School | Academy Sponsor Led | Requires improvement | 0.71 KM |
| Chatham Grammar | Academy Converter | Good | 0.76 KM |
Images
Nearby Streets
| Name | Average Price | Average Sqft | Distance |
|---|---|---|---|
| Bus Lane | £ 0 | 0 | 0.00 KM |
| York Hill | £ 250,000 | 0 | 0.00 KM |
| Seymour Road | £ 203,500 | 0 | 0.00 KM |
| Longhill Avenue | £ 0 | 0 | 0.00 KM |
| Castle Road | £ 0 | 0 | 0.00 KM |
Nearby Transport
| Name | NLC | TLC | Distance |
|---|---|---|---|
| Gillingham (Kent) | 5169 | GLM | 1.33 KM |
| Chatham | 5199 | CTM | 2.37 KM |
| Rochester | 5203 | RTR | 3.67 KM |
| Strood (Kent) | 5191 | SOO | 5.14 KM |
| Rainham (Kent) | 5177 | RAI | 7.72 KM |
Nearby Listings
| Address | Price | Type | Score | Distance |
|---|---|---|---|---|
| Windmill Road, Gillingham, Kent, ME7 | £ 420,000 | BUY | 6 / 10 | 0.00 KM |
| Windmill Road, Gillingham, Kent, ME7 | £ 270,000 | BUY | 6 / 10 | 0.08 KM |
| Longfellow Road, Gillingham | £ 280,000 | BUY | 5 / 10 | 0.12 KM |
| Longfellow Road, Gillingham, ME7 | £ 300,000 | BUY | 6 / 10 | 0.12 KM |
| Longfellow Road, Gillingham, | £ 250,000 | BUY | 6 / 10 | 0.15 KM |
Nearby Properties
| Address | Price | Distance |
|---|---|---|
| 156 Windmill Road | £ 255,000 | 0.01 KM |
| 220 Windmill Road | £ 178,000 | 0.01 KM |
| 182 Windmill Road | £ 250,000 | 0.02 KM |
| 172 Windmill Road | £ 214,885 | 0.02 KM |
| 152a Windmill Road | £ 90,500 | 0.02 KM |