Madeley Road, Ironbridge
By Harwood Shropshire Ltd
£ 250,000
Reviews
3 out of 5 stars
Harwood Shropshire Ltd says ..
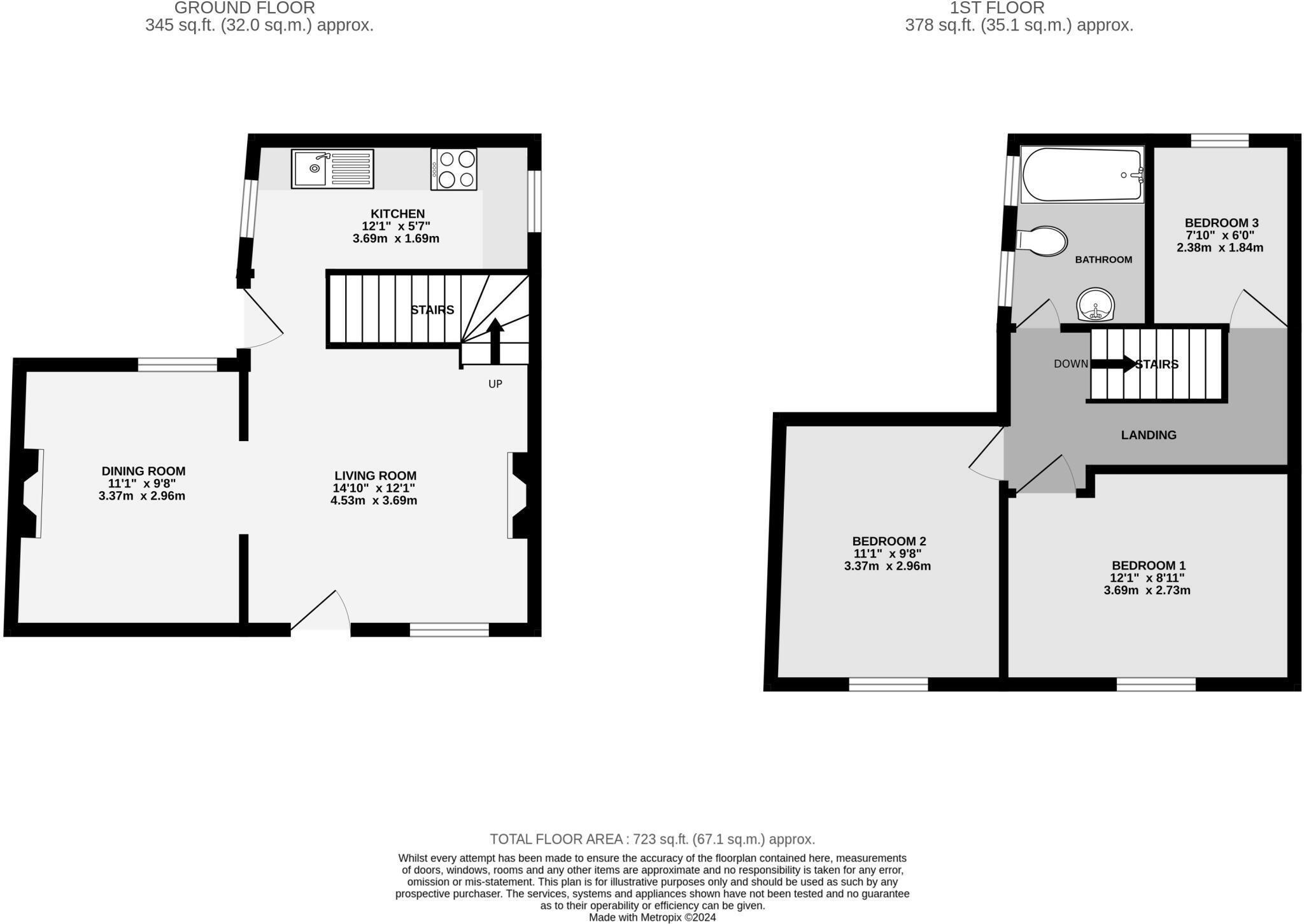
This characterful detached cottage, requires refurbishment, and is ideally situated just a short walk from the historic Ironbridge. Upon entering, you are welcomed into the main living room, which features a charming open fireplace and space for a small dining table. From here, an opening le...
Property Oracle says ..
Ironbridge is a popular location in Shropshire, known for its rich history and the Ironbridge Gorge. The property is conveniently located near several schools, with Aspris Telford School and Woodlands Primary School both receiving a “Good” Ofsted rating, and within a reasonable distance of others. Train travel is possible via Telford Central, Oakengates and Wellington (Shropshire) stations, all within a 9km radius. This contributes to a positive location score. The property appears to be a period property, showcasing traditional features like exposed beams and a brick fireplace. While the interior shows some signs of age, the property seems structurally sound. The kitchen and bathroom appear dated and could benefit from modernisation. However, the property’s overall condition is reasonable. The garden is a notable feature, albeit a tiered garden with a shed, offering some outdoor space. The size of the plot is relatively small at 723 sqft. Considering the list price of £250,000, the average price of properties in the area is considerably higher at £412,056. The average price per sqft in the area is £428, while this property is listed at a lower price per sqft. However, the lack of sqft data on comparable properties makes a precise comparison difficult. The property’s condition and the need for potential modernisation should be factored into the price assessment. The price seems relatively reasonable given the location, but a full valuation would be needed to definitively assess its value for money.
Therefore, we give this property 6 / 10. *Disclaimer: This is our option and does constitute a recommendation or financial advice. Do your own research. *
- Price
- 7
- Condition
- 6
- Location
- 8
- Land
- 5
- Bedrooms
- 3
- Bathrooms
- 1
- Sqft (est)
- 643.00
- Lot (est)
- 723.00
The heatmap indicates the level of crime in the area. The color of the heatmap indicates the crime severity and recency.
Metrics Year-on-Year
- Average area value
- 382,875.00 £Decreased by 13.12 %
- Est sale value
- 333,074.00 £Decreased by 4.43 %
- Average area rental value
- 1,824.00 £/moIncreased by 43.40 %
- Est letting value
- 1,286.00 £/moIncreased by 100.00 %
- Est rental Yield
- 5.72 %Increased by 65.32 %
- Crime Rate
- 1.00 %Unchanged by 0.00 %
Agent Activity
Harwood Shropshire Ltd marked this listing as sold.
Harwood Shropshire Ltd created the listing.
Nearby Schools
| Name | Type | Ofsted | Distance |
|---|---|---|---|
| Aspris Telford School | Other Independent Special School | Good | 1.35 KM |
| Haberdashers' Abraham Darby | Academy Sponsor Led | Requires improvement | 1.39 KM |
| Woodlands Primary School | Community School | Good | 1.39 KM |
| Broseley Children'S Centre Delivery Point | Children's Centre Linked Site | 1.40 KM | |
| Broseley Ce Primary School | Voluntary Controlled School | Good | 1.40 KM |
Images
Nearby Streets
| Name | Average Price | Average Sqft | Distance |
|---|---|---|---|
| Saint Luke's Road | £ 299,950 | 0 | 0.00 KM |
| Belle Vue Road | £ 0 | 0 | 0.00 KM |
| Woodlands Road | £ 0 | 0 | 0.00 KM |
| Chapel Road | £ 405,000 | 0 | 0.00 KM |
| B4373 | £ 0 | 0 | 0.00 KM |
Nearby Transport
| Name | NLC | TLC | Distance |
|---|---|---|---|
| Telford Central | 4691 | TFC | 7.40 KM |
| Oakengates | 4689 | OKN | 8.04 KM |
| Wellington (Shropshire) | 4690 | WLN | 9.08 KM |
Nearby Listings
| Address | Price | Type | Score | Distance |
|---|---|---|---|---|
| Madeley Road, Ironbridge | £ 250,000 | BUY | 6 / 10 | 0.00 KM |
| 9 Madeley Road, Ironbridge, Telford, Shropshire, TF8 7PP | £ 200,000 | BUY | 6 / 10 | 0.00 KM |
| 4 Fenn Way, Buildwas | £ 595,000 | BUY | 6 / 10 | 0.04 KM |
| 1, Fenn Way | £ 285,000 | BUY | 7 / 10 | 0.04 KM |
| 3 Fenn Way, Buildwas | £ 290,000 | BUY | 7 / 10 | 0.04 KM |
Nearby Properties
| Address | Price | Distance |
|---|---|---|
| 4 Madeley Road | £ 295,000 | 0.00 KM |
| 6 Madeley Road | £ 148,000 | 0.01 KM |
| 12 Madeley Road | £ 480,000 | 0.01 KM |
| 5 Madeley Road | £ 284,950 | 0.01 KM |
| 52 Waterloo Street | £ 275,000 | 0.04 KM |