Jack Charles says ..
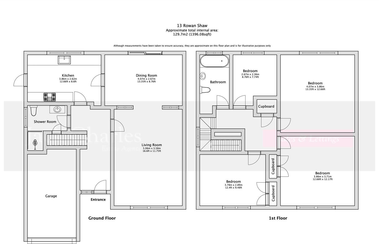
Jack Charles have the pleasure of offering for sale this well appointed and spacious four bedroom detached family home situated to the North of Tonbridge close to local amenities. You enter into an entrance hall which has stairs to the first floor, shower room/WC and doors to the kitche...
Property Oracle says ..
This four-bedroom house in Tonbridge, Kent, presents a compelling blend of location and outdoor space, although its interior condition suggests a need for modernization. The property is situated in Cage Green, offering convenient access to local schools like Cage Green Primary and Hugh Christie School and Tonbridge train station. The images showcase a substantial garden, adding significant appeal to potential buyers seeking outdoor living space. However, an analysis of the photographs indicates that the kitchen and at least one of the bathrooms appear dated and in need of renovations. The living areas are generally well-presented, suggesting that some areas have been modernized while others have not. The overall property’s condition would benefit from a cosmetic refresh to fully maximize its potential. The price of £650,000 seems to align with other properties in the neighborhood, but buyers should undertake a thorough survey to accurately assess the potential renovation costs. The property likely appeals to families seeking a convenient location and sizeable garden, willing to invest in potential improvements. Overall, this is a property with promising aspects balanced with areas requiring updates.
Therefore, we give this property 6 / 10. *Disclaimer: This is our option and does constitute a recommendation or financial advice. Do your own research. *
- Price
- 7
- Condition
- 6
- Location
- 7
- Land
- 7
- Bedrooms
- 4
- Bathrooms
- 2
- Sqft (est)
- 1,396.08
The heatmap indicates the level of crime in the area. The color of the heatmap indicates the crime severity and recency.
Metrics Year-on-Year
- Average area value
- 259,821.00 £Increased by 8.05 %
- Est sale value
- 442,557.36 £Increased by 23.83 %
- Average area rental value
- 1,011.00 £/moIncreased by 5.53 %
- Est letting value
- 1,396.08 £/moUnchanged by 0.00 %
- Est rental Yield
- 4.67 %Decreased by 2.30 %
- Crime Rate
- 1.00 %Unchanged by 0.00 %
Agent Activity
Jack Charles created the listing.
Nearby Schools
| Name | Type | Ofsted | Distance |
|---|---|---|---|
| Cage Green Primary School | Academy Sponsor Led | 0.51 KM | |
| Hugh Christie School | Foundation School | Good | 0.56 KM |
| Skills For Independence And Employability Ltd | Special Post 16 Institution | 0.67 KM | |
| Woodlands Primary School | Community School | Good | 1.10 KM |
| Ymca West Kent | Special Post 16 Institution | 1.43 KM |
Images
Nearby Streets
| Name | Average Price | Average Sqft | Distance |
|---|---|---|---|
| Briar Walk | £ 0 | 0 | 0.00 KM |
| Severn Close | £ 0 | 0 | 0.00 KM |
| Wilson Road | £ 0 | 0 | 0.00 KM |
| Constable Road | £ 0 | 0 | 0.00 KM |
| Thames Road | £ 0 | 0 | 0.00 KM |
Nearby Transport
| Name | NLC | TLC | Distance |
|---|---|---|---|
| Tonbridge | 5229 | TON | 3.32 KM |
| Hildenborough | 5236 | HLB | 6.32 KM |
| High Brooms | 5235 | HIB | 7.67 KM |
| Leigh (Kent) | 5294 | LIH | 8.63 KM |
| Borough Green And Wrotham | 5130 | BRG | 8.71 KM |
Nearby Listings
| Address | Price | Type | Score | Distance |
|---|---|---|---|---|
| Rowan Shaw, Tonbridge | £ 650,000 | BUY | 6 / 10 | 0.00 KM |
| Rowan Shaw, Tonbridge, TN10 3QB | £ 650,000 | BUY | Unknown | 0.05 KM |
| Denbeigh Drive, Tonbridge, Kent | £ 490,000 | BUY | 6 / 10 | 0.21 KM |
| Denbeigh Drive, Tonbridge, Kent | £ 550,000 | BUY | 7 / 10 | 0.21 KM |
| Denbeigh Drive, Tonbridge, TN10 3PW | £ 580,000 | BUY | 6 / 10 | 0.21 KM |
Nearby Properties
| Address | Price | Distance |
|---|---|---|
| 1 Willow Lea | £ 390,000 | 0.19 KM |
| 25 Denbeigh Drive | £ 245,000 | 0.21 KM |
| 12 Denbeigh Drive | £ 528,500 | 0.21 KM |
| 31 Denbeigh Drive | £ 510,000 | 0.21 KM |
| 24 Denbeigh Drive | £ 567,500 | 0.21 KM |