Inkerman Road, Knaphill, Woking, Surrey, GU21
By Seymours Estate Agents
£ 350,000
Reviews
3 out of 5 stars
Seymours Estate Agents says ..
This terraced home is located in a popular residential area that is within easy reach of St Johns village that offers a wide range of amenities and bus links allowing for easy access to Woking Town Centre with its mainline station offering easy access to London Waterloo. Both of the bedroom...
Property Oracle says ..
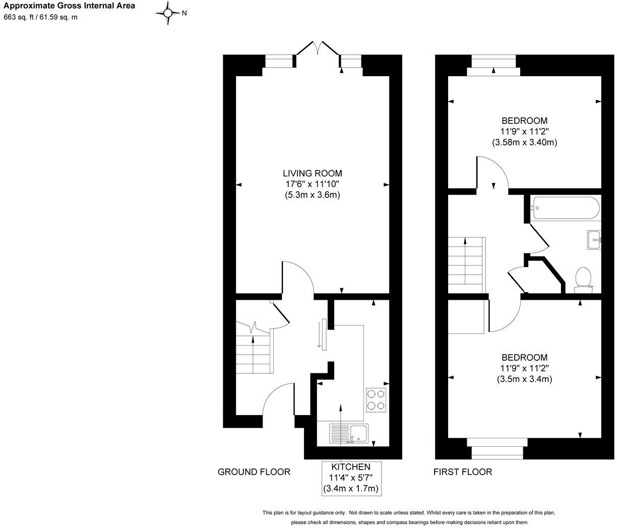
This property is a two bedroom terraced house located on Inkerman Road in Knaphill, Woking. The property benefits from a small garden, and is within easy reach of local schools and transport links. While the property is in reasonable condition, the average price per square foot is significantly lower than the area average, suggesting that the list price of £350,000 may be slightly inflated. Further investigation into comparable properties in the area would be beneficial to determine a more accurate valuation.
Therefore, we give this property 6 / 10. *Disclaimer: This is our option and does constitute a recommendation or financial advice. Do your own research. *
- Price
- 6
- Condition
- 7
- Location
- 8
- Land
- 4
- Bedrooms
- 2
- Bathrooms
- 1
- Sqft (est)
- 663.00
The heatmap indicates the level of crime in the area. The color of the heatmap indicates the crime severity and recency.
Metrics Year-on-Year
- Average area value
- 586,400.00 £Increased by 18.76 %
- Est sale value
- 315,588.00 £Increased by 6.01 %
- Average area rental value
- 2,150.00 £/moIncreased by 9.47 %
- Est letting value
- 663.00 £/moUnchanged by 0.00 %
- Est rental Yield
- 4.40 %Decreased by 7.76 %
- Crime Rate
- 4.00 %Unchanged by 0.00 %
Agent Activity
Seymours Estate Agents created the listing.
Nearby Schools
| Name | Type | Ofsted | Distance |
|---|---|---|---|
| St John'S Primary School | Academy Sponsor Led | Requires improvement | 0.26 KM |
| St John'S Primary School And Sure Start Children'S Centre | Children's Centre | 0.26 KM | |
| The Oaktree School | Academy Converter | 0.38 KM | |
| St Hugh Of Lincoln Catholic Primary School | Academy Converter | Good | 0.43 KM |
| The Hermitage School | Academy Converter | Good | 0.46 KM |
Images
Nearby Streets
| Name | Average Price | Average Sqft | Distance |
|---|---|---|---|
| Oakway | £ 475,000 | 0 | 0.00 KM |
| Oakwood Road | £ 0 | 0 | 0.00 KM |
| Elmgrove Close | £ 425,000 | 0 | 0.00 KM |
| Beechwood Close | £ 0 | 0 | 0.00 KM |
| Robin Hood Roundabout cycle path | £ 0 | 0 | 0.00 KM |
Nearby Transport
| Name | NLC | TLC | Distance |
|---|---|---|---|
| Brookwood | 5687 | BKO | 3.35 KM |
| Worplesdon | 5686 | WPL | 3.82 KM |
| Woking | 5685 | WOK | 5.57 KM |
| Longcross | 5674 | LNG | 8.13 KM |
| Guildford | 5631 | GLD | 8.98 KM |
Nearby Listings
| Address | Price | Type | Score | Distance |
|---|---|---|---|---|
| Inkerman Road, Knaphill, Woking, Surrey, GU21 | £ 350,000 | BUY | 6 / 10 | 0.00 KM |
| Inkerman Road, Knaphill, Woking, Surrey, GU21 | £ 259,950 | BUY | 6 / 10 | 0.00 KM |
| Inkerman Road, Knaphill, Woking, Surrey, GU21 | £ 350,000 | BUY | 6 / 10 | 0.02 KM |
| Knaphill, Woking, Surrey, GU21 | £ 450,000 | BUY | 7 / 10 | 0.02 KM |
| Inkerman Road, Knaphill, Woking, Surrey, GU21 | £ 179,950 | BUY | Unknown | 0.12 KM |
Nearby Properties
| Address | Price | Distance |
|---|---|---|
| 135 Inkerman Road | £ 109,000 | 0.01 KM |
| 145 Inkerman Road | £ 295,750 | 0.01 KM |
| 107 Inkerman Road | £ 195,000 | 0.01 KM |
| 93 Inkerman Road | £ 250,000 | 0.01 KM |
| 155 Inkerman Road | £ 204,000 | 0.01 KM |