Edgeway, Wilmslow, Cheshire, SK9
By Reeds Rains
£ 780,000
Reviews
3 out of 5 stars
Reeds Rains says ..
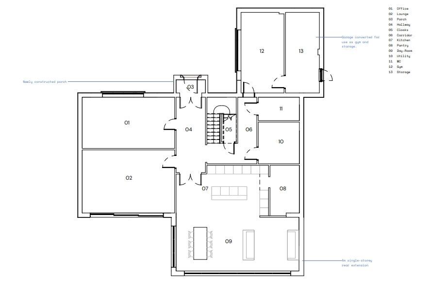
*PLANNING PERMISSION GRANTED* Build your own stunning family home! Planning permission to create a substantial, executive style detached family home. Offering 4 bedrooms, 3 bathrooms. The ground floor would offer fabulous family living space such as, a large open plan kitche...
Property Oracle says ..
This 2-bedroom bungalow is located in the desirable Wilmslow East area, offering convenient access to transportation and schools. While the property boasts a good-sized garden, the interior, particularly the kitchen and bathroom, requires modernisation. The asking price of £780,000 reflects the property’s condition and size relative to the local market. Potential buyers should consider the cost of renovations when assessing the overall value.
Therefore, we give this property 6 / 10. *Disclaimer: This is our option and does constitute a recommendation or financial advice. Do your own research. *
- Price
- 6
- Condition
- 5
- Location
- 7
- Land
- 8
- Bedrooms
- 2
- Bathrooms
- 1
The heatmap indicates the level of crime in the area. The color of the heatmap indicates the crime severity and recency.
Metrics Year-on-Year
- Average area value
- 1,168,333.00 £Increased by 51.76 %
- Average area rental value
- 8,690.00 £/moIncreased by 118.12 %
- Est rental Yield
- 8.93 %Increased by 43.80 %
- Crime Rate
- 0.00 %
Agent Activity
Reeds Rains created the listing.
Nearby Schools
| Name | Type | Ofsted | Distance |
|---|---|---|---|
| Wilmslow High School | Community School | Good | 0.30 KM |
| Wilmslow Preparatory School | Other Independent School | 0.79 KM | |
| St Anne'S Fulshaw C Of E Primary School | Voluntary Controlled School | Good | 1.27 KM |
| Ashdene Primary School | Community School | Outstanding | 1.76 KM |
| Alderley Edge School For Girls | Other Independent School | 1.82 KM |
Images
Nearby Streets
| Name | Average Price | Average Sqft | Distance |
|---|---|---|---|
| Fulshaw Cross | £ 345,000 | 0 | 0.00 KM |
| Fulshaw Cross | £ 525,000 | 0 | 0.00 KM |
| Grove Street | £ 135,000 | 0 | 0.00 KM |
| Queen's Road | £ 299,950 | 0 | 0.00 KM |
| Station Road | £ 350,000 | 0 | 0.00 KM |
Nearby Transport
| Name | NLC | TLC | Distance |
|---|---|---|---|
| Wilmslow | 2774 | WML | 0.96 KM |
| Alderley Edge | 2760 | ALD | 1.91 KM |
| Styal | 2868 | SYA | 3.27 KM |
| Handforth | 2767 | HTH | 3.56 KM |
| Heald Green | 2860 | HDG | 5.50 KM |
Nearby Listings
| Address | Price | Type | Score | Distance |
|---|---|---|---|---|
| Edgeway, Wilmslow, Cheshire, SK9 | £ 780,000 | BUY | 6 / 10 | 0.00 KM |
| Edgeway, Wilmslow, Cheshire, SK9 | £ 925,000 | BUY | 8 / 10 | 0.04 KM |
| Holly Road South, Wilmslow | £ 850,000 | BUY | 8 / 10 | 0.11 KM |
| Tempsford Way, Wilmslow, Cheshire, SK9 | £ 112,500 | BUY | 7 / 10 | 0.17 KM |
| Summerfield Place, Wilmslow | £ 850,000 | BUY | Unknown | 0.21 KM |
Nearby Properties
| Address | Price | Distance |
|---|---|---|
| 10 Holly Road North | £ 910,000 | 0.13 KM |
| 23 Holly Road North | £ 925,000 | 0.14 KM |
| 14 Holly Road North | £ 525,000 | 0.14 KM |
| 20 Holly Road North | £ 860,000 | 0.14 KM |
| 21 Holly Road North | £ 765,000 | 0.14 KM |