RO
High Street, Bollington, SK10
By Rooftops, Sales, Letting & Management
£ 245,000
Reviews
3 out of 5 stars
Rooftops, Sales, Letting & Management says ..
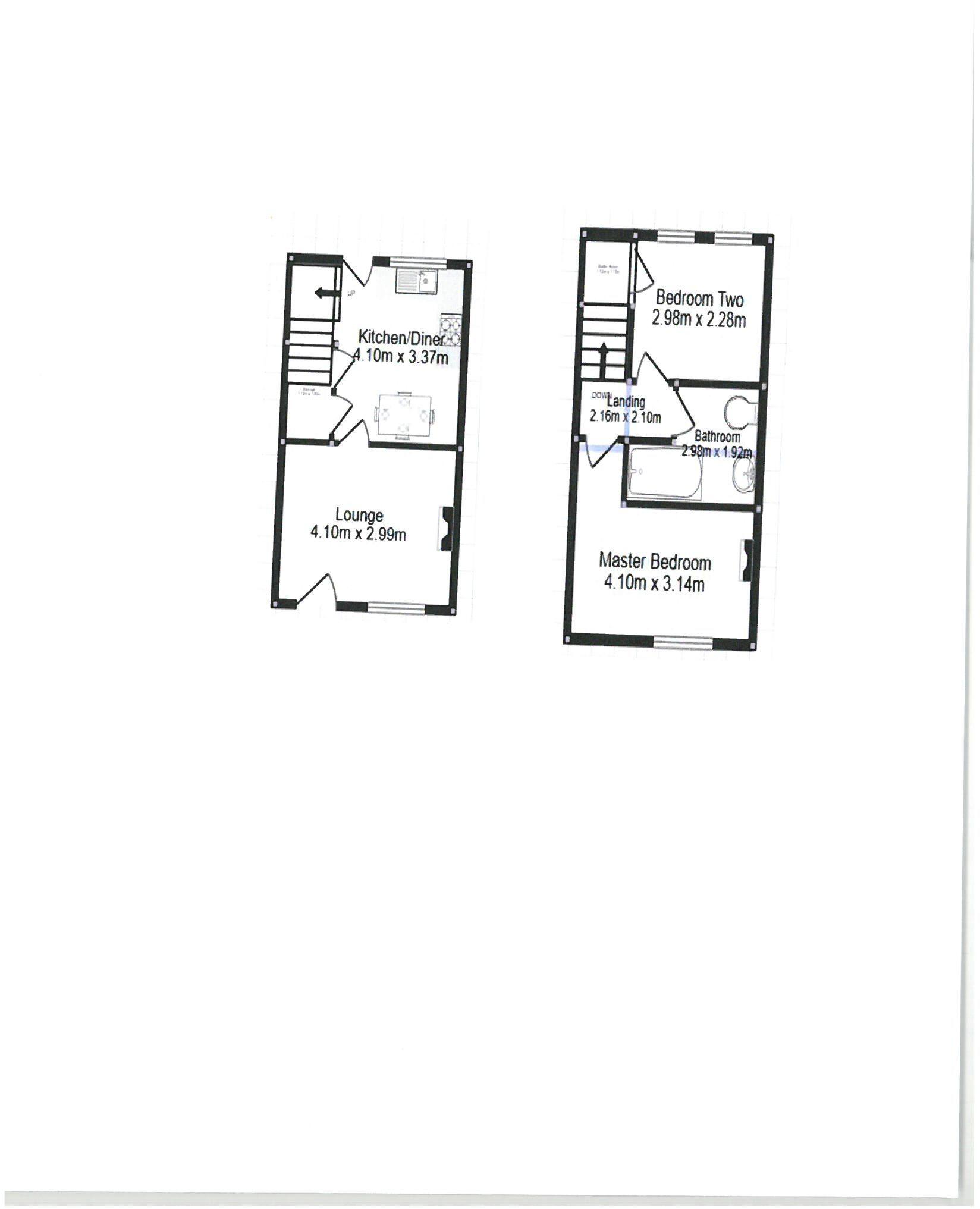
IN THE HEART OF THE VILLAGE!! A charming mid stone terraced property, situated in a prime location of Bollington Village, just a stones throw to local restaurants, cafes and shops, yet within walking distance to the beautiful open countryside that Bollington has to offer. The property benefits...
Property Oracle says ..
Therefore, we give this property 6 / 10. *Disclaimer: This is our option and does constitute a recommendation or financial advice. Do your own research. *
- Price
- 5
- Condition
- 6
- Location
- 7
- Land
- 6
- Bedrooms
- 2
- Bathrooms
- 1
- Sqft (est)
- 602.80
The heatmap indicates the level of crime in the area. The color of the heatmap indicates the crime severity and recency.
Metrics Year-on-Year
- Average area value
- 382,485.00 £Increased by 0.15 %
- Est sale value
- 244,736.80 £Increased by 38.10 %
- Average area rental value
- 895.00 £/moDecreased by 38.61 %
- Est letting value
- 0.00 £/moDecreased by 100.00 %
- Est rental Yield
- 2.81 %Decreased by 38.65 %
- Crime Rate
- 24.00 %Unchanged by 0.00 %
from 381,913.00 £
from 177,223.20 £
from 1,458.00 £/mo
from 602.80 £/mo
from 4.58 %
from 24.00 %
Agent Activity
Rooftops, Sales, Letting & Management created the listing.
Nearby Schools
| Name | Type | Ofsted | Distance |
|---|---|---|---|
| Bollington St John'S Cofe Primary School | Voluntary Aided School | Good | 0.52 KM |
| Arnfield Independent School | Other Independent Special School | Good | 0.89 KM |
| St Gregory'S Catholic Primary School | Voluntary Aided School | Good | 1.69 KM |
| Dean Valley Community Primary School | Community School | Good | 2.03 KM |
| Pott Shrigley Church School | Voluntary Aided School | Good | 2.09 KM |
Images
Nearby Streets
| Name | Average Price | Average Sqft | Distance |
|---|---|---|---|
| Store Street | £ 0 | 0 | 0.00 KM |
| Cow Lane | £ 0 | 0 | 0.00 KM |
| Poplar Grove | £ 399,000 | 0 | 0.00 KM |
| Hole in the Wall | £ 525,000 | 0 | 0.00 KM |
| Fairfield Avenue | £ 0 | 0 | 0.00 KM |
Nearby Transport
| Name | NLC | TLC | Distance |
|---|---|---|---|
| Adlington (Cheshire) | 2939 | ADC | 4.81 KM |
| Macclesfield | 2871 | MAC | 4.93 KM |
| Prestbury | 2875 | PRB | 5.37 KM |
| Middlewood | 2971 | MDL | 7.26 KM |
| Poynton | 2874 | PYT | 7.32 KM |
Nearby Listings
| Address | Price | Type | Score | Distance |
|---|---|---|---|---|
| High Street, Bollington, SK10 | £ 245,000 | BUY | 6 / 10 | 0.00 KM |
| High Street, Bollington, Macclesfield, SK10 | £ 140,000 | BUY | 5 / 10 | 0.02 KM |
| High Street, Bollington, SK10 5PF | £ 225,000 | BUY | 7 / 10 | 0.04 KM |
| Park Street, SK10 | £ 225,000 | BUY | Unknown | 0.08 KM |
| Dean Way, Bollington, Macclesfield | £ 249,950 | BUY | 6 / 10 | 0.08 KM |
Nearby Properties
| Address | Price | Distance |
|---|---|---|
| 58 High Street | £ 135,000 | 0.01 KM |
| 64 High Street | £ 68,000 | 0.01 KM |
| 66 High Street | £ 195,000 | 0.01 KM |
| 69 High Street | £ 163,950 | 0.01 KM |
| 71 High Street | £ 182,000 | 0.01 KM |