Thistle Way, Smallfield, Surrey, RH6
By Mayhew Estates
£ 375,000
Reviews
3 out of 5 stars
Mayhew Estates says ..
OFFERED TO THE MARKET ON A PRICE GUIDE OF £375,000 - £400,000. POPULAR LOCATION! A well-presented two double bedroom, end of terrace house located in a quiet residential cul-de-sac in the popular village of Smallfield!
Property Oracle says ..
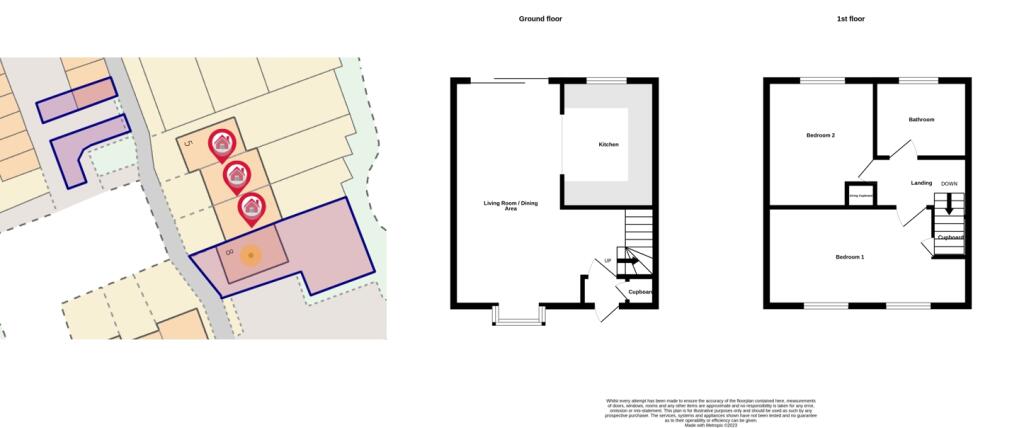
This end-of-terrace property is located in Smallfield, Surrey. The house has two bedrooms and one bathroom, with a total square footage of 620 sqft. The property appears to be in good condition, with a modern interior and a well-maintained garden. The location offers a balance between accessibility to local amenities and transport links, and a more suburban or semi-rural living environment. The asking price of £375,000 seems reasonable when considering the property’s condition, features, and the average property prices in the area. The property is located within a reasonable distance of local schools and transportation, including train stations and Gatwick Airport. This suggests a balance between accessibility and a quieter living environment. The interior is well-maintained with modern fixtures and fittings, particularly in the kitchen and bathroom. The exterior also looks tidy, suggesting that the property is well-cared for. The property includes a garden, which is a desirable feature. The garden appears to be well-maintained and of a reasonable size, offering outdoor space for recreation and relaxation. There is also a shed in the garden.
Therefore, we give this property 7 / 10. *Disclaimer: This is our option and does constitute a recommendation or financial advice. Do your own research. *
- Price
- 7
- Condition
- 8
- Location
- 7
- Land
- 7
- Bedrooms
- 2
- Bathrooms
- 1
- Sqft (est)
- 620.00
The heatmap indicates the level of crime in the area. The color of the heatmap indicates the crime severity and recency.
Metrics Year-on-Year
- Average area value
- 383,000.00 £Increased by 12.20 %
- Est sale value
- 213,900.00 £Increased by 30.19 %
- Average area rental value
- 764.00 £/moDecreased by 19.32 %
- Est letting value
- 0.00 £/mo
- Est rental Yield
- 2.39 %Decreased by 28.23 %
- Crime Rate
- 21.00 %Unchanged by 0.00 %
Agent Activity
Mayhew Estates created the listing.
Nearby Schools
| Name | Type | Ofsted | Distance |
|---|---|---|---|
| Burstow Primary School | Foundation School | Good | 0.58 KM |
| The Windmill Sure Start Children'S Centre | Children's Centre | 0.81 KM | |
| Aurora Redehall School | Other Independent Special School | Good | 2.03 KM |
| Burstow Park School | Other Independent Special School | 3.62 KM | |
| Copthorne Cofe Junior School | Voluntary Controlled School | Good | 4.12 KM |
Images
Nearby Streets
| Name | Average Price | Average Sqft | Distance |
|---|---|---|---|
| Chapel Road | £ 800,000 | 0 | 0.00 KM |
| Carey's Wood | £ 0 | 0 | 0.00 KM |
| Laburnum Court | £ 240,000 | 0 | 0.00 KM |
| Rookery Lane | £ 1,000,000 | 0 | 0.00 KM |
| Cogman's Lane | £ 1,195,000 | 0 | 0.00 KM |
Nearby Transport
| Name | NLC | TLC | Distance |
|---|---|---|---|
| Horley | 5365 | HOR | 5.46 KM |
| Gatwick Airport | 5416 | GTW | 5.79 KM |
| Nutfield | 5476 | NUF | 6.19 KM |
| Salfords (Surrey) | 5380 | SAF | 6.32 KM |
| Godstone | 5474 | GDN | 8.37 KM |
Nearby Listings
| Address | Price | Type | Score | Distance |
|---|---|---|---|---|
| Thistle Way, Smallfield, Surrey, RH6 | £ 375,000 | BUY | 7 / 10 | 0.00 KM |
| Gorse Drive, Smallfield, RH6 | £ 375,000 | BUY | 6 / 10 | 0.03 KM |
| Gorse Drive, Smallfield, RH6 | £ 350,000 | BUY | 6 / 10 | 0.04 KM |
| Thistle Way, Smallfield, RH6 | £ 350,000 | BUY | 7 / 10 | 0.05 KM |
| Gorse Drive, Smallfield, Surrey, RH6 | £ 420,000 | BUY | 7 / 10 | 0.08 KM |
Nearby Properties
| Address | Price | Distance |
|---|---|---|
| 2 Thistle Way | £ 180,000 | 0.00 KM |
| 8 Thistle Way | £ 202,500 | 0.00 KM |
| 1 Thistle Way | £ 207,000 | 0.00 KM |
| 11 Thistle Way | £ 345,000 | 0.00 KM |
| 7 Thistle Way | £ 305,000 | 0.00 KM |