Drumlin Drive, Milngavie, G62
By Yates Hellier Ltd
£ 450,000
Reviews
3 out of 5 stars
Yates Hellier Ltd says ..
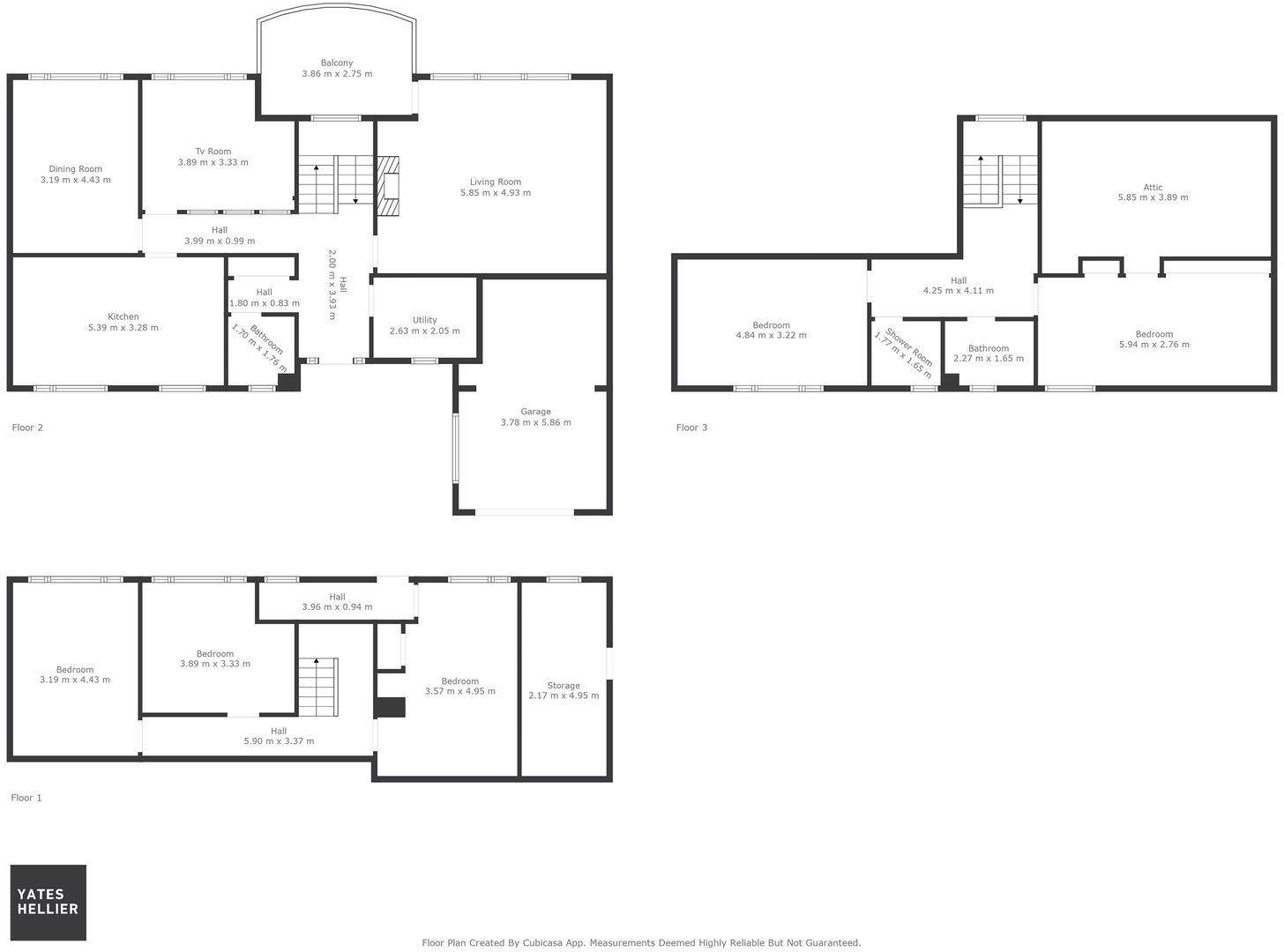
Tucked away on Drumlin Drive, this five-bedroom detached home is one of those houses that looks far more modest from the road than it really is.
Property Oracle says ..
This is a detached property located on Drumlin Drive, Milngavie. It features 5 bedrooms and 3 bathrooms. While the property offers ample space and a garden, it requires modernisation. The location is suburban, with convenient access to transportation. The listing price is competitive for the area, considering the need for renovation.
Therefore, we give this property 6 / 10. *Disclaimer: This is our option and does constitute a recommendation or financial advice. Do your own research. *
- Price
- 7
- Condition
- 5
- Location
- 7
- Land
- 7
- Bedrooms
- 5
- Bathrooms
- 3
The heatmap indicates the level of crime in the area. The color of the heatmap indicates the crime severity and recency.
Metrics Year-on-Year
- Average area value
- 512,500.00 £Increased by 58.76 %
- Average area rental value
- 1,100.00 £/moDecreased by 47.62 %
- Est rental Yield
- 2.58 %Decreased by 66.97 %
- Crime Rate
- 0.00 %
Agent Activity
Yates Hellier Ltd created the listing.
Images
Nearby Streets
| Name | Average Price | Average Sqft | Distance |
|---|---|---|---|
| Braeside Avenue | £ 258,332 | 0 | 0.00 KM |
| Nethermains Road | £ 367,000 | 0 | 0.00 KM |
| Oak Avenue | £ 0 | 0 | 0.00 KM |
| Hazel Avenue | £ 0 | 0 | 0.00 KM |
| Seafield Avenue | £ 465,000 | 0 | 0.00 KM |
Nearby Transport
| Name | NLC | TLC | Distance |
|---|---|---|---|
| Milngavie | 9985 | MLN | 1.27 KM |
| Hillfoot | 9983 | HLF | 1.42 KM |
| Bearsden | 9966 | BRN | 2.05 KM |
| Westerton | 9998 | WES | 3.41 KM |
| Maryhill | 9957 | MYH | 4.55 KM |
Nearby Listings
| Address | Price | Type | Score | Distance |
|---|---|---|---|---|
| Drumlin Drive, Milngavie, G62 | £ 450,000 | BUY | 6 / 10 | 0.00 KM |
| 112 Drumlin Drive, Milngavie, G62 6NG | £ 365,000 | BUY | 7 / 10 | 0.25 KM |
| Rowan Drive, Bearsden, Glasgow, East Dunbartonshire, G61 | £ 225,000 | BUY | 7 / 10 | 0.26 KM |
| 47 Braeside Avenue, Milngavie, G62 6NN | £ 360,000 | BUY | 7 / 10 | 0.28 KM |
| Drumlin Drive, Milngavie, G62 | £ 320,000 | BUY | 8 / 10 | 0.30 KM |