21 Alma Road, Lowestoft, Suffolk NR32 2EA
By Auction House
£ 70,000
Reviews
2 out of 5 stars
Auction House says ..
FOR SALE BY LIVESTREAM AUCTION ON WEDNESDAY 22ND OCTOBER 2025 AT 10:00AM TO REGISTER FOR LEGAL PACKS AND BIDDING INSTRUCTIONS PLEASE VISIT OUR WEBSITE
Property Oracle says ..
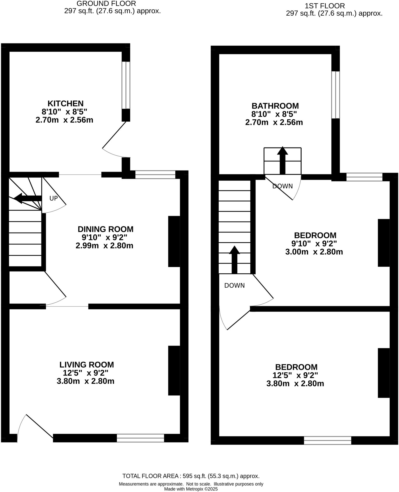
This end-of-terrace property on Alma Road, Lowestoft, presents a compelling opportunity, particularly for investors or first-time buyers willing to undertake renovations. The house has 2 bedrooms and 1 bathroom, with a total area of 595.24 sqft. While the interior shows signs of wear and tear and would benefit from modernisation, the asking price of £70,000 is significantly below the average for the area. Its location offers convenient access to local schools and the Lowestoft train station, enhancing its appeal. The limited garden space is a drawback, but the potential to add value through refurbishment makes this a worthwhile consideration.
Therefore, we give this property 5 / 10. *Disclaimer: This is our option and does constitute a recommendation or financial advice. Do your own research. *
- Price
- 8
- Condition
- 4
- Location
- 6
- Land
- 3
- Bedrooms
- 2
- Bathrooms
- 1
- Sqft (est)
- 595.24
The heatmap indicates the level of crime in the area. The color of the heatmap indicates the crime severity and recency.
Metrics Year-on-Year
- Average area value
- 160,000.00 £Decreased by 7.61 %
- Est sale value
- 98,809.84 £Decreased by 13.99 %
- Average area rental value
- 777.00 £/moDecreased by 4.31 %
- Est letting value
- 0.00 £/mo
- Est rental Yield
- 5.83 %Increased by 3.55 %
- Crime Rate
- 24.00 %Unchanged by 0.00 %
Agent Activity
Auction House created the listing.
Nearby Schools
| Name | Type | Ofsted | Distance |
|---|---|---|---|
| Roman Hill Primary School | Academy Sponsor Led | 0.48 KM | |
| Ness Point School | Other Independent Special School | 0.61 KM | |
| East Coast College | Further Education | Good | 0.69 KM |
| Ark Children'S Centre | Children's Centre | 0.75 KM | |
| Learning Support, Northern Area Education Office | Miscellaneous | 0.86 KM |
Images
Nearby Streets
| Name | Average Price | Average Sqft | Distance |
|---|---|---|---|
| Camp Road | £ 140,000 | 0 | 0.00 KM |
| Station Square | £ 0 | 0 | 0.00 KM |
| Bon Marche | £ 0 | 0 | 0.00 KM |
| Marina | £ 0 | 0 | 0.00 KM |
| Godfrey's Court | £ 0 | 0 | 0.00 KM |
Nearby Transport
| Name | NLC | TLC | Distance |
|---|---|---|---|
| Lowestoft | 7268 | LWT | 0.50 KM |
| Oulton Broad North | 7273 | OUN | 3.32 KM |
| Oulton Broad South | 7274 | OUS | 4.28 KM |
Nearby Listings
| Address | Price | Type | Score | Distance |
|---|---|---|---|---|
| 21 Alma Road, Lowestoft, Suffolk NR32 2EA | £ 70,000 | BUY | 5 / 10 | 0.00 KM |
| Alma Road, Lowestoft | £ 110,000 | BUY | 5 / 10 | 0.02 KM |
| Bevan Street West, Lowestoft | £ 120,000 | BUY | 7 / 10 | 0.06 KM |
| Bevan Street West, LOWESTOFT | £ 130,000 | BUY | 5 / 10 | 0.06 KM |
| Alma Road, Lowestoft | £ 120,000 | BUY | 7 / 10 | 0.07 KM |
Nearby Properties
| Address | Price | Distance |
|---|---|---|
| 5 Norwich Road | £ 25,000 | 0.04 KM |
| 2 Norwich Road | £ 87,500 | 0.04 KM |
| 4 Norwich Road | £ 106,000 | 0.04 KM |
| 1b Norwich Road | £ 55,000 | 0.04 KM |
| 7 Norwich Road | £ 85,000 | 0.04 KM |