Redcliffe Square, Chelsea, London, SW10
By Foxtons
£ 1,395,000
Reviews
2 out of 5 stars
Foxtons says ..
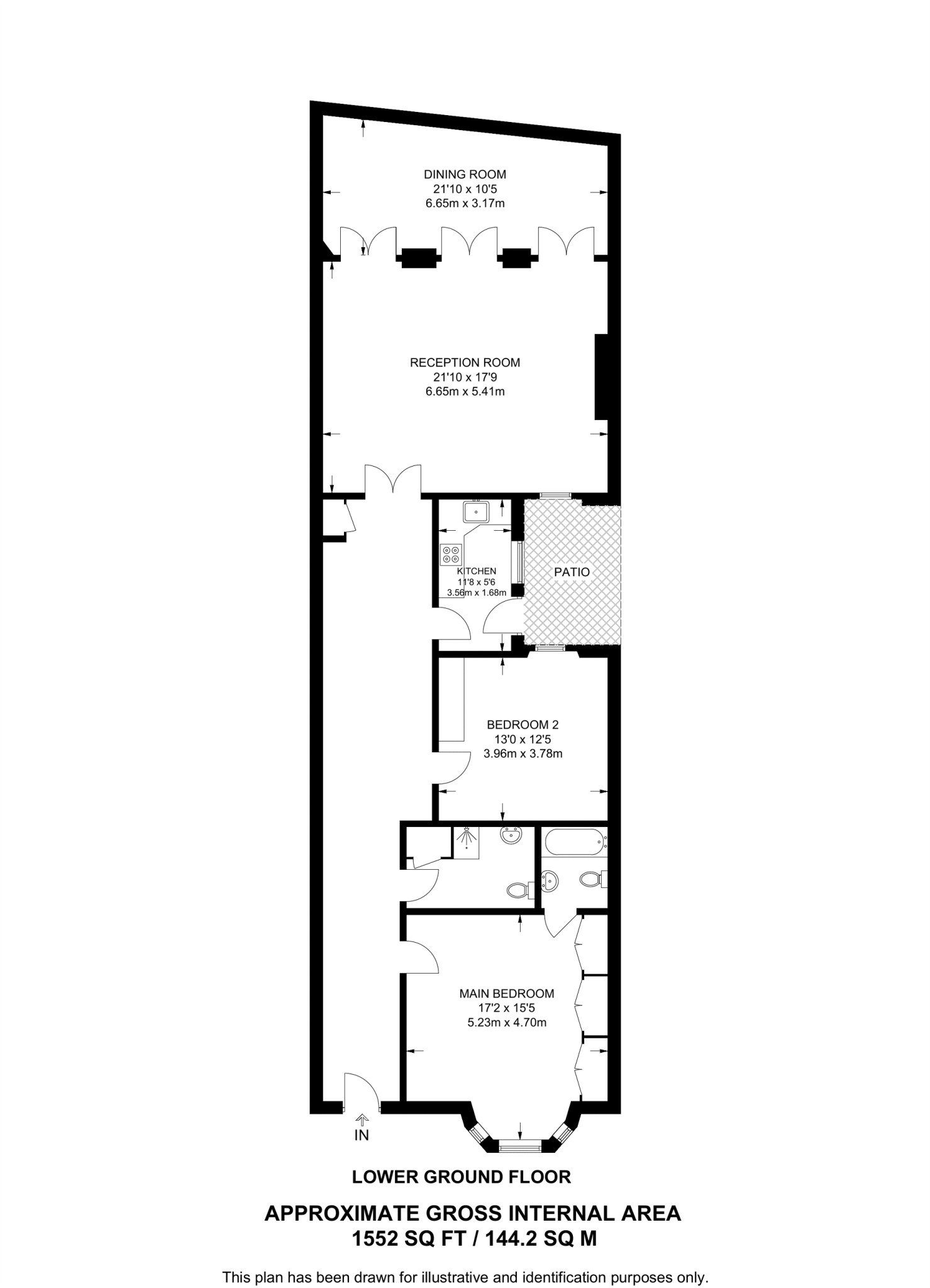
This exceptionally spacious two bedroom maisonette is situated within a beautiful period conversion and offers well presented accommodation with wood floors throughout.
Property Oracle says ..
This two-bedroom, two-bathroom apartment located on prestigious Redcliffe Square in Chelsea offers a desirable address within a sought-after area of London. The property’s interior, as seen in the images, shows a comfortable living space with hardwood floors and sufficient storage. The kitchen seems functional but might benefit from an update. The apartment’s most significant drawback is the lack of any garden or outdoor space. This is unusual for properties in this area, and it’s a notable factor to consider for buyers prioritising outdoor living. The overall condition is decent, but some modernisation work might enhance the property’s appeal. The proximity to excellent schools and convenient (although not immediately adjacent) access to transportation networks are clear advantages. Determining whether the asking price of £1,395,000 represents exceptional value is challenging without more comprehensive market data showing recent sales and pricing for comparable properties in the immediate area. However, given the desirable location and size, the asking price isn’t unrealistic within the context of the Chelsea property market, though it might not be categorized as a bargain.
Therefore, we give this property 5 / 10. *Disclaimer: This is our option and does constitute a recommendation or financial advice. Do your own research. *
- Price
- 7
- Condition
- 6
- Location
- 9
- Land
- 1
- Bedrooms
- 2
- Bathrooms
- 2
- Sqft (est)
- 1,552.16
The heatmap indicates the level of crime in the area. The color of the heatmap indicates the crime severity and recency.
Metrics Year-on-Year
- Average area value
- 915,500.00 £Decreased by 45.09 %
- Est sale value
- 1,965,034.56 £Decreased by 14.40 %
- Average area rental value
- 2,342.00 £/moIncreased by 5.78 %
- Est letting value
- 4,656.48 £/moIncreased by 200.00 %
- Est rental Yield
- 3.07 %Increased by 93.08 %
- Crime Rate
- 3.00 %Unchanged by 0.00 %
Agent Activity
Foxtons created the listing.
Nearby Schools
| Name | Type | Ofsted | Distance |
|---|---|---|---|
| Bousfield Primary School | Community School | Outstanding | 0.32 KM |
| Godolphin And Latymer Redcliffe Gardens School | Other Independent School | 0.34 KM | |
| Collingham | Other Independent School | 0.41 KM | |
| Wetherby Kensington | Other Independent School | 0.44 KM | |
| St Cuthbert With St Matthias Ce Primary School And Earl'S Court Children'S Centre | Children's Centre | 0.58 KM |
Images
Nearby Streets
| Name | Average Price | Average Sqft | Distance |
|---|---|---|---|
| Collingham Gardens | £ 0 | 0 | 0.00 KM |
| Kempsford Gardens | £ 0 | 0 | 0.00 KM |
| Wharfedale Street | £ 0 | 0 | 0.00 KM |
| West Road | £ 0 | 0 | 0.00 KM |
| Old Brompton Road | £ 0 | 0 | 0.00 KM |
Nearby Transport
| Name | NLC | TLC | Distance |
|---|---|---|---|
| West Brompton | 8875 | WBP | 0.81 KM |
| Imperial Wharf | 9586 | IMW | 1.64 KM |
| Kensington (Olympia) | 3092 | KPA | 2.63 KM |
| Wandsworth Town | 5576 | WNT | 3.07 KM |
| Paddington | 3087 | PAD | 3.34 KM |
Nearby Listings
| Address | Price | Type | Score | Distance |
|---|---|---|---|---|
| Redcliffe Square, Chelsea, London, SW10 | £ 1,395,000 | BUY | 5 / 10 | 0.00 KM |
| Redcliffe Square, London, SW10 | £ 1,350,000 | BUY | 6 / 10 | 0.03 KM |
| Redcliffe Square, London, SW10 | £ 1,350,000 | BUY | 8 / 10 | 0.04 KM |
| Redcliffe Square, London, SW10 | £ 1,800,000 | BUY | 6 / 10 | 0.05 KM |
| Redcliffe Square, Chelsea, SW10 | £ 1,700,000 | BUY | 7 / 10 | 0.06 KM |
Nearby Properties
| Address | Price | Distance |
|---|---|---|
| 4 Redcliffe Square | £ 17,000,000 | 0.10 KM |
| 6a Redcliffe Square | £ 1,080,000 | 0.10 KM |
| 20f Redcliffe Square | £ 1,175,000 | 0.10 KM |
| 11a Redcliffe Square | £ 865,000 | 0.11 KM |
| 29a The Little Boltons | £ 745,000 | 0.15 KM |