Brightsmith Road, Ledsham Garden Village, Little Sutton
By Platinum Independent Estate Agents
£ 375,000
Reviews
3 out of 5 stars
Platinum Independent Estate Agents says ..
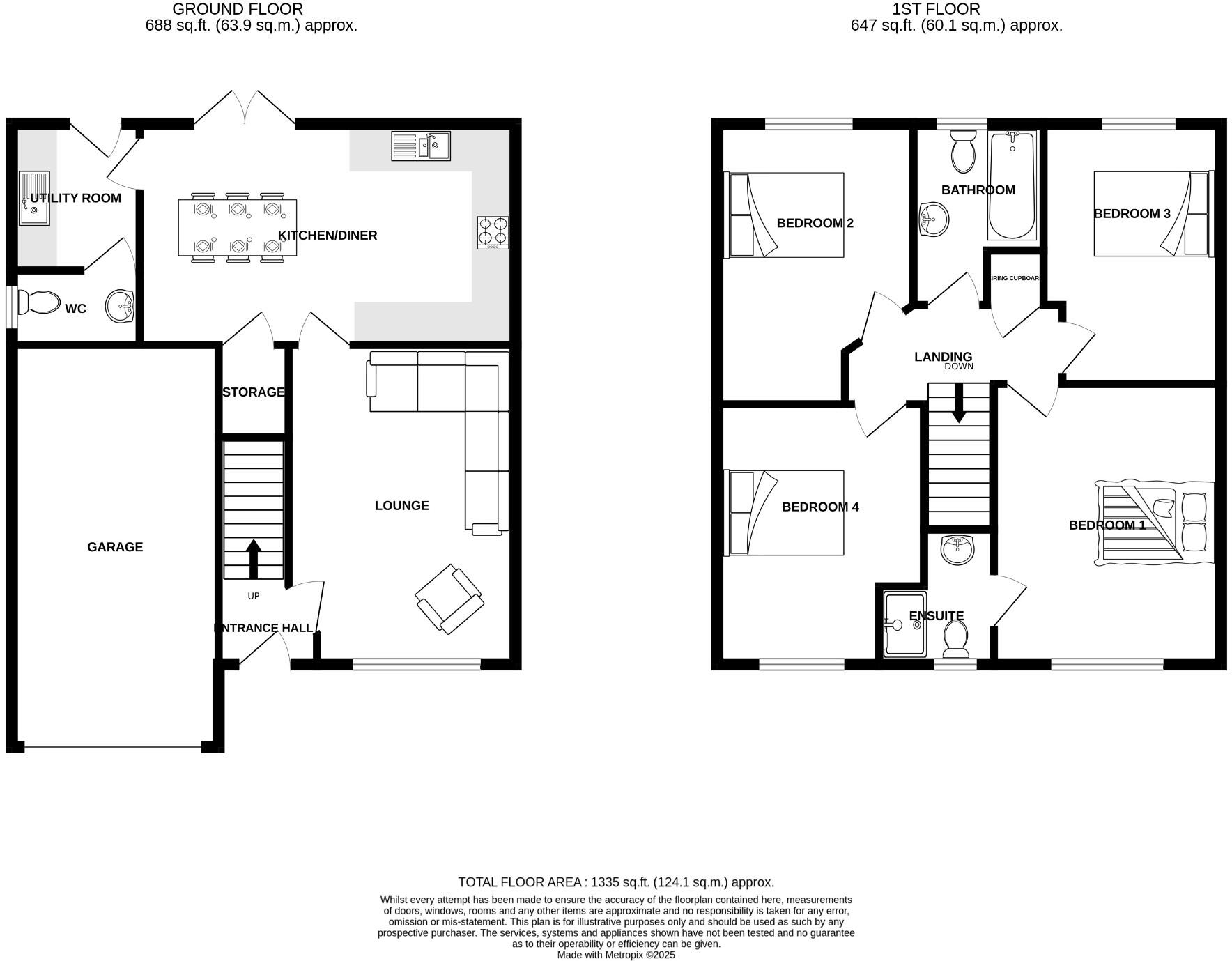
Platinum are pleased to offer onto the market this superb 'Shrewsbury' Redrow Design Four Bedroom Detached Family Home. Found on the highly sought after development of 'Ledsham Garden Village' in Little Sutton, this fantastic property boasts en-suite principle bedroom, contemporary open plan kitchen
Property Oracle says ..
This is a modern detached property located in Ledsham Garden Village, Little Sutton. It features four bedrooms and two bathrooms. The property appears to be in excellent condition, with a modern interior and a well-maintained exterior. It also benefits from a garden and off-street parking. The location offers access to nearby schools and transportation links, making it a suitable family home. The price seems reasonable compared to other properties in the area.
Therefore, we give this property 7 / 10. *Disclaimer: This is our option and does constitute a recommendation or financial advice. Do your own research. *
- Price
- 7
- Condition
- 9
- Location
- 7
- Land
- 7
- Bedrooms
- 4
- Bathrooms
- 2
The heatmap indicates the level of crime in the area. The color of the heatmap indicates the crime severity and recency.
Metrics Year-on-Year
- Average area value
- 386,869.00 £Increased by 13.21 %
- Average area rental value
- 1,300.00 £/moIncreased by 15.25 %
- Est rental Yield
- 4.03 %Increased by 1.77 %
- Crime Rate
- 0.00 %
Agent Activity
Platinum Independent Estate Agents created the listing.
Nearby Schools
| Name | Type | Ofsted | Distance |
|---|---|---|---|
| Sutton Green Primary School | Community School | Good | 1.07 KM |
| Little Sutton C Of E Primary School | Academy Converter | 1.22 KM | |
| Parklands Community Primary And Nursery School | Academy Converter | 1.35 KM | |
| Parklands Children'S Centre | Children's Centre | 1.37 KM | |
| Capenhurst Cofe Primary School | Voluntary Controlled School | Good | 1.92 KM |
Images
Nearby Streets
| Name | Average Price | Average Sqft | Distance |
|---|---|---|---|
| Culver Gardens | £ 280,000 | 0 | 0.00 KM |
| Taylor Close | £ 399,950 | 0 | 0.00 KM |
| Leamington Road | £ 416,111 | 0 | 0.00 KM |
| McMillan Street | £ 493,333 | 0 | 0.00 KM |
| Wilton Close | £ 375,000 | 0 | 0.00 KM |
Nearby Transport
| Name | NLC | TLC | Distance |
|---|---|---|---|
| Little Sutton | 2156 | LTT | 1.44 KM |
| Capenhurst | 2186 | CPU | 1.90 KM |
| Overpool | 2157 | OVE | 3.14 KM |
| Hooton | 2193 | HOO | 3.80 KM |
| Eastham Rake | 2128 | ERA | 4.92 KM |
Nearby Listings
| Address | Price | Type | Score | Distance |
|---|---|---|---|---|
| Brightsmith Road, Ledsham Garden Village, Little Sutton | £ 375,000 | BUY | 7 / 10 | 0.00 KM |
| Brightsmith Road, Little Sutton, Ellesmere Port | £ 375,000 | BUY | 7 / 10 | 0.00 KM |
| Brightsmith Road | £ 375,000 | BUY | 7 / 10 | 0.10 KM |
| Gilder Way, Little Sutton, Ellesmere Port, Cheshire, CH66 | £ 345,000 | BUY | 7 / 10 | 0.10 KM |
| Gilder Way, Little Sutton, Ellesmere Port, Cheshire, CH66 | £ 375,000 | BUY | 8 / 10 | 0.10 KM |
Nearby Properties
| Address | Price | Distance |
|---|---|---|
| 70 Thorne Drive | £ 68,559 | 0.43 KM |
| 88 Thorne Drive | £ 148,000 | 0.43 KM |
| 84 Thorne Drive | £ 195,000 | 0.43 KM |
| 26 Thorne Drive | £ 140,000 | 0.43 KM |
| 76 Thorne Drive | £ 146,000 | 0.43 KM |