Holly Cottage, 44 Westgate, Cowbridge, The Vale of Glamorgan CF71 7AR
By Herbert R Thomas
£ 745,000
Reviews
3 out of 5 stars
Herbert R Thomas says ..
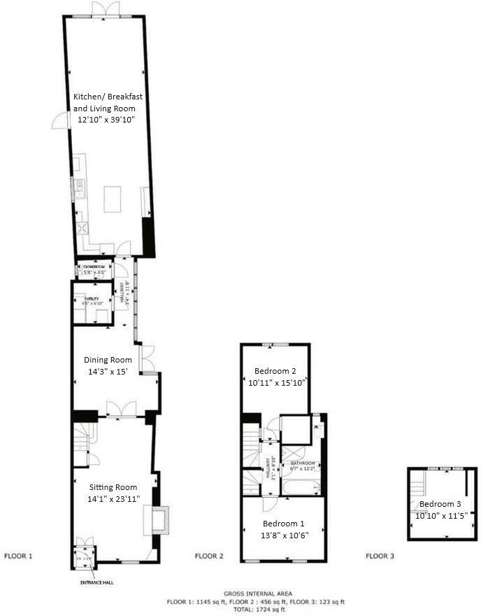
Extended stone built 3 bedroom cottage, much larger than first impressions would suggest, pretty easy maintenance back garden with open green space to the rear, yet perfectly located with an easy level walk to Cowbridge High Street and amenities. Part glazed entrance door to storm porch with g...
Property Oracle says ..
This three-bedroom, one-bathroom cottage in Cowbridge offers a blend of period charm and modern conveniences. Situated on Westgate, the property enjoys a prime location within easy walking distance of Cowbridge’s High Street and its numerous amenities. The interior photographs reveal a tasteful refurbishment, combining original features with updated living spaces. An extension to the property has created a spacious open-plan kitchen/living area with ample natural light. The garden, while not expansive, appears well-maintained and offers a private outdoor space. The inclusion of a sunroom adds a significant value-adding feature to the property. However, the lack of a precise plot size in the listing is a considerable drawback, making it difficult to fully assess the property’s value for money. Further details about the age of the extension and the specifics of the property’s internal and external features (e.g., energy efficiency, parking) would provide a more comprehensive assessment. The overall impression is that of a pleasant and well-located family home, although further investigation is needed to fully evaluate its true market value relative to the list price.
Therefore, we give this property 7 / 10. *Disclaimer: This is our option and does constitute a recommendation or financial advice. Do your own research. *
- Price
- 7
- Condition
- 7
- Location
- 9
- Land
- 6
- Bedrooms
- 3
- Bathrooms
- 1
- Sqft (est)
- 1,724.00
The heatmap indicates the level of crime in the area. The color of the heatmap indicates the crime severity and recency.
Metrics Year-on-Year
- Average area value
- 693,796.00 £Increased by 22.47 %
- Est sale value
- 874,068.00 £Increased by 55.52 %
- Average area rental value
- 1,923.00 £/moIncreased by 3.28 %
- Est letting value
- 1,724.00 £/moUnchanged by 0.00 %
- Est rental Yield
- 3.33 %Decreased by 15.48 %
- Crime Rate
- 29.00 %Unchanged by 0.00 %
Agent Activity
Herbert R Thomas marked this listing as sold.
Herbert R Thomas created the listing.
Nearby Schools
| Name | Type | Ofsted | Distance |
|---|---|---|---|
| Y Bontfaen Primary | Welsh Establishment | 0.95 KM | |
| Ysgol Iolo Morganwg | Welsh Establishment | 1.19 KM | |
| Cowbridge Comprehensive School | Welsh Establishment | 1.94 KM | |
| Llanfair C.P. School | Welsh Establishment | 3.20 KM | |
| Llangan C.P. School | Welsh Establishment | 4.23 KM |
Images
Nearby Streets
| Name | Average Price | Average Sqft | Distance |
|---|---|---|---|
| The Butts | £ 0 | 0 | 0.00 KM |
| St Bleddian Close | £ 0 | 0 | 0.00 KM |
| Bowman's Well | £ 400,000 | 0 | 0.00 KM |
| Geriants Way | £ 325,000 | 0 | 0.00 KM |
| St. Quentins Hill | £ 0 | 0 | 0.00 KM |
Nearby Transport
| Name | NLC | TLC | Distance |
|---|---|---|---|
| Llantwit Major | 9699 | LWM | 6.66 KM |
| Llanharan | 9925 | LLR | 8.38 KM |
| Pencoed | 3851 | PCD | 8.45 KM |
| Pontyclun | 3850 | PYC | 9.60 KM |
Nearby Listings
| Address | Price | Type | Score | Distance |
|---|---|---|---|---|
| Holly Cottage, 44 Westgate, Cowbridge, The Vale of Glamorgan CF71 7AR | £ 745,000 | BUY | 7 / 10 | 0.00 KM |
| Westgate, Cowbridge | £ 795,000 | BUY | 8 / 10 | 0.02 KM |
| Westgate, Cowbridge, Vale of Glamorgan, CF71 7AQ | £ 825,000 | BUY | 6 / 10 | 0.04 KM |
| 5 Westgate, Cowbridge, Vale of Glamorgan, CF71 7AQ | £ 499,950 | BUY | 7 / 10 | 0.06 KM |
| Ty Dafydd, Westgate, Cowbridge, The Vale of Glamorgan CF71 7AR | £ 550,000 | BUY | 7 / 10 | 0.06 KM |
Nearby Properties
| Address | Price | Distance |
|---|---|---|
| Wayside | £ 500,000 | 0.09 KM |
| Brohedyn | £ 399,000 | 0.09 KM |
| Westgate House | £ 350,000 | 0.09 KM |
| Archway House | £ 950,000 | 0.09 KM |
| 19 Westgate | £ 250,000 | 0.12 KM |