Brodrick Road, Hampden Park, Eastbourne
By Taylor Engley
£ 405,000
Reviews
3 out of 5 stars
Taylor Engley says ..
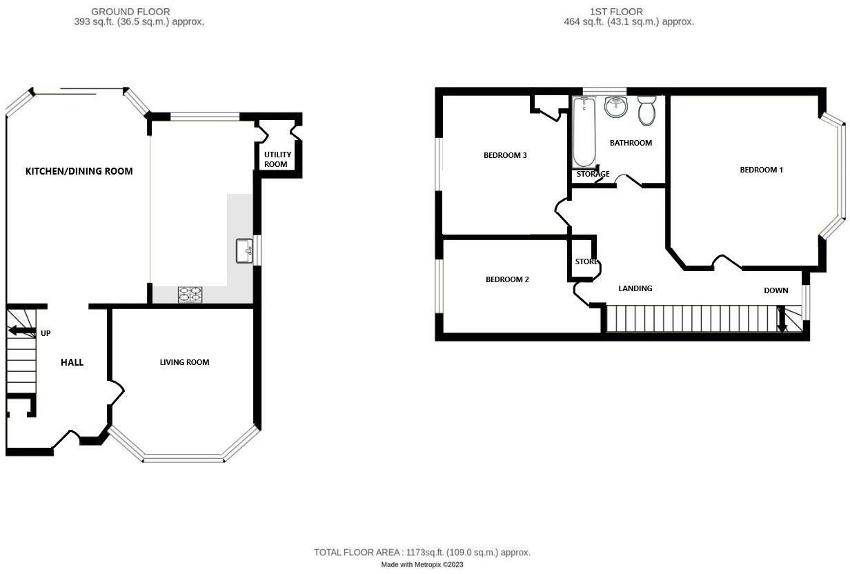
An excellent opportunity has arisen to acquire this DECEPTIVELY SPACIOUS AND IMMACULATEY PRESENTED THREE BEDROOMED DETACHED CHARACTER HOME, located in the popular Hampden Park area of Eastbourne. The property boasts a recently renovated kitchen/diner with views over the garden, utility room, spac...
Property Oracle says ..
This property is a 3-bedroom, 1-bathroom detached house located in Hampden Park, Eastbourne. The list price is £405,000, and the property sits on a plot of 1,173 sqft with a total area of 1,506 sqft. The average price for properties in the area is £556,862, with an average price per sqft of £418. The property appears to be well-maintained and recently updated, with a modern kitchen and bathrooms. It benefits from a good-sized garden. The location is convenient, with nearby schools and transportation links. While the list price is below the area average, the size and condition of the property suggest it could be a reasonable price for the right buyer.
Therefore, we give this property 7 / 10. *Disclaimer: This is our option and does constitute a recommendation or financial advice. Do your own research. *
- Price
- 7
- Condition
- 9
- Location
- 8
- Land
- 7
- Bedrooms
- 3
- Bathrooms
- 1
- Sqft (est)
- 1,506.00
- Lot (est)
- 1,173.00
The heatmap indicates the level of crime in the area. The color of the heatmap indicates the crime severity and recency.
Metrics Year-on-Year
- Average area value
- 318,317.00 £Decreased by 11.84 %
- Est sale value
- 683,724.00 £Increased by 81.60 %
- Average area rental value
- 1,183.00 £/moDecreased by 9.00 %
- Est letting value
- 1,506.00 £/mo
- Est rental Yield
- 4.46 %Increased by 3.24 %
- Crime Rate
- 0.00 %
Agent Activity
Taylor Engley created the listing.
Nearby Schools
| Name | Type | Ofsted | Distance |
|---|---|---|---|
| College Central | Academy Alternative Provision Converter | Good | 0.16 KM |
| Heron Park Primary Academy | Academy Sponsor Led | Requires improvement | 0.70 KM |
| Parkland Infant School | Academy Converter | 0.82 KM | |
| Parkland Junior School | Academy Converter | Good | 0.82 KM |
| The Eastbourne Academy | Academy Sponsor Led | Good | 0.90 KM |
Images
Nearby Streets
| Name | Average Price | Average Sqft | Distance |
|---|---|---|---|
| The Paddock | £ 225,000 | 0 | 0.00 KM |
| Brampton Road | £ 340,000 | 0 | 0.00 KM |
| Hampden Park Drive | £ 4,000,000 | 0 | 0.00 KM |
| Manor Road | £ 0 | 0 | 0.00 KM |
| Knoll Road | £ 0 | 0 | 0.00 KM |
Nearby Transport
| Name | NLC | TLC | Distance |
|---|---|---|---|
| Hampden Park (Sussex) | 5450 | HMD | 0.59 KM |
| Eastbourne | 5448 | EBN | 3.57 KM |
| Polegate | 5455 | PLG | 4.17 KM |
| Pevensey And Westham | 5461 | PEV | 5.52 KM |
| Pevensey Bay | 5462 | PEB | 7.50 KM |
Nearby Listings
| Address | Price | Type | Score | Distance |
|---|---|---|---|---|
| Brodrick Road, Hampden Park, Eastbourne | £ 405,000 | BUY | 7 / 10 | 0.00 KM |
| Brodrick Road, Hampden Park, Eastbourne | £ 325,000 | BUY | Unknown | 0.12 KM |
| Brodrick Road, Eastbourne, BN22 9NF | £ 400,000 | BUY | 7 / 10 | 0.13 KM |
| Pulborough Avenue, Eastbourne, BN22 9QX | £ 300,000 | BUY | 6 / 10 | 0.16 KM |
| Percival Road, Eastbourne | £ 18,000 | BUY | 4 / 10 | 0.20 KM |
Nearby Properties
| Address | Price | Distance |
|---|---|---|
| 110 Brodrick Road | £ 285,000 | 0.07 KM |
| 107 Brodrick Road | £ 280,000 | 0.07 KM |
| 91 Brodrick Road | £ 238,000 | 0.07 KM |
| 118 Brodrick Road | £ 305,000 | 0.07 KM |
| 104 Brodrick Road | £ 203,000 | 0.07 KM |