Residential development for sale – Exley Head Methodist Chapel, Keighley, BD22 6NL
By David Hill
£ 300,000
Reviews
2 out of 5 stars
David Hill says ..
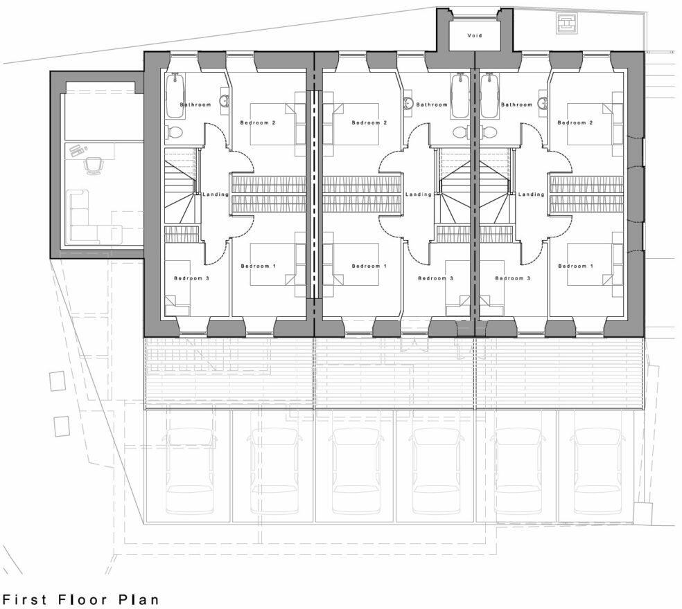
An exciting residential development opportunity comprising a substantial traditional stone built former Methodist chapel with large extension and car park having full planning permission for conversion to form three dwellings, each with a private balcony, private undercroft parking and separate v...
Property Oracle says ..
This property is a former Methodist chapel in Keighley, West Yorkshire, currently listed for £300,000. It has full planning permission for conversion into three separate dwellings, each with a private balcony and undercroft parking.
The property’s external structure seems sound, being constructed of stone. However, the internal photos reveal a significant amount of work is required to transform the building into residential units. The interior is currently in a state of disrepair, lacking essential fixtures and fittings. The floors are unfinished, and there are exposed beams and some evidence of structural work. A functional kitchen area is visible; however, the overall condition necessitates extensive renovation.
The available land around the chapel presents an opportunity for landscaping and outdoor space for future residents, though the exact amount of usable land remains unclear from the photographs.
The location in Keighley places the property within proximity to several schools, including some with favorable Ofsted ratings. A railway station offers convenient access to other towns and cities, contributing positively to its overall accessibility. However, Keighley’s overall standing within the UK property market might be considered average for some buyers.
The asking price of £300,000 requires careful consideration. Although the planning permission simplifies the development process, the substantial renovation costs must be factored into any potential buyer’s assessment of value. The lack of precise details regarding the final square footage of the resulting dwellings makes a definitive price-per-square-foot comparison challenging. Therefore, a comprehensive cost analysis, including materials, labor, and potential professional fees, is essential to determine the actual financial viability and value for money.
Therefore, we give this property 5 / 10. *Disclaimer: This is our option and does constitute a recommendation or financial advice. Do your own research. *
- Price
- 6
- Condition
- 4
- Location
- 7
- Land
- 5
- Bedrooms
- 0
- Bathrooms
- 0
- Sqft (est)
- 633.00
The heatmap indicates the level of crime in the area. The color of the heatmap indicates the crime severity and recency.
Metrics Year-on-Year
- Average area value
- 196,000.00 £Increased by 9.26 %
- Est sale value
- 222,183.00 £Increased by 101.72 %
- Average area rental value
- 875.00 £/moIncreased by 15.89 %
- Est letting value
- 633.00 £/mo
- Est rental Yield
- 5.36 %Increased by 6.14 %
- Crime Rate
- 3.00 %Unchanged by 0.00 %
Agent Activity
David Hill created the listing.
Nearby Schools
| Name | Type | Ofsted | Distance |
|---|---|---|---|
| Beckfoot Nessfield | Academy Sponsor Led | 0.25 KM | |
| Beckfoot Oakbank | Academy Sponsor Led | Requires improvement | 0.42 KM |
| Low Fold Children And Family Centre | Children's Centre | 0.48 KM | |
| Ingrow Primary School | Community School | Good | 1.09 KM |
| Our Lady Of Victories Catholic School | Academy Converter | Good | 1.16 KM |
Images
Nearby Streets
| Name | Average Price | Average Sqft | Distance |
|---|---|---|---|
| Weston Street | £ 0 | 0 | 0.00 KM |
| Holden Street | £ 0 | 0 | 0.00 KM |
| Wall Street | £ 0 | 0 | 0.00 KM |
| Fell Grove | £ 0 | 0 | 0.00 KM |
| Heatherbank Avenue | £ 0 | 0 | 0.00 KM |
Nearby Transport
| Name | NLC | TLC | Distance |
|---|---|---|---|
| Keighley | 8468 | KEI | 3.19 KM |
| Steeton And Silsden | 8469 | SON | 5.02 KM |
| Crossflatts | 8554 | CFL | 9.26 KM |
Nearby Listings
| Address | Price | Type | Score | Distance |
|---|---|---|---|---|
| Residential development for sale – Exley Head Methodist Chapel, Keighley, BD22 6NL | £ 300,000 | BUY | 5 / 10 | 0.00 KM |
| Oakworth Road, Keighley, BD22 | £ 219,995 | BUY | 7 / 10 | 0.03 KM |
| Oakworth Road, Keighley, BD22 | £ 220,000 | BUY | Unknown | 0.06 KM |
| Exley Head, Keighley, BD22 | £ 210,000 | BUY | 7 / 10 | 0.06 KM |
| Wheathead Lane, Keighley | £ 85,000 | BUY | 6 / 10 | 0.10 KM |
Nearby Properties
| Address | Price | Distance |
|---|---|---|
| 26 Linton Street | £ 139,950 | 0.05 KM |
| 20 Linton Street | £ 149,500 | 0.05 KM |
| 28 Linton Street | £ 140,000 | 0.05 KM |
| 46 Wheathead Lane | £ 112,950 | 0.10 KM |
| 50 Wheathead Lane | £ 94,995 | 0.10 KM |