Porchester Mead, Beckenham
By Langford Russell
£ 150,000
Reviews
2 out of 5 stars
Langford Russell says ..
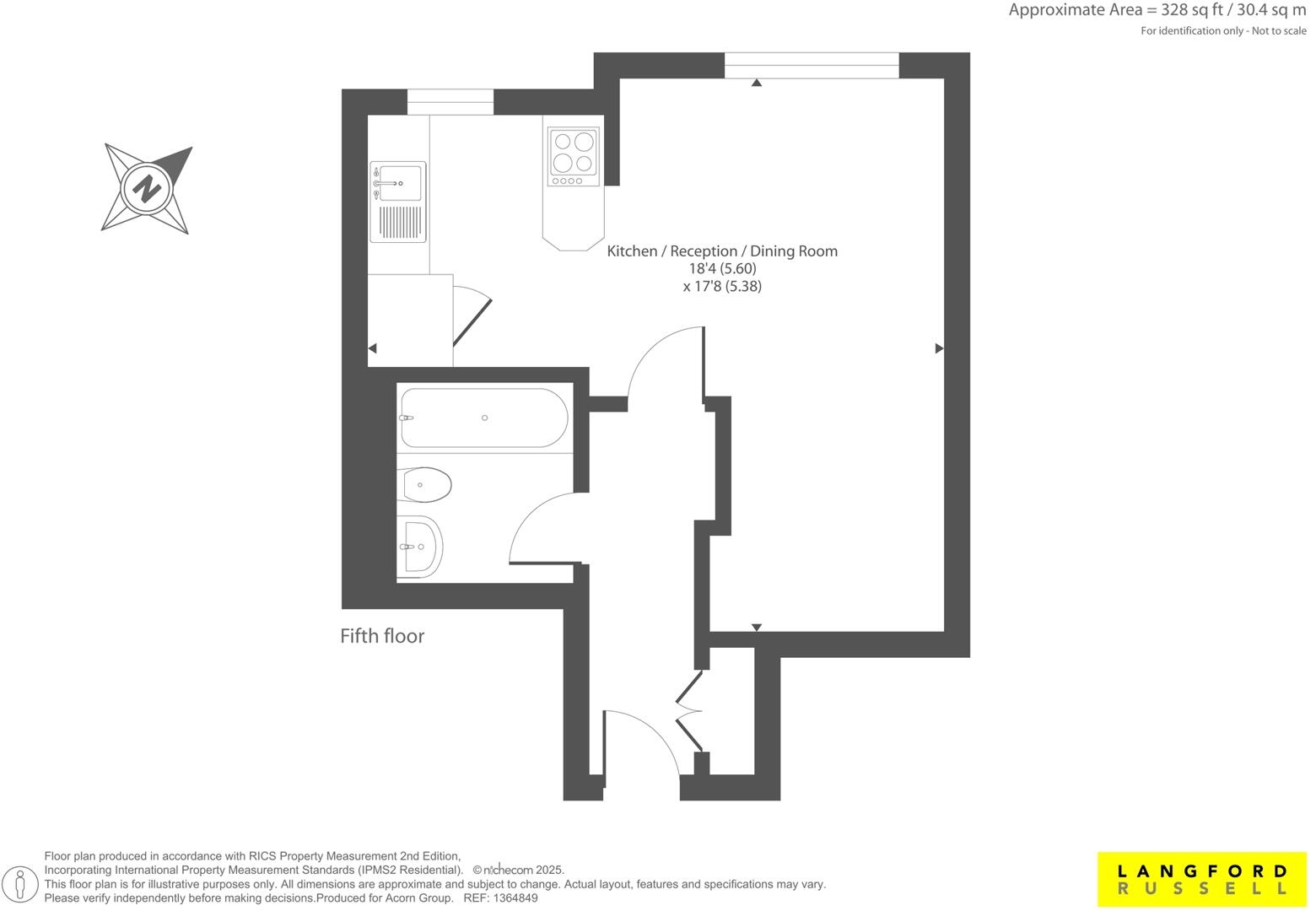
Well-presented studio apartment in this established purpose-built block, close to many of Beckenham’s local amenities. Benefits also include a garage. The accommodation comprises entrance hall with storage cupboard, large open plan studio room with newly fitted carpets and great ...
Property Oracle says ..
This is a one-bedroom apartment located in Porchester Mead, Beckenham. The property is listed for £150,000. The apartment is 328 square feet. The property is located within a reasonable distance of schools and transportation links, including Beckenham Junction station. The internal condition of the property suggests that it requires some modernisation, particularly in the bathroom and kitchen. The apartment does not have a garden. Considering the price per square foot is below the local average, the property represents reasonable value for money. The property is located close to several schools, including Worsley Bridge Primary School. Beckenham Junction station is less than a kilometer away.
Therefore, we give this property 4 / 10. *Disclaimer: This is our option and does constitute a recommendation or financial advice. Do your own research. *
- Price
- 7
- Condition
- 5
- Location
- 6
- Land
- 1
- Bedrooms
- 1
- Bathrooms
- 1
- Sqft (est)
- 328.00
The heatmap indicates the level of crime in the area. The color of the heatmap indicates the crime severity and recency.
Metrics Year-on-Year
- Average area value
- 440,454.00 £Decreased by 13.97 %
- Est sale value
- 174,824.00 £Increased by 14.62 %
- Average area rental value
- 1,581.00 £/moDecreased by 15.18 %
- Est letting value
- 328.00 £/moUnchanged by 0.00 %
- Est rental Yield
- 4.31 %Decreased by 1.37 %
- Crime Rate
- 9.00 %Unchanged by 0.00 %
Agent Activity
Langford Russell created the listing.
Nearby Schools
| Name | Type | Ofsted | Distance |
|---|---|---|---|
| Worsley Bridge Primary School | Academy Sponsor Led | Good | 0.42 KM |
| Sedgehill Academy | Academy Sponsor Led | 0.59 KM | |
| Watergate School | Foundation Special School | Outstanding | 0.76 KM |
| St Augustine'S Catholic Primary School And Nursery | Voluntary Aided School | Good | 1.00 KM |
| St Mary'S Catholic Primary School | Academy Converter | Good | 1.10 KM |
Images
Nearby Streets
| Name | Average Price | Average Sqft | Distance |
|---|---|---|---|
| Trafford Way | £ 0 | 0 | 0.00 KM |
| Pool Close | £ 0 | 0 | 0.00 KM |
| Maywood Close | £ 1,100,000 | 0 | 0.00 KM |
| Southwater Close | £ 0 | 0 | 0.00 KM |
| Adelaide Court | £ 250,000 | 0 | 0.00 KM |
Nearby Transport
| Name | NLC | TLC | Distance |
|---|---|---|---|
| Beckenham Junction | 5046 | BKJ | 0.88 KM |
| Beckenham Hill | 5076 | BEC | 1.09 KM |
| Lower Sydenham | 5053 | LSY | 1.24 KM |
| New Beckenham | 5058 | NBC | 1.28 KM |
| Bellingham | 5062 | BGM | 1.65 KM |
Nearby Listings
| Address | Price | Type | Score | Distance |
|---|---|---|---|---|
| Porchester Mead, Beckenham | £ 150,000 | BUY | 4 / 10 | 0.00 KM |
| Porchester Mead, Beckenham | £ 230,000 | BUY | 6 / 10 | 0.00 KM |
| Porchester Mead, Beckenham | £ 180,000 | BUY | Unknown | 0.00 KM |
| Flat 23 Keats House, Porchester Mead, Beckenham, BR3 1TD | £ 150,000 | BUY | 4 / 10 | 0.01 KM |
| Flat 23 Keats House, Porchester Mead, Beckenham, BR3 1TD | £ 135,000 | BUY | 5 / 10 | 0.01 KM |
Nearby Properties
| Address | Price | Distance |
|---|---|---|
| 45 Southend Road | £ 134,000 | 0.07 KM |
| 51a Southend Road | £ 165,000 | 0.07 KM |
| 49a Southend Road | £ 125,000 | 0.07 KM |
| 55a Southend Road | £ 102,000 | 0.07 KM |
| 51 Southend Road | £ 209,500 | 0.07 KM |