Lensbury Avenue, Fulham, SW6
By Benham & Reeves - Imperial Wharf
£ 1,200,000
Reviews
3 out of 5 stars
Benham & Reeves - Imperial Wharf says ..
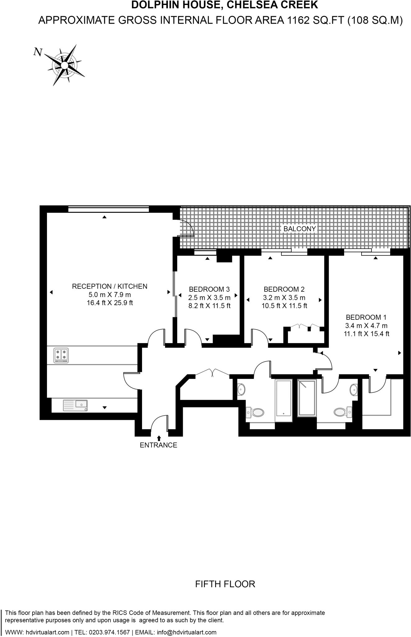
A three bedroom, two bathroom apartment situated in the sought after Dolphin House in Imperial Wharf Riverside Development. Benefits from a 24 hour concierge and its own train station located to the rear of the development.
Property Oracle says ..
This property is a 3 bedroom, 2 bathroom apartment located in the Sands End area of Fulham, SW6. The apartment is modern and well-presented, with an open-plan living area and a private balcony offering views of the River Thames. The development benefits from a communal gym. The location is excellent, with good transport links and several highly-rated schools nearby. However, the property has a relatively small plot size, which is typical for apartments in this area. The list price of £1,200,000 is slightly below the average price for the area, but considering the property’s size and features, it appears to be a reasonable price.
Therefore, we give this property 7 / 10. *Disclaimer: This is our option and does constitute a recommendation or financial advice. Do your own research. *
- Price
- 8
- Condition
- 9
- Location
- 10
- Land
- 3
- Bedrooms
- 3
- Bathrooms
- 2
- Sqft (est)
- 1,162.50
The heatmap indicates the level of crime in the area. The color of the heatmap indicates the crime severity and recency.
Metrics Year-on-Year
- Average area value
- 1,383,762.00 £Increased by 8.10 %
- Est sale value
- 2,386,612.50 £Increased by 67.73 %
- Average area rental value
- 3,390.00 £/moIncreased by 11.04 %
- Est letting value
- 5,812.50 £/moIncreased by 150.00 %
- Est rental Yield
- 2.94 %Increased by 2.80 %
- Crime Rate
- 8.00 %Unchanged by 0.00 %
Agent Activity
Benham & Reeves - Imperial Wharf created the listing.
Nearby Schools
| Name | Type | Ofsted | Distance |
|---|---|---|---|
| Ray'S Playhouse Ltd. | Children's Centre Linked Site | 0.47 KM | |
| Chelsea Academy | Academy Sponsor Led | Outstanding | 0.56 KM |
| Langford Primary School | Academy Sponsor Led | Outstanding | 0.67 KM |
| Ormiston Courtyard Academy | Academy Alternative Provision Converter | Outstanding | 0.67 KM |
| Cheyne Children'S Centre | Children's Centre | 0.84 KM |
Images
Nearby Streets
| Name | Average Price | Average Sqft | Distance |
|---|---|---|---|
| Albion Quay | £ 895,000 | 0 | 0.00 KM |
| William Morris Way | £ 1,505,000 | 0 | 0.00 KM |
| Watermeadow Lane | £ 782,375 | 0 | 0.00 KM |
| Potters Road | £ 822,500 | 0 | 0.00 KM |
| Harbour Avenue | £ 0 | 0 | 0.00 KM |
Nearby Transport
| Name | NLC | TLC | Distance |
|---|---|---|---|
| Imperial Wharf | 9586 | IMW | 0.22 KM |
| Wandsworth Town | 5576 | WNT | 1.45 KM |
| Clapham Junction | 5595 | CLJ | 1.70 KM |
| West Brompton | 8875 | WBP | 2.11 KM |
| Earlsfield | 5584 | EAD | 3.45 KM |
Nearby Listings
| Address | Price | Type | Score | Distance |
|---|---|---|---|---|
| Lensbury Avenue, Fulham, SW6 | £ 1,200,000 | BUY | 7 / 10 | 0.00 KM |
| Lensbury Avenue, Fulham, SW6 | £ 2,000,000 | BUY | 7 / 10 | 0.00 KM |
| The Boulevard, Fulham, SW6 | £ 800,000 | BUY | 7 / 10 | 0.00 KM |
| Lensbury Avenue, Imperial Wharf, SW6 | £ 1,050,000 | BUY | 7 / 10 | 0.00 KM |
| Lensbury Avenue, Fulham, SW6 | £ 725,000 | BUY | 7 / 10 | 0.00 KM |
Nearby Properties
| Address | Price | Distance |
|---|---|---|
| Marina Point | £ 625,000 | 0.05 KM |
| 1 Chelsea Crescent | £ 1,350,000 | 0.24 KM |
| 43 Chelsea Crescent | £ 2,400,000 | 0.24 KM |
| 54 Chelsea Crescent | £ 4,100,000 | 0.24 KM |
| 34 Chelsea Crescent | £ 665,000 | 0.24 KM |