Reed & Baum says ..
A Cherished Family Home Ready for Its Next ChapterLovingly maintained for a generation, this spacious home is brimming with potential, ready for its next owners to reimagine and make their own.With generous accommodation, a fantastic south-west facing garden, and a prime location close to the vil...
Property Oracle says ..
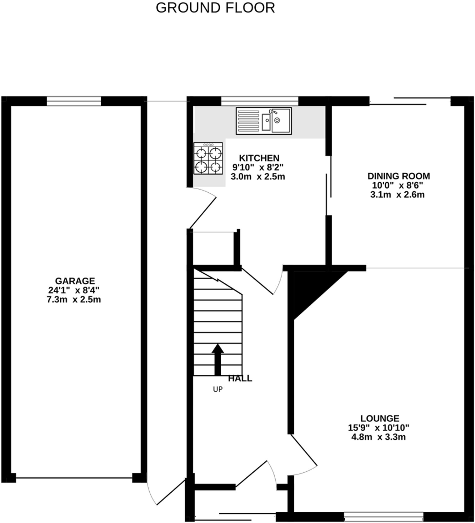
Quorn is a desirable village in Leicestershire, known for its good schools and convenient access to Loughborough and Leicester. The property’s proximity to St Bartholomew’s Church of England Primary School (rated ‘Good’ by Ofsted) is a significant advantage for families. The presence of other well-regarded schools nearby further enhances its appeal. Good transport links to Loughborough and Leicester via East Midlands Railway also contribute positively to the location score. The property shows its age and requires some modernisation. The interior decor is dated, and while structurally sound, the property would benefit from updating to enhance its overall condition. The garden also appears somewhat overgrown and could benefit from landscaping. The property includes a garden, which is a positive feature, although it appears to require some maintenance. The size of the garden is not specified, but the images suggest a relatively modest-sized plot. The list price of £360,000 is significantly below the average house price in the area (£549,850). However, the property’s smaller size (528.62 sqft compared to the average of 1,260 sqft) and the need for modernisation must be considered. Considering the average price per sqft of £436, and the property’s condition, the list price may represent reasonable value, despite being below the average for the area. Nearby comparable properties support this assessment, with some selling for similar prices. Further investigation into the specifics of the property’s condition and required renovations would be beneficial for a more precise evaluation.
Therefore, we give this property 6 / 10. *Disclaimer: This is our option and does constitute a recommendation or financial advice. Do your own research. *
- Price
- 7
- Condition
- 6
- Location
- 8
- Land
- 5
- Bedrooms
- 5
- Bathrooms
- 1
- Sqft (est)
- 528.62
The heatmap indicates the level of crime in the area. The color of the heatmap indicates the crime severity and recency.
Metrics Year-on-Year
- Average area value
- 607,500.00 £Increased by 4.15 %
- Est sale value
- 477,872.48 £Increased by 164.33 %
- Average area rental value
- 1,328.00 £/moDecreased by 13.15 %
- Est letting value
- 528.62 £/mo
- Est rental Yield
- 2.62 %Decreased by 16.83 %
- Crime Rate
- 11.00 %Unchanged by 0.00 %
Agent Activity
Reed & Baum marked this listing as sold.
Reed & Baum created the listing.
Nearby Schools
| Name | Type | Ofsted | Distance |
|---|---|---|---|
| St Bartholomew'S Church Of England Primary School | Voluntary Controlled School | Good | 0.13 KM |
| Woodside Lodge Outdoor Learning Centre | Other Independent Special School | Outstanding | 0.96 KM |
| Rawlins Academy | Academy Converter | Good | 1.13 KM |
| Beacon Academy | Academy Sponsor Led | Requires improvement | 2.81 KM |
| Shelthorpe Sure Start Children'S Centre | Children's Centre | 2.90 KM |
Images
Nearby Streets
| Name | Average Price | Average Sqft | Distance |
|---|---|---|---|
| Inglesant Close | £ 0 | 0 | 0.00 KM |
| A6 | £ 0 | 0 | 0.00 KM |
| Kinchley Lane | £ 400,000 | 0 | 0.00 KM |
| Paddock Close | £ 0 | 0 | 0.00 KM |
Nearby Transport
| Name | NLC | TLC | Distance |
|---|---|---|---|
| Barrow-Upon-Soar | 1903 | BWS | 4.08 KM |
| Loughborough | 1897 | LBO | 4.24 KM |
| Sileby | 1902 | SIL | 8.00 KM |
Nearby Listings
| Address | Price | Type | Score | Distance |
|---|---|---|---|---|
| Warwick Avenue, Quorn, LE12 | £ 360,000 | BUY | 6 / 10 | 0.00 KM |
| Warwick Avenue, Quorn, LE12 | £ 475,000 | BUY | Unknown | 0.12 KM |
| Lambkin Close, Quorn, LE12 | £ 385,000 | BUY | 7 / 10 | 0.16 KM |
| Rumsey Close, Quorn, Loughborough | £ 415,000 | BUY | 7 / 10 | 0.17 KM |
| The Sandhills, Quorn, LE12 | £ 380,000 | BUY | 7 / 10 | 0.18 KM |
Nearby Properties
| Address | Price | Distance |
|---|---|---|
| 5 Woodward Avenue | £ 595,000 | 0.11 KM |
| 1a Woodward Avenue | £ 205,000 | 0.11 KM |
| 3 Woodward Avenue | £ 67,500 | 0.13 KM |
| 1 Woodward Avenue | £ 665,000 | 0.13 KM |
| 48 Warwick Avenue | £ 189,950 | 0.13 KM |