DA
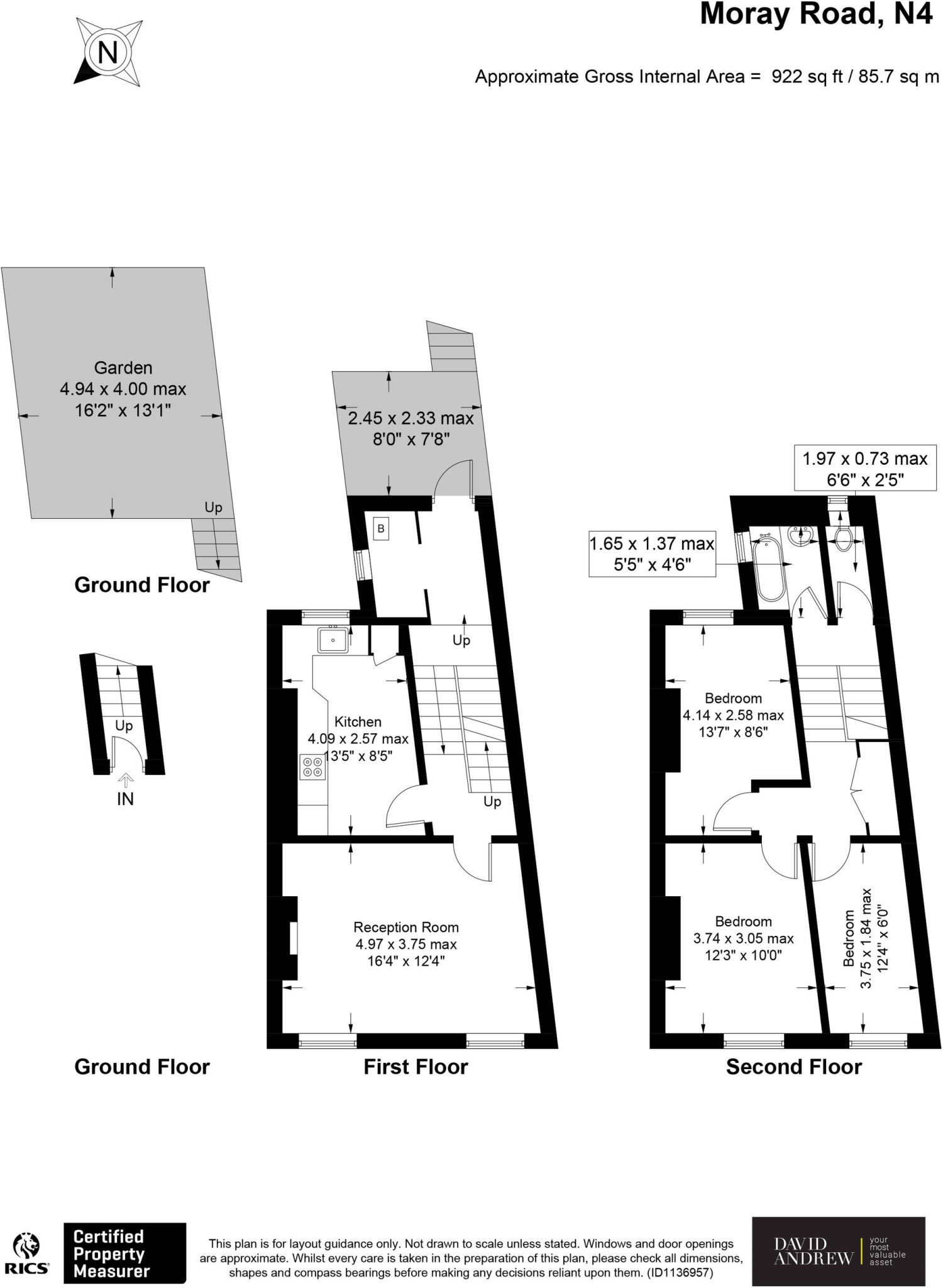
Moray Road, London, N4
By David Andrew
£ 3,350
David Andrew says ..
Beautifully presented and recently refurbished to an exceptional standard, this spacious three-bedroom apartment is arranged over the top two floors of a charming Victorian conversion on the highly sought-after Moray Road. Just moments from Finsbury Park Station, the property benefits from both a...
- Bedrooms
- 3
- Bathrooms
- 1
The heatmap indicates the level of crime in the area. The color of the heatmap indicates the crime severity and recency.
Metrics Year-on-Year
- Average area value
- 493,333.00 £Decreased by 29.75 %
- Average area rental value
- 2,514.00 £/moIncreased by 5.59 %
- Est rental Yield
- 6.12 %Increased by 50.37 %
- Crime Rate
- 7.00 %Unchanged by 0.00 %
from 702,262.00 £
from 2,381.00 £/mo
from 4.07 %
from 7.00 %
Agent Activity
David Andrew created the listing.
Nearby Schools
| Name | Type | Ofsted | Distance |
|---|---|---|---|
| Pooles Park Primary School | Community School | Good | 0.26 KM |
| North Islington Nursery School | Local Authority Nursery School | Good | 0.28 KM |
| North Islington Nursery School And Children'S Centre | Children's Centre | 0.32 KM | |
| Stroud Green Children'S Centre | Children's Centre Linked Site | 0.42 KM | |
| Christ The King Catholic Primary School | Voluntary Aided School | Good | 0.47 KM |
Images
Nearby Streets
| Name | Average Price | Average Sqft | Distance |
|---|---|---|---|
| Dulas Street | £ 0 | 0 | 0.00 KM |
| Osborne Road | £ 0 | 0 | 0.00 KM |
| Cornwallis Square | £ 250,000 | 0 | 0.00 KM |
| Franchise Place | £ 0 | 0 | 0.00 KM |
| Cornwall Road | £ 751,658 | 0 | 0.00 KM |
Nearby Transport
| Name | NLC | TLC | Distance |
|---|---|---|---|
| Finsbury Park | 6119 | FPK | 0.57 KM |
| Crouch Hill | 7406 | CRH | 0.87 KM |
| Harringay | 6012 | HGY | 1.34 KM |
| Drayton Park | 6000 | DYP | 1.66 KM |
| Harringay Green Lanes | 7401 | HRY | 1.82 KM |
Nearby Listings
| Address | Price | Type | Score | Distance |
|---|---|---|---|---|
| Moray Road, London, N4 | £ 3,350 | RENT | Unknown | 0.00 KM |
| Moray Road, Finsbury Park, Stroud Green, London, N4 | £ 1,950 | RENT | Unknown | 0.03 KM |
| Fonthill Road, Finsbury Park, London, N4 | £ 3,300 | RENT | Unknown | 0.06 KM |
| Charteris Road, London, N4 | £ 2,750 | RENT | Unknown | 0.09 KM |
| Fonthill Road, London, N4 | £ 2,250 | RENT | Unknown | 0.10 KM |
Nearby Properties
| Address | Price | Distance |
|---|---|---|
| 88b Moray Road | £ 742,500 | 0.03 KM |
| 102b Moray Road | £ 223,000 | 0.03 KM |
| 84a Moray Road | £ 119,620 | 0.03 KM |
| 107b Moray Road | £ 5,000 | 0.04 KM |
| 109a Moray Road | £ 328,000 | 0.04 KM |