Folgate Street, London, E1
By Stirling Ackroyd
£ 475,000
Reviews
3 out of 5 stars
Stirling Ackroyd says ..
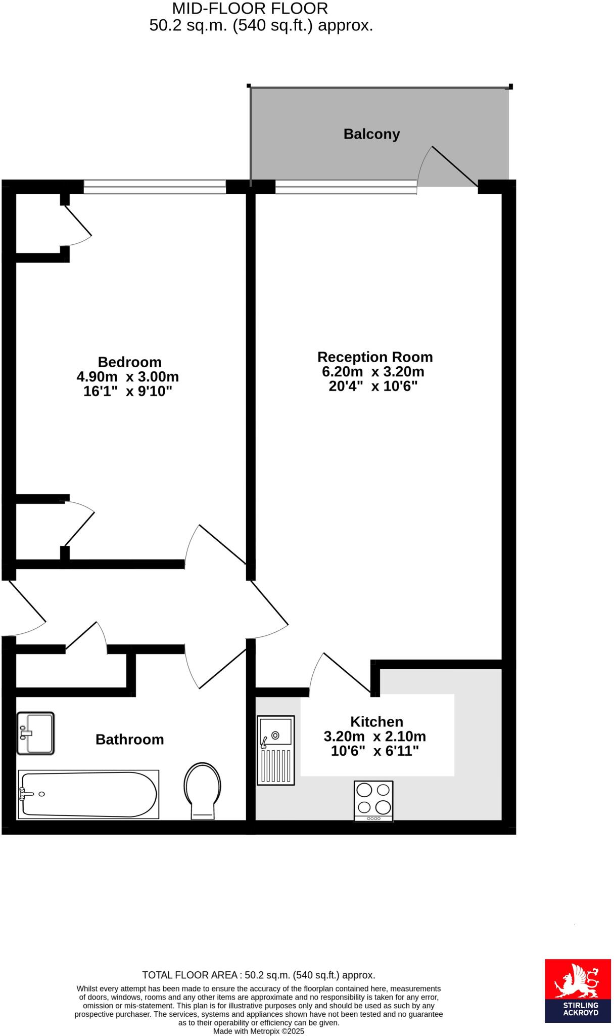
Perfectly positioned next to the ever-popular Spitalfields Market and a prime conservation area near the City, this beautifully bright one bedroom apartment offers both charm and modern convenience. The property features a spacious double bedroom, a contemporary bathroom and a bright r...
Property Oracle says ..
The property is located in Spitalfields, a vibrant area of London known for its trendy shops, cafes, and restaurants. It is also conveniently located near several transportation options, including Shoreditch High Street Overground station and Liverpool Street station. The proximity to good schools, such as Christ Church Cofe School and Virginia Primary School, adds to its family-friendly appeal. Based on the provided images, the property appears to be in good condition, with a modern and well-maintained interior. The presence of a communal garden is a positive feature, though the exact size of the private outdoor space is not specified. However, the lack of information regarding the property’s square footage makes it difficult to assess the price per square foot and determine the overall value for money. More information is needed to provide a complete analysis of the property’s price.
Therefore, we give this property 7 / 10. *Disclaimer: This is our option and does constitute a recommendation or financial advice. Do your own research. *
- Price
- 6
- Condition
- 8
- Location
- 9
- Land
- 7
- Bedrooms
- 1
- Bathrooms
- 1
- Lot (est)
- 540.00
The heatmap indicates the level of crime in the area. The color of the heatmap indicates the crime severity and recency.
Metrics Year-on-Year
- Average area value
- 650,000.00 £Decreased by 4.52 %
- Average area rental value
- 2,512.00 £/moIncreased by 3.16 %
- Est rental Yield
- 4.64 %Increased by 8.16 %
- Crime Rate
- 7.00 %Unchanged by 0.00 %
Agent Activity
Stirling Ackroyd created the listing.
Nearby Schools
| Name | Type | Ofsted | Distance |
|---|---|---|---|
| Christ Church Cofe School | Voluntary Aided School | Good | 0.41 KM |
| The Complete Works | Other Independent School | Good | 0.60 KM |
| Virginia Primary School | Community School | Outstanding | 0.66 KM |
| Workers' Educational Association | Further Education | Good | 0.76 KM |
| The Aldgate School | Voluntary Aided School | Outstanding | 0.77 KM |
Images
Nearby Streets
| Name | Average Price | Average Sqft | Distance |
|---|---|---|---|
| Spitalfields Market | £ 0 | 0 | 0.00 KM |
| Tenter Ground | £ 0 | 0 | 0.00 KM |
| Artillery Passage | £ 0 | 0 | 0.00 KM |
| Spital Yard | £ 0 | 0 | 0.00 KM |
| Shoreditch High Street | £ 0 | 0 | 0.00 KM |
Nearby Transport
| Name | NLC | TLC | Distance |
|---|---|---|---|
| Shoreditch High Street | 1024 | SDC | 0.32 KM |
| Liverpool Street | 6965 | LST | 0.74 KM |
| Fenchurch Street | 7490 | FST | 1.07 KM |
| Hoxton | 1023 | HOX | 1.23 KM |
| Moorgate | 6005 | MOG | 1.53 KM |
Nearby Listings
| Address | Price | Type | Score | Distance |
|---|---|---|---|---|
| Folgate Street, London, E1 | £ 475,000 | BUY | 7 / 10 | 0.00 KM |
| Folgate Street, Commercial Street | £ 525,000 | BUY | 6 / 10 | 0.02 KM |
| Folgate Street, Spitalfields | £ 675,000 | BUY | 6 / 10 | 0.02 KM |
| 54 Bishops Court, Folgate Street, London | £ 350,000 | BUY | Unknown | 0.02 KM |
| Folgate Street, LONDON, E1 | £ 650,000 | BUY | 7 / 10 | 0.02 KM |
Nearby Properties
| Address | Price | Distance |
|---|---|---|
| 14 Lamb Street | £ 855,120 | 0.05 KM |
| 13 Lamb Street | £ 1,145,000 | 0.05 KM |
| 24a Wheler Street | £ 364,000 | 0.13 KM |
| 12a Calvin Street | £ 394,000 | 0.14 KM |
| 24 Calvin Street | £ 2,400,000 | 0.14 KM |