Langdale Drive, Beaconhill Glade, Cramlington
By Renown Estate Agents
£ 169,950
Reviews
3 out of 5 stars
Renown Estate Agents says ..
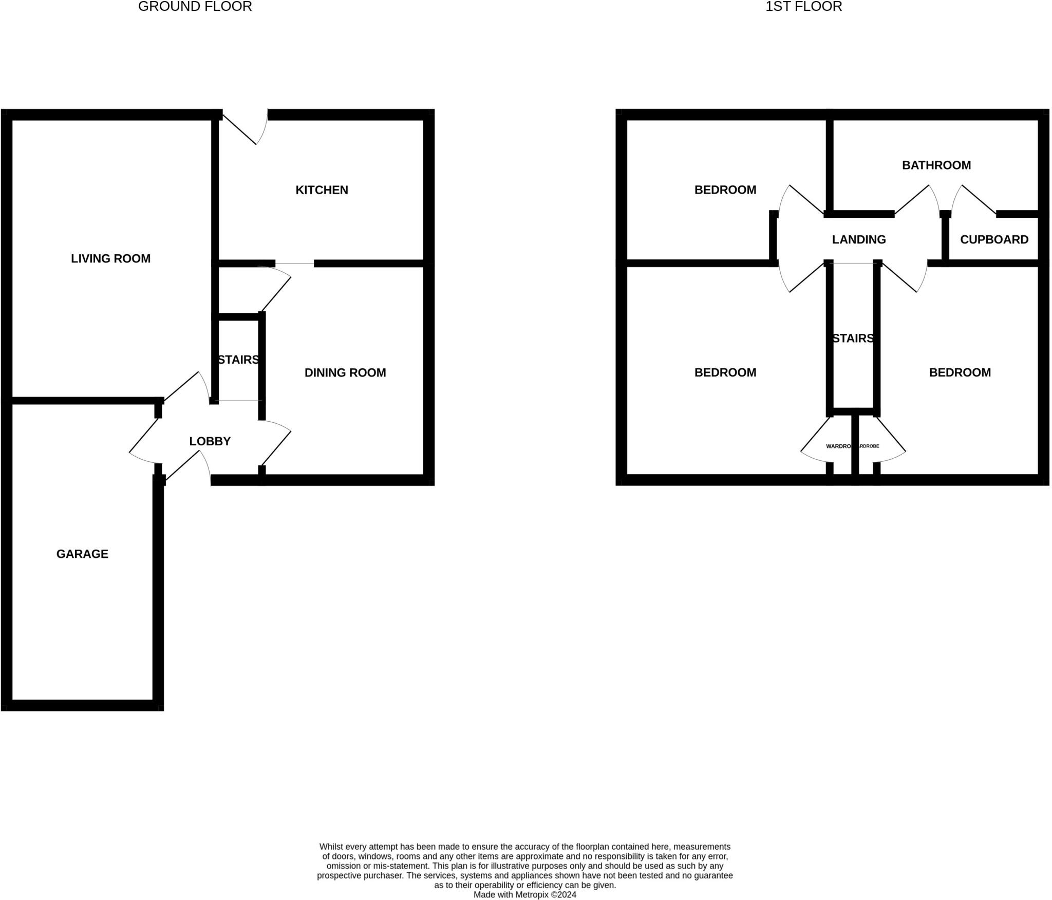
A three bedroomed, semi detached house situated in a well established residential area close to town centre amenities. The property offers well planned accommodation with two living rooms and three good size bedrooms. There is an integral garage with access to the hallway, which could be ada (cont.)
Property Oracle says ..
This three-bedroom semi-detached house in Cramlington, Northumberland, offers a comfortable family home. The property is conveniently located near a train station and several schools, including a well-rated primary school. The interior appears clean and well-maintained, though the décor and fixtures appear outdated. A kitchen and bathroom are visible and are functional. The property also features a small garden and a garage, which are plus points. While the property’s condition is reasonable, potential buyers should factor in the cost of possible modernisations or updates. The listed price is competitive relative to comparable properties in the area. Overall, the property presents a solid option for those seeking a family home in Cramlington.
Therefore, we give this property 6 / 10. *Disclaimer: This is our option and does constitute a recommendation or financial advice. Do your own research. *
- Price
- 7
- Condition
- 6
- Location
- 7
- Land
- 4
- Bedrooms
- 3
- Bathrooms
- 1
- Sqft (est)
- 1,200.00
The heatmap indicates the level of crime in the area. The color of the heatmap indicates the crime severity and recency.
Metrics Year-on-Year
- Average area value
- 625,000.00 £Increased by 9.15 %
- Est sale value
- 794,400.00 £Increased by 24.67 %
- Average area rental value
- 1,525.00 £/moIncreased by 1.26 %
- Est letting value
- 1,200.00 £/moUnchanged by 0.00 %
- Est rental Yield
- 2.93 %Decreased by 7.28 %
- Crime Rate
- 28.00 %Unchanged by 0.00 %
Agent Activity
Renown Estate Agents created the listing.
Nearby Schools
| Name | Type | Ofsted | Distance |
|---|---|---|---|
| Beaconhill Community Primary School | Community School | Good | 0.48 KM |
| Cramlington Children'S Centre | Children's Centre | 0.60 KM | |
| Cramlington Learning Village | Academy Converter | Good | 1.32 KM |
| Hareside Primary School | Community School | Good | 1.36 KM |
| Cramlington Shanklea Primary School | Community School | Good | 1.95 KM |
Images
Nearby Streets
| Name | Average Price | Average Sqft | Distance |
|---|---|---|---|
| Dandelion Drive | £ 0 | 0 | 0.00 KM |
| Dandelion Grove | £ 0 | 0 | 0.00 KM |
| Station Road | £ 0 | 0 | 0.00 KM |
| Rosebrough | £ 0 | 0 | 0.00 KM |
| Salisbury Close | £ 0 | 0 | 0.00 KM |
Nearby Transport
| Name | NLC | TLC | Distance |
|---|---|---|---|
| Cramlington | 7579 | CRM | 0.43 KM |
Nearby Listings
| Address | Price | Type | Score | Distance |
|---|---|---|---|---|
| Langdale Drive, Beaconhill Glade, Cramlington | £ 169,950 | BUY | 6 / 10 | 0.00 KM |
| Langdale Drive, Beaconhill Glade, Cramlington | £ 234,950 | BUY | 7 / 10 | 0.09 KM |
| Langdale Drive, Cramlington, NE23 | £ 220,000 | BUY | 7 / 10 | 0.14 KM |
| Langdale Drive, Cramlington, Northumberland, NE23 8EL | £ 179,950 | BUY | 6 / 10 | 0.18 KM |
| Longridge Way, Beacon Hill Glade, Cramlington | £ 139,950 | BUY | 6 / 10 | 0.25 KM |
Nearby Properties
| Address | Price | Distance |
|---|---|---|
| 133 Langdale Drive | £ 185,000 | 0.09 KM |
| 113 Langdale Drive | £ 170,345 | 0.09 KM |
| 111 Langdale Drive | £ 192,500 | 0.09 KM |
| 7 Larriston Place | £ 145,000 | 0.10 KM |
| 11 Larriston Place | £ 120,000 | 0.10 KM |