Gascoigne Halman says ..
A beautifully presented and thoughtfully extended detached family home situated on a popular cul-de-sac only 0.6 miles to Wilmslow town centre. Four bedrooms, three modern bathrooms, superb dining kitchen and a large private landscaped garden.
Property Oracle says ..
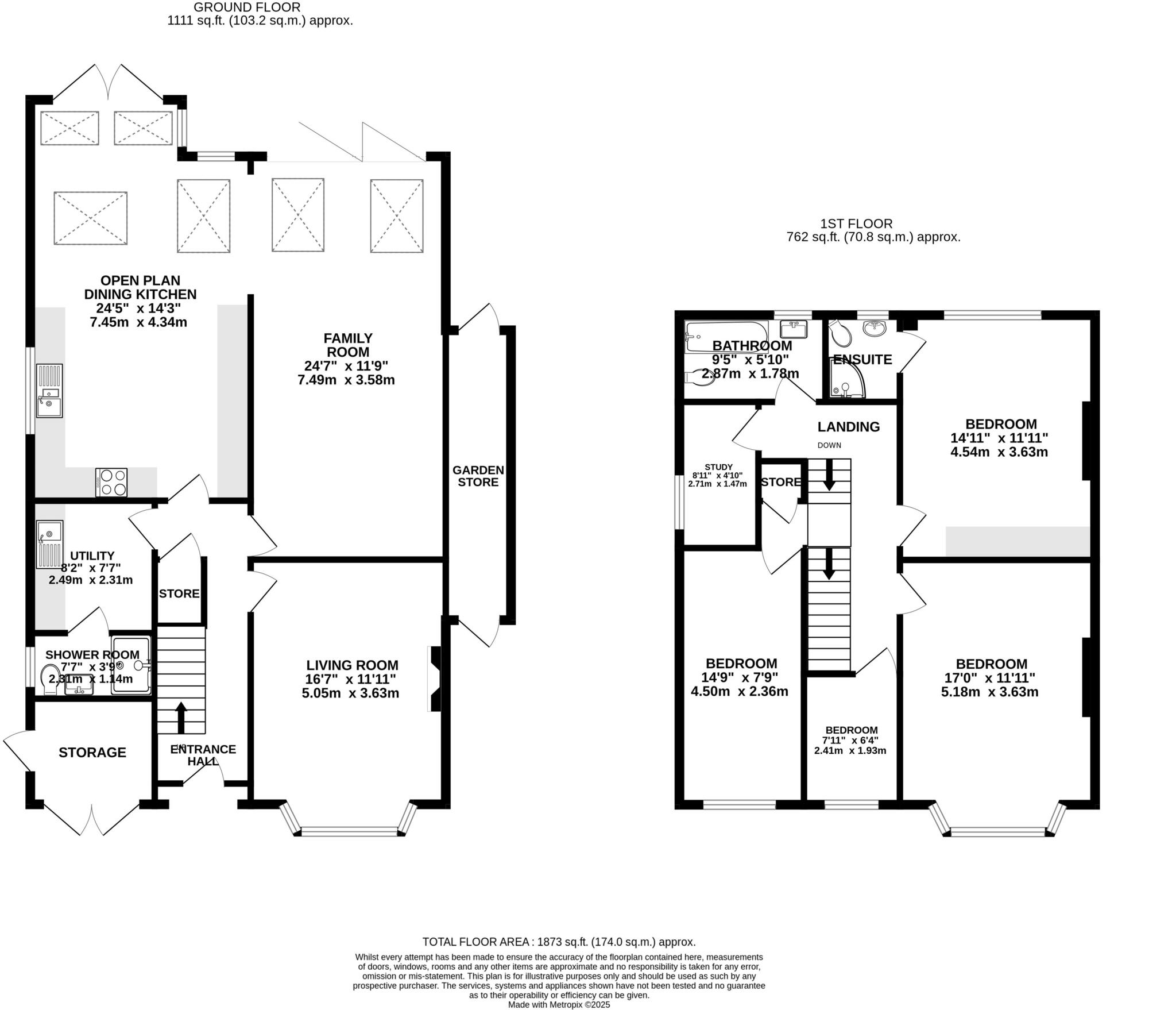
This property is a 4 bedroom detached house located on Thoresway Road in Wilmslow, Cheshire. Wilmslow is a desirable area known for its excellent schools and convenient location. The property itself appears to be in good condition, having undergone recent renovations or extensions, as evidenced by the modern kitchen and extension. The images show a well-maintained property with a good-sized garden. The list price of £840,000 is higher than the average price for the area (£555,509), but considering the size (1,873 sq ft), the modern updates, and the desirable location, it may represent reasonable value for money, though a detailed comparison with similar properties would be needed to confirm this. The property benefits from being close to highly-rated primary schools such as Ashdene Primary School (Outstanding Ofsted rating) and St Anne’s Fulshaw C Of E Primary School (Good Ofsted rating). Transport links are also good, with several train stations within a reasonable distance.
Therefore, we give this property 8 / 10. *Disclaimer: This is our option and does constitute a recommendation or financial advice. Do your own research. *
- Price
- 7
- Condition
- 9
- Location
- 9
- Land
- 7
- Bedrooms
- 4
- Bathrooms
- 3
- Sqft (est)
- 1,873.00
The heatmap indicates the level of crime in the area. The color of the heatmap indicates the crime severity and recency.
Metrics Year-on-Year
- Average area value
- 646,257.00 £Increased by 0.56 %
- Est sale value
- 1,223,069.00 £Increased by 46.09 %
- Average area rental value
- 2,875.00 £/moIncreased by 74.77 %
- Est letting value
- 3,746.00 £/moIncreased by 100.00 %
- Est rental Yield
- 5.34 %Increased by 73.94 %
- Crime Rate
- 12.00 %Unchanged by 0.00 %
Agent Activity
Gascoigne Halman created the listing.
Nearby Schools
| Name | Type | Ofsted | Distance |
|---|---|---|---|
| Ashdene Primary School | Community School | Outstanding | 0.27 KM |
| St Anne'S Fulshaw C Of E Primary School | Voluntary Controlled School | Good | 0.52 KM |
| Gorsey Bank Primary School | Academy Converter | Good | 1.24 KM |
| Lindow Community Primary School | Community School | Good | 1.48 KM |
| Alderley Edge Community Primary School | Community School | Outstanding | 1.56 KM |
Images
Nearby Streets
| Name | Average Price | Average Sqft | Distance |
|---|---|---|---|
| Ashdene Road | £ 775,000 | 0 | 0.00 KM |
| Regent Park Court | £ 0 | 0 | 0.00 KM |
| Sylvan Avenue | £ 0 | 0 | 0.00 KM |
| Hartford Avenue | £ 0 | 0 | 0.00 KM |
| Heathfield | £ 750,000 | 0 | 0.00 KM |
Nearby Transport
| Name | NLC | TLC | Distance |
|---|---|---|---|
| Alderley Edge | 2760 | ALD | 1.78 KM |
| Wilmslow | 2774 | WML | 2.34 KM |
| Styal | 2868 | SYA | 3.48 KM |
| Handforth | 2767 | HTH | 4.76 KM |
| Heald Green | 2860 | HDG | 5.86 KM |
Nearby Listings
| Address | Price | Type | Score | Distance |
|---|---|---|---|---|
| Thoresway Road, Wilmslow | £ 840,000 | BUY | 8 / 10 | 0.00 KM |
| Knutsford Road, Wilmslow | £ 325,000 | BUY | Unknown | 0.04 KM |
| Ashdene Road, Wilmslow | £ 489,950 | BUY | 6 / 10 | 0.07 KM |
| Ashdene Road, Wilmslow | £ 750,000 | BUY | 7 / 10 | 0.08 KM |
| Ashdene Road, Wilmslow, Cheshire, SK9 | £ 685,000 | BUY | 8 / 10 | 0.09 KM |
Nearby Properties
| Address | Price | Distance |
|---|---|---|
| 10 Ashdene Road | £ 213,000 | 0.07 KM |
| 1 Ashdene Road | £ 642,500 | 0.07 KM |
| 15 Ashdene Road | £ 546,500 | 0.07 KM |
| 14 Ashdene Road | £ 340,000 | 0.07 KM |
| 16 Ashdene Road | £ 622,000 | 0.07 KM |