Maple Quays, Canada Water, SE16
By Living in London
£ 600,000
Reviews
3 out of 5 stars
Living in London says ..
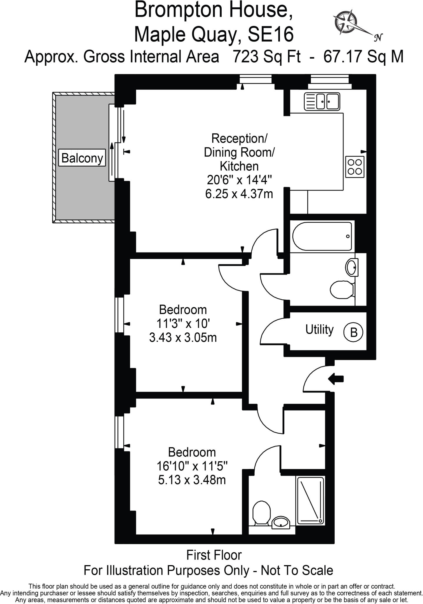
Unexpectedly back to market! This immaculate two double bedroom, two bathroom apartment in the popular Maple Quays development. Located next to Canada Water Station, residents also benefit from a 24hr Conceirge service and residents gym. The owner has also purchased a share of the freehold.
Property Oracle says ..
This is a modern two-bedroom, two-bathroom apartment located in Maple Quays, Canada Water. The property benefits from its proximity to excellent transport links and local schools. While it has no private garden, residents have access to communal gardens. The apartment is in good condition and priced competitively for the area.
Therefore, we give this property 6 / 10. *Disclaimer: This is our option and does constitute a recommendation or financial advice. Do your own research. *
- Price
- 7
- Condition
- 8
- Location
- 8
- Land
- 3
- Bedrooms
- 2
- Bathrooms
- 2
- Sqft (est)
- 723.00
The heatmap indicates the level of crime in the area. The color of the heatmap indicates the crime severity and recency.
Metrics Year-on-Year
- Average area value
- 622,222.00 £Increased by 5.44 %
- Est sale value
- 717,216.00 £Increased by 48.95 %
- Average area rental value
- 2,241.00 £/moIncreased by 5.31 %
- Est letting value
- 2,169.00 £/moIncreased by 50.00 %
- Est rental Yield
- 4.32 %Decreased by 0.23 %
- Crime Rate
- 12.00 %Unchanged by 0.00 %
Agent Activity
Living in London created the listing.
Nearby Schools
| Name | Type | Ofsted | Distance |
|---|---|---|---|
| Albion Primary School | Community School | Outstanding | 0.20 KM |
| St Joseph'S Catholic Primary School | Voluntary Aided School | Outstanding | 0.50 KM |
| Alfred Salter Primary School | Community School | Good | 0.72 KM |
| Rotherhithe Primary School | Community School | Good | 0.84 KM |
| Rotherhithe Primary School & Children'S Centre | Children's Centre | 0.84 KM |
Images
Nearby Streets
| Name | Average Price | Average Sqft | Distance |
|---|---|---|---|
| Deal Porter Square | £ 493,000 | 0 | 0.00 KM |
| Rotherhithe Tunnel | £ 537,500 | 0 | 0.00 KM |
| Marker Way | £ 0 | 0 | 0.00 KM |
| Saint Olav's Square | £ 0 | 0 | 0.00 KM |
| Rupack Street | £ 0 | 0 | 0.00 KM |
Nearby Transport
| Name | NLC | TLC | Distance |
|---|---|---|---|
| New Cross | 5150 | NWX | 0.13 KM |
| Canada Water | 1659 | ZCW | 0.13 KM |
| Rotherhithe | 1039 | ROE | 0.29 KM |
| Surrey Quays | 1083 | SQE | 0.72 KM |
| Wapping | 1085 | WPE | 0.88 KM |
Nearby Listings
| Address | Price | Type | Score | Distance |
|---|---|---|---|---|
| Maple Quays, Canada Water, SE16 | £ 600,000 | BUY | 6 / 10 | 0.00 KM |
| Albatross Way, Canada Water | £ 425,000 | BUY | Unknown | 0.06 KM |
| Ottawa House, Albatross Way, London, Greater London, SE16 | £ 450,000 | BUY | 6 / 10 | 0.06 KM |
| Swan Road, Canada Water, London, SE16 | £ 375,000 | BUY | 6 / 10 | 0.07 KM |
| Pump House Close, London, SE16 | £ 1,100,000 | BUY | 6 / 10 | 0.07 KM |
Nearby Properties
| Address | Price | Distance |
|---|---|---|
| 39 Pump House Close | £ 550,000 | 0.08 KM |
| 20 Pump House Close | £ 392,500 | 0.08 KM |
| 23 Pump House Close | £ 280,000 | 0.08 KM |
| 30 Pump House Close | £ 310,000 | 0.08 KM |
| 9 Pump House Close | £ 215,000 | 0.08 KM |