Central Way, Warrington, Cheshire
By Leaders Sales
£ 110,000
Reviews
3 out of 5 stars
Leaders Sales says ..
Property Address: 41 Sedgewick Court, Warrington, WA2 7TG. We advise that an offer has been made for the above property in the sum of £110,000.00. Any persons wishing to increase on this offer should notify the agents of their best offer prior to exchange of contracts.
Property Oracle says ..
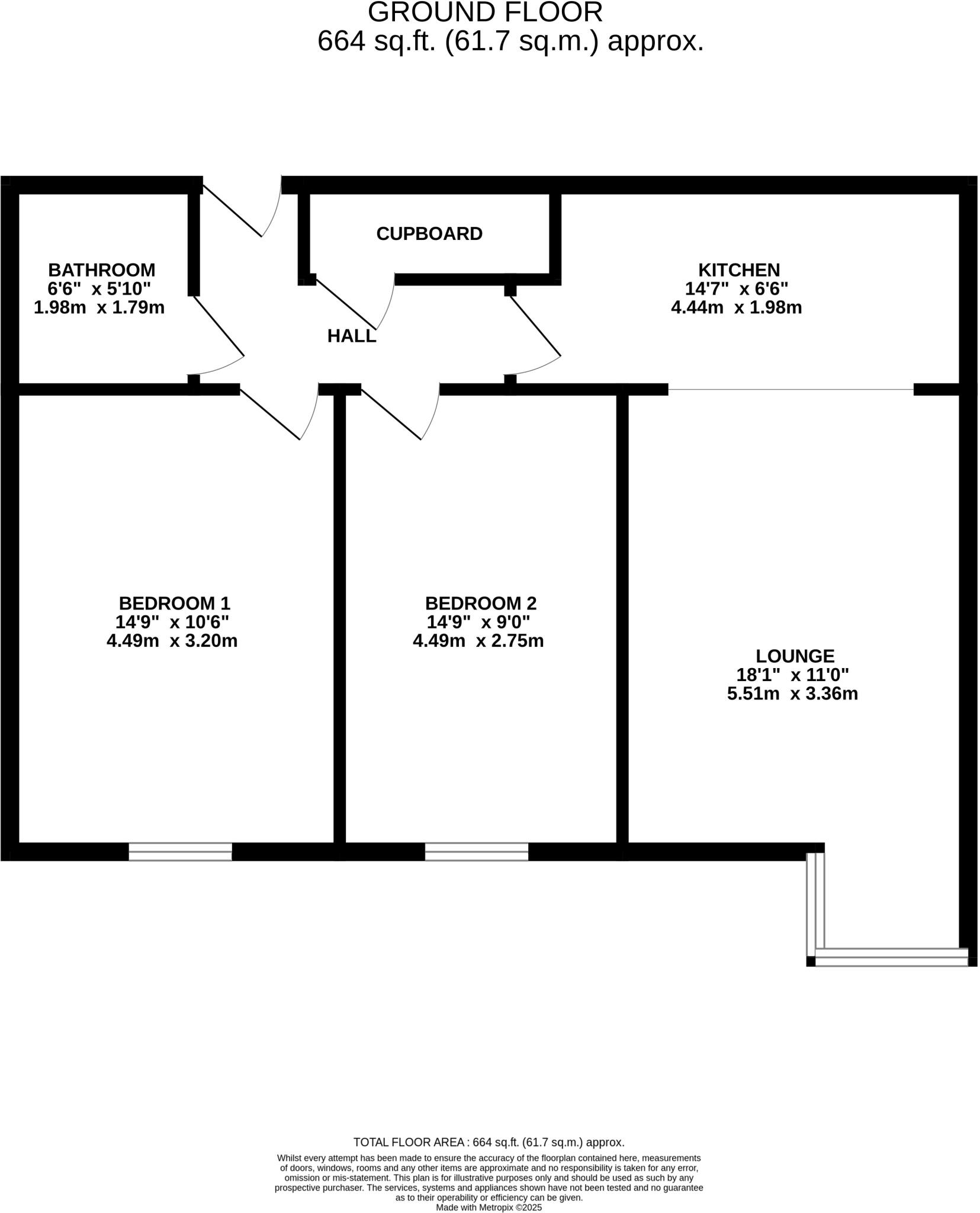
This property is a two-bedroom apartment located in Warrington, Cheshire. The apartment is situated within walking distance of Warrington Central train station, providing convenient access to transport links. Several primary schools are also within a reasonable distance. The apartment itself appears to be in good condition based on the provided images. While the carpeting shows some signs of wear, the kitchen and bathroom seem well-maintained. The property is part of a larger apartment complex, which offers parking. The list price of £110,000 is lower than the average price for the area (£205,077), and significantly lower than the average price per sqft (£247). Considering the location, condition and size, the list price may represent good value for money. However, more information on the property’s specific features and the overall state of the building would be beneficial for a more comprehensive evaluation.
Therefore, we give this property 6 / 10. *Disclaimer: This is our option and does constitute a recommendation or financial advice. Do your own research. *
- Price
- 9
- Condition
- 8
- Location
- 7
- Land
- 3
- Bedrooms
- 2
- Bathrooms
- 1
- Sqft (est)
- 573.66
- Lot (est)
- 664.00
The heatmap indicates the level of crime in the area. The color of the heatmap indicates the crime severity and recency.
Metrics Year-on-Year
- Average area value
- 192,108.00 £Increased by 3.14 %
- Est sale value
- 222,580.08 £Increased by 100.00 %
- Average area rental value
- 833.00 £/moIncreased by 0.48 %
- Est letting value
- 573.66 £/mo
- Est rental Yield
- 5.20 %Decreased by 2.62 %
- Crime Rate
- 4.00 %Unchanged by 0.00 %
Agent Activity
Leaders Sales created the listing.
Nearby Schools
| Name | Type | Ofsted | Distance |
|---|---|---|---|
| Utc Warrington | University Technical College | Good | 0.67 KM |
| Latchford St James Cofe Primary School | Voluntary Aided School | Good | 0.99 KM |
| Warrington St Ann'S Cofe Primary School | Voluntary Aided School | Good | 1.08 KM |
| Beamont Primary School | Academy Converter | 1.16 KM | |
| Sunshine Children'S Centre | Children's Centre | 1.27 KM |
Images
Nearby Streets
| Name | Average Price | Average Sqft | Distance |
|---|---|---|---|
| Lythgoes Lane | £ 195,000 | 0 | 0.00 KM |
| St Peter's Way | £ 131,000 | 0 | 0.00 KM |
| Cobden Street | £ 125,000 | 0 | 0.00 KM |
| Hardy Street | £ 0 | 0 | 0.00 KM |
| Smith Street | £ 0 | 0 | 0.00 KM |
Nearby Transport
| Name | NLC | TLC | Distance |
|---|---|---|---|
| Warrington Central | 2390 | WAC | 0.44 KM |
| Warrington Bank Quay | 2384 | WBQ | 1.64 KM |
| Padgate | 2387 | PDG | 3.87 KM |
| Warrington West | 6583 | WAW | 5.38 KM |
| Sankey For Penketh | 2388 | SNK | 6.75 KM |
Nearby Listings
| Address | Price | Type | Score | Distance |
|---|---|---|---|---|
| Central Way, Warrington, Cheshire | £ 110,000 | BUY | 6 / 10 | 0.00 KM |
| Central Way, Warrington, Cheshire | £ 115,000 | BUY | 4 / 10 | 0.01 KM |
| Central Way, Warrington, Cheshire | £ 120,000 | BUY | 6 / 10 | 0.01 KM |
| Apartment 41, Sedgewick Court, Central Way, Warrington, Cheshire WA2 7TG | £ 90,000 | BUY | 5 / 10 | 0.01 KM |
| Central Way, Warrington, Cheshire, WA2 | £ 105,000 | BUY | 5 / 10 | 0.02 KM |
Nearby Properties
| Address | Price | Distance |
|---|---|---|
| Sedgewick Court | £ 145,000 | 0.02 KM |
| 218 St Peters Way | £ 85,000 | 0.16 KM |
| 188 St Peters Way | £ 85,000 | 0.16 KM |
| 202 St Peters Way | £ 75,000 | 0.16 KM |
| 212 St Peters Way | £ 169,000 | 0.16 KM |