Mostyn Square, Llanishen, Cardiff
By Online Agent Cardiff
£ 350,000
Reviews
4 out of 5 stars
Online Agent Cardiff says ..
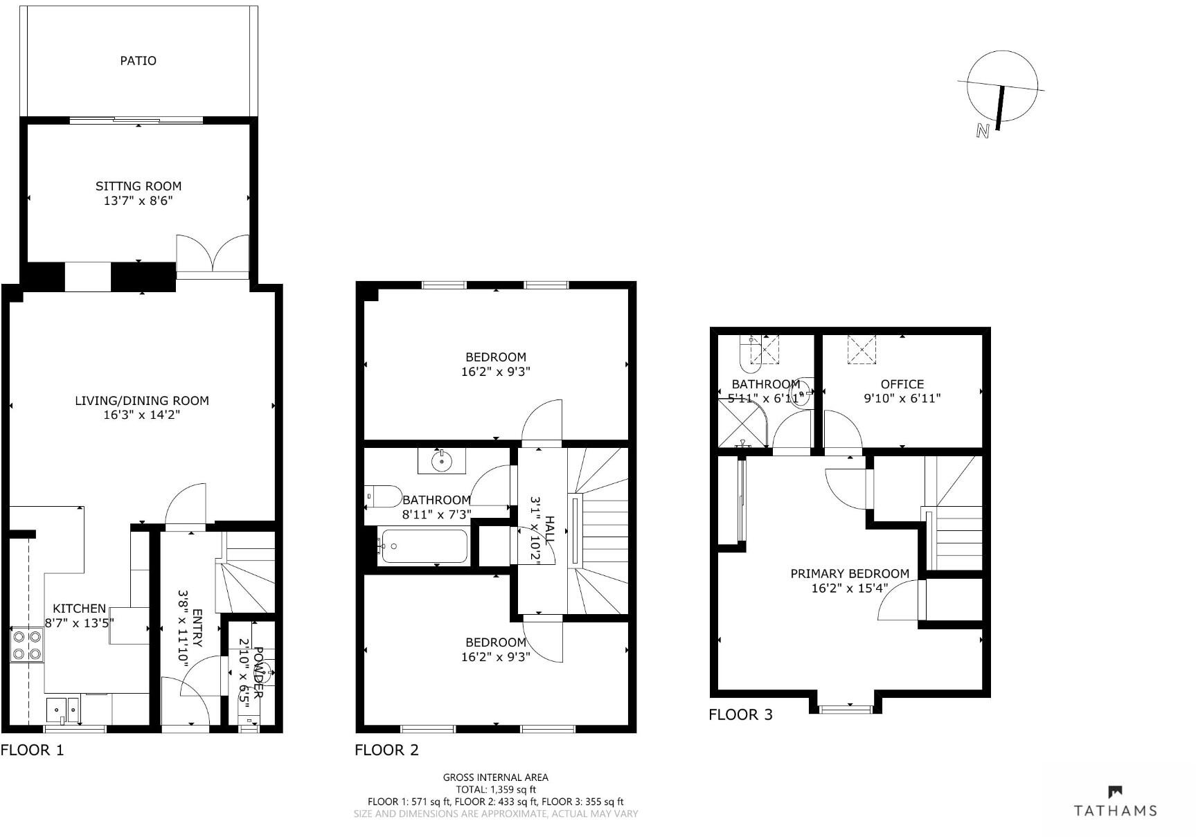
Tathams are pleased to present this 3 bedroom Town House located in the desirable area of Llanishen, Cardiff.
Property Oracle says ..
This three-bedroom, two-bathroom terraced house in Llanishen, Cardiff is presented in excellent condition and benefits from a well-maintained rear garden. The property appears modern and well-presented throughout, with a contemporary kitchen and updated bathrooms. The location in Llanishen offers proximity to several schools, including primary and secondary options, and is within reasonable distance of several train stations providing links to Cardiff city centre and beyond. The list price of £350,000 is slightly above the average price for the area (£331,634), however, the property’s size (1229.26 sqft) is considerably larger than the average (866 sqft) in the area, and its modern condition and inclusion of a garden are likely contributing factors to the higher asking price. Compared to nearby terraced properties, the price per sqft is competitive. While some nearby properties are listed at lower prices, they are either smaller or of a different property type (flats). Overall, the property presents a good value proposition, considering its condition, size, location, and amenities.
Therefore, we give this property 8 / 10. *Disclaimer: This is our option and does constitute a recommendation or financial advice. Do your own research. *
- Price
- 8
- Condition
- 9
- Location
- 8
- Land
- 7
- Bedrooms
- 3
- Bathrooms
- 2
- Sqft (est)
- 1,229.26
The heatmap indicates the level of crime in the area. The color of the heatmap indicates the crime severity and recency.
Metrics Year-on-Year
- Average area value
- 369,433.00 £Increased by 14.08 %
- Est sale value
- 478,182.14 £Decreased by 3.23 %
- Average area rental value
- 1,425.00 £/moIncreased by 27.80 %
- Est letting value
- 1,229.26 £/moUnchanged by 0.00 %
- Est rental Yield
- 4.63 %Increased by 12.11 %
- Crime Rate
- 25.00 %Unchanged by 0.00 %
Agent Activity
Online Agent Cardiff created the listing.
Nearby Schools
| Name | Type | Ofsted | Distance |
|---|---|---|---|
| Ton-Yr-Ywen Primary School | Welsh Establishment | 0.85 KM | |
| Ysgol-Y-Wern | Welsh Establishment | 0.87 KM | |
| Coed Glas Primary School | Welsh Establishment | 1.40 KM | |
| Llanishen Fach Primary School | Welsh Establishment | 1.43 KM | |
| Llanishen High School | Welsh Establishment | 1.45 KM |
Images
Nearby Streets
| Name | Average Price | Average Sqft | Distance |
|---|---|---|---|
| Tasker Drive | £ 130,000 | 0 | 0.00 KM |
| Pen-y-Groes Avenue | £ 392,500 | 0 | 0.00 KM |
| Tŷ Glas Road | £ 177,475 | 0 | 0.00 KM |
| Ffordd Tŷ Unnos | £ 221,658 | 0 | 0.00 KM |
| Waun-Y-Groes Road | £ 325,000 | 0 | 0.00 KM |
Nearby Transport
| Name | NLC | TLC | Distance |
|---|---|---|---|
| Ty Glas | 3817 | TGS | 0.32 KM |
| Birchgrove | 3907 | BCG | 0.56 KM |
| Rhiwbina | 3906 | RHI | 1.84 KM |
| Llanishen | 3847 | LLS | 1.97 KM |
| Heath Low Level | 3908 | HLL | 1.97 KM |
Nearby Listings
| Address | Price | Type | Score | Distance |
|---|---|---|---|---|
| Mostyn Square, Llanishen, Cardiff | £ 350,000 | BUY | 8 / 10 | 0.00 KM |
| Mostyn Square, Cardiff | £ 340,000 | BUY | 7 / 10 | 0.00 KM |
| Tatham Road, Llanishen, Cardiff | £ 150,000 | BUY | 5 / 10 | 0.09 KM |
| Tatham Road, Llanishen, Cardiff, CF14 | £ 170,000 | BUY | 5 / 10 | 0.09 KM |
| Tatham Road, Llanishem, Cardiff | £ 189,950 | BUY | 6 / 10 | 0.09 KM |
Nearby Properties
| Address | Price | Distance |
|---|---|---|
| 62 Ashbourn Way | £ 190,000 | 0.09 KM |
| 101 Tatham Road | £ 125,000 | 0.09 KM |
| 61 Tatham Road | £ 152,000 | 0.09 KM |
| 59 Tatham Road | £ 149,000 | 0.09 KM |
| 57 Tatham Road | £ 132,000 | 0.09 KM |