Lincombe, Lee, Devon, ILFRACOMBE, EX34
By Match Property
£ 1,250,000
Reviews
3 out of 5 stars
Match Property says ..
A 'Unique And Distinctive' Property! - A NEW LUXURY COASTAL HOME designed for FLEXIBLE LIVING! Set on 0.7 ACRES near LEE BAY, this 4–6 BED PROPERTY features HIGH-TECH ENERGY EFFICIENCY, OPEN SPACES & BESPOKE OPTIONS. Secure it early and MAKE IT UNIQUELY YOURS!
Property Oracle says ..
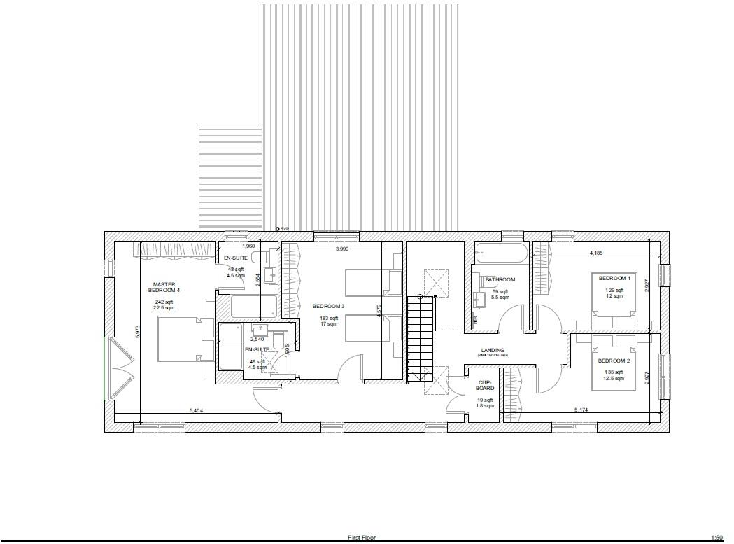
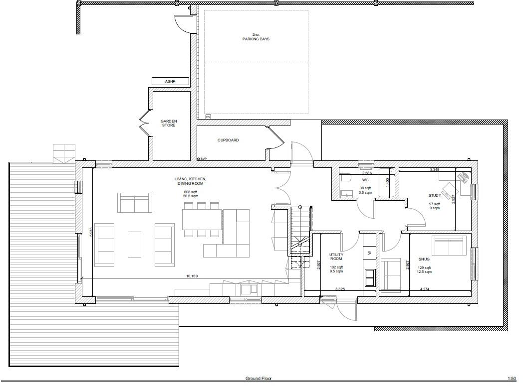
The property is a new build, six bedroom house located in Lincombe, Lee, Devon. Based on the images provided the property appears to be finished to a high standard and is in excellent condition. The location is rural, with the nearest school being approximately 3km away. There is evidence of a small garden, although the plot size is listed as 0.00 sqft. The list price of £1,250,000 seems high given the plot size and the average house price on Dibbon’s Lane is £643,000. However, the property is new build, has six bedrooms and four bathrooms and is finished to a high standard. The surrounding area is beautiful, with views over Lee Bay. This could justify the higher price.
Therefore, we give this property 6 / 10. *Disclaimer: This is our option and does constitute a recommendation or financial advice. Do your own research. *
- Price
- 6
- Condition
- 10
- Location
- 7
- Land
- 3
- Bedrooms
- 6
- Bathrooms
- 4
- Sqft (est)
- 974.00
The heatmap indicates the level of crime in the area. The color of the heatmap indicates the crime severity and recency.
Metrics Year-on-Year
- Average area value
- 216,688.00 £Decreased by 23.88 %
- Est sale value
- 184,086.00 £Decreased by 28.41 %
- Average area rental value
- 1,100.00 £/moIncreased by 6.49 %
- Est letting value
- 0.00 £/mo
- Est rental Yield
- 6.09 %Increased by 40.00 %
- Crime Rate
- 0.00 %
Agent Activity
Match Property created the listing.
Nearby Schools
| Name | Type | Ofsted | Distance |
|---|---|---|---|
| Ilfracombe Infant And Nursery School | Community School | Good | 3.22 KM |
| Ilfracombe Children'S Centre | Children's Centre | 3.23 KM | |
| Braunton Children'S Centre | Children's Centre | 3.23 KM | |
| Ilfracombe Church Of England Junior School | Voluntary Controlled School | Good | 3.53 KM |
| The Ilfracombe Church Of England Academy | Academy Sponsor Led | Good | 4.04 KM |
Images
Nearby Streets
| Name | Average Price | Average Sqft | Distance |
|---|---|---|---|
| Dibbon's Lane | £ 643,000 | 0 | 0.00 KM |
| Whitestone Cottages | £ 0 | 0 | 0.00 KM |
| Shaftsborough Lane | £ 0 | 0 | 0.00 KM |
| B3343 | £ 0 | 0 | 0.00 KM |
| Langleigh Lane | £ 335,000 | 0 | 0.00 KM |
Nearby Listings
| Address | Price | Type | Score | Distance |
|---|---|---|---|---|
| Lincombe, Lee, Devon, ILFRACOMBE, EX34 | £ 1,250,000 | BUY | 6 / 10 | 0.00 KM |
| Lincombe, Lee, Devon, ILFRACOMBE, EX34 | £ 450,000 | BUY | 7 / 10 | 0.04 KM |
| Lincombe, Lee, Devon, ILFRACOMBE, EX34 | £ 375,000 | BUY | 6 / 10 | 0.04 KM |
| Lincombe, Lee, Devon, ILFRACOMBE, EX34 | £ 850,000 | BUY | 7 / 10 | 0.14 KM |
| Lincombe, Lee, Ilfracombe, Devon, EX34 | £ 500,000 | BUY | 6 / 10 | 0.31 KM |
Nearby Properties
| Address | Price | Distance |
|---|---|---|
| Sea View | £ 279,950 | 0.16 KM |
| Hillsview | £ 275,000 | 0.16 KM |
| Blackberry Downs | £ 365,000 | 0.16 KM |
| Avalon | £ 210,000 | 1.19 KM |
| 24 Higher Slade | £ 405,000 | 1.19 KM |