Upfield, Horley, Surrey, RH6
MA

Upfield, Horley, Surrey, RH6

By Mayhew Estates

£ 850,000

Reviews

4 out of 5 stars

Mayhew Estates says ..

OFFERED TO THE MARKET ON A PRICE GUIDE OF £850,000 - £885,000. POPULAR LOCATION! A wonderfully presented and recently modernised four bedroom detached family home situated a stone's throw from Horley town centre and train station!

Property Oracle says ..

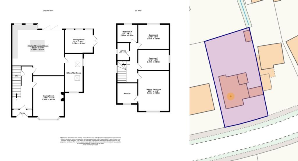
This property is a 4 bedroom, 2 bathroom detached house located in Upfield, Horley, Surrey. The location benefits from being close to Horley train station, providing convenient access to London and Gatwick Airport. There are also several well-regarded primary schools within a reasonable distance. The property itself appears to have been recently renovated or extended, with a modern kitchen and bathrooms. The images show a large garden, offering ample outdoor space. Given the size of the property (2,377.75 sqft), the modern condition, and the desirable location, the asking price of £850,000 appears to be within the range of similar properties in the area.

Therefore, we give this property 8 / 10. *Disclaimer: This is our option and does constitute a recommendation or financial advice. Do your own research. *

Price
7
Condition
9
Location
9
Land
8
Bedrooms
4
Bathrooms
2
Sqft (est)
2,377.75

The heatmap indicates the level of crime in the area. The color of the heatmap indicates the crime severity and recency.

Metrics Year-on-Year

Average area value
401,643.00 £
Decreased by 13.23 %
from 462,859.00 £
Est sale value
1,131,809.00 £
Increased by 40.83 %
from 803,679.50 £
Average area rental value
1,377.00 £/mo
Decreased by 6.96 %
from 1,480.00 £/mo
Est letting value
2,377.75 £/mo
Unchanged by 0.00 %
from 2,377.75 £/mo
Est rental Yield
4.11 %
Increased by 7.03 %
from 3.84 %
Crime Rate
3.00 %
Unchanged by 0.00 %
from 3.00 %

Agent Activity

  • Mayhew Estates created the listing.

Nearby Schools

NameTypeOfstedDistance
Horley Infant SchoolCommunity SchoolGood0.73 KM
Manorfield Primary And Nursery SchoolCommunity SchoolGood0.94 KM
Yattendon SchoolFoundation SchoolGood0.98 KM
Oakwood SchoolCommunity SchoolGood1.39 KM
Langshott Primary SchoolCommunity SchoolGood1.50 KM

Images

Picture No. 03 Picture No. 18 Picture No. 20 Picture No. 23 Picture No. 16 Picture No. 22 Picture No. 14 Picture No. 21 Picture No. 06 Picture No. 07 Picture No. 12 Picture No. 13 Picture No. 09 Picture No. 08 Picture No. 05 Picture No. 01 Picture No. 02 Picture No. 10 Picture No. 11 Picture No. 15 Picture No. 19 Picture No. 24 Picture No. 04 Picture No. 17

Nearby Streets

NameAverage PriceAverage SqftDistance
Delta Bungalows £ 000.00 KM
The Drive £ 475,00000.00 KM
Church View Close £ 691,83300.00 KM
Fishers Farm £ 795,00000.00 KM
Oakwood Road £ 500,00000.00 KM

Nearby Transport

NameNLCTLCDistance
Horley5365HOR0.70 KM
Gatwick Airport5416GTW1.56 KM
Salfords (Surrey)5380SAF3.69 KM
Three Bridges5491TBD5.84 KM
Earlswood (Surrey)5414ELD6.50 KM

Nearby Listings

AddressPriceTypeScoreDistance
Upfield, Horley, Surrey, RH6 £ 850,000BUY8 / 100.00 KM
Upfield, Horley, RH6 £ 900,000BUY7 / 100.01 KM
Lechford Road, Horley, Surrey £ 386,500BUY6 / 100.13 KM
Ref: SB - Ringley Avenue, Horley, RH6 7HA £ 900,000BUY7 / 100.27 KM
Upfield, Horley, Surrey, RH6 £ 625,000BUYUnknown0.27 KM

Nearby Properties

AddressPriceDistance
8 Upfield £ 420,0000.00 KM
22 Upfield £ 550,0000.00 KM
25 Upfield £ 447,5000.08 KM
23 Upfield £ 845,0000.08 KM
31 Upfield £ 599,9500.08 KM