Atterton Lane, Witherley, CV9
HO

Atterton Lane, Witherley, CV9

By Howkins & Harrison LLP

£ 699,000

Reviews

3 out of 5 stars

Howkins & Harrison LLP says ..

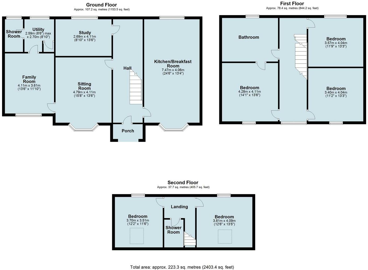
A character double fronted detached home backing onto open fields and enjoying countryside views. With well proportioned accommodation exceeding 2400sqft arranged over three floors. In brief comprising:- three reception rooms, an open plan kitchen/breakfast room, ground floor shower room and uti...

Property Oracle says ..

This five-bedroom, three-bathroom detached property in Witherley, Leicestershire, presents a compelling proposition for buyers seeking a spacious family home in a desirable village setting. The property boasts a substantial size exceeding 2400 square feet and is arranged over three floors, indicating ample living space. The kitchen appears to have been recently modernized with contemporary fittings. Similarly, the bathrooms show a high level of upkeep. The property’s character is evident in its features, although the precise nature of these features is not extensively detailed. The substantial garden provides plenty of outdoor space, backing onto open fields, and this offers a potential advantage. The nearby schools are well-rated, and access to Atherstone train station provides convenient transport links. The absence of a detailed plot size and the limited data on nearby property pricing prevent a precise assessment of value per square foot, thus a conclusive statement on exceptional value is not possible. Overall, this property exhibits several attractive qualities but lacks some critical data points for a complete and totally unbiased valuation.

Therefore, we give this property 6 / 10. *Disclaimer: This is our option and does constitute a recommendation or financial advice. Do your own research. *

Price
7
Condition
7
Location
7
Land
6
Bedrooms
5
Bathrooms
3
Sqft (est)
2,403.40

The heatmap indicates the level of crime in the area. The color of the heatmap indicates the crime severity and recency.

Metrics Year-on-Year

Average area value
221,900.00 £
Increased by 17.98 %
from 188,075.00 £
Est sale value
552,782.00 £
Increased by 9.52 %
from 504,714.00 £
Average area rental value
1,037.00 £/mo
Decreased by 1.05 %
from 1,048.00 £/mo
Est letting value
2,403.40 £/mo
Unchanged by 0.00 %
from 2,403.40 £/mo
Est rental Yield
5.61 %
Decreased by 16.14 %
from 6.69 %
Crime Rate
1.00 %
Unchanged by 0.00 %
from 1.00 %

Agent Activity

  • Howkins & Harrison LLP created the listing.

Nearby Schools

NameTypeOfstedDistance
Witherley Church Of England Primary SchoolVoluntary Controlled SchoolGood0.48 KM
Wathen Grange SchoolOther Independent Special SchoolRequires improvement1.66 KM
St Benedict'S Catholic Primary AcademyAcademy ConverterGood1.81 KM
The Queen Elizabeth AcademyAcademy Sponsor LedGood1.93 KM
Racemeadow Primary AcademyAcademy Sponsor LedGood2.41 KM

Images

1 Atterton Lane, Witherley 1 Atterton Lane, Witherley 1 Atterton Lane, Witherley 1 Atterton Lane, Witherley 1 Atterton Lane, Witherley 1 Atterton Lane, Witherley 1 Atterton Lane, Witherley 1 Atterton Lane, Witherley 1 Atterton Lane, Witherley 1 Atterton Lane, Witherley 1 Atterton Lane, Witherley 1 Atterton Lane, Witherley 1 Atterton Lane, Witherley 1 Atterton Lane, Witherley 1 Atterton Lane, Witherley 1 Atterton Lane, Witherley 1 Atterton Lane, Witherley 1 Atterton Lane, Witherley 1 Atterton Lane, Witherley 1 Atterton Lane, Witherley 1 Atterton Lane, Witherley 1 Atterton Lane, Witherley

Nearby Streets

NameAverage PriceAverage SqftDistance
Riverside £ 650,00000.00 KM
Bridge Lane £ 000.00 KM
Ramsden Road £ 210,00000.00 KM
Mill Lane £ 450,00000.00 KM

Nearby Transport

NameNLCTLCDistance
Atherstone1074ATH3.92 KM
Nuneaton1077NUN8.08 KM
Bermuda Park6543BEP9.66 KM

Nearby Listings

AddressPriceTypeScoreDistance
Atterton Lane, Witherley, CV9 £ 699,000BUY6 / 100.00 KM
Atterton Lane, Witherley £ 395,000BUY6 / 100.01 KM
Atterton Lane, Witherley £ 650,000BUY7 / 100.01 KM
Home Farm Close, Witherley, CV9 £ 599,950BUY7 / 100.21 KM
Hall Lane, Witherley £ 239,950BUY6 / 100.35 KM

Nearby Properties

AddressPriceDistance
17 Atterton Lane £ 260,0000.01 KM
1a Atterton Lane £ 310,0000.01 KM
38 Atterton Lane £ 275,0000.01 KM
30 Atterton Lane £ 222,0000.01 KM
16 Atterton Lane £ 165,0000.01 KM