Chancellors says ..
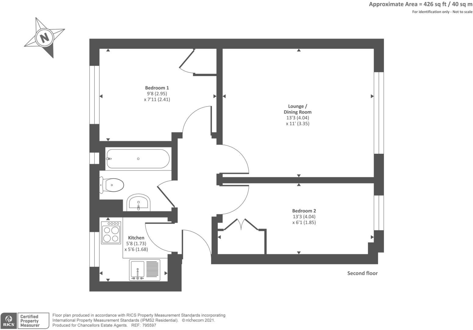
Chancellors are pleased to present this two bedroom apartment with a garage and no onwards chain. Call today to arrange your viewing!
Property Oracle says ..
This is a two-bedroom flat located in Temple Cowley, Oxford. The property is situated in a convenient location with good access to local amenities, schools, and transport links. The flat itself is of a reasonable size. While the property appears to be in fair condition, some modernization could enhance its appeal. The asking price of £220,000 appears to be in line with similar properties in the area, making it a potentially attractive purchase for first-time buyers or investors.
Therefore, we give this property 5 / 10. *Disclaimer: This is our option and does constitute a recommendation or financial advice. Do your own research. *
- Price
- 7
- Condition
- 6
- Location
- 7
- Land
- 3
- Bedrooms
- 2
- Bathrooms
- 0
- Sqft (est)
- 334.58
The heatmap indicates the level of crime in the area. The color of the heatmap indicates the crime severity and recency.
Metrics Year-on-Year
- Average area value
- 312,500.00 £Decreased by 31.71 %
- Est sale value
- 244,577.98 £Increased by 36.13 %
- Average area rental value
- 1,568.00 £/moDecreased by 14.08 %
- Est letting value
- 1,003.74 £/moIncreased by 50.00 %
- Est rental Yield
- 6.02 %Increased by 25.68 %
- Crime Rate
- 6.00 %Unchanged by 0.00 %
Agent Activity
Chancellors created the listing.
Nearby Schools
| Name | Type | Ofsted | Distance |
|---|---|---|---|
| Kings Education (Oxford) | Other Independent School | Good | 0.31 KM |
| Our Lady'S Roman Catholic Primary School | Academy Converter | Good | 0.34 KM |
| Tyndale Community School | Free Schools | Good | 0.49 KM |
| St Christopher'S Church Of England School, Cowley | Academy Sponsor Led | Good | 0.52 KM |
| Church Cowley St James Church Of England Primary School | Voluntary Controlled School | Good | 0.88 KM |
Images
Nearby Streets
| Name | Average Price | Average Sqft | Distance |
|---|---|---|---|
| William Morris Close | £ 372,500 | 0 | 0.00 KM |
| Chancellor's Court | £ 0 | 0 | 0.00 KM |
| Littlehay Road | £ 0 | 0 | 0.00 KM |
| St Francis Court | £ 0 | 0 | 0.00 KM |
| St James Place | £ 350,000 | 0 | 0.00 KM |
Nearby Transport
| Name | NLC | TLC | Distance |
|---|---|---|---|
| Radley | 3118 | RAD | 6.45 KM |
| Oxford | 3115 | OXF | 7.07 KM |
| Culham | 3107 | CUM | 9.54 KM |
Nearby Listings
| Address | Price | Type | Score | Distance |
|---|---|---|---|---|
| Lizmans Court, Oxford, OX4 | £ 220,000 | BUY | 5 / 10 | 0.00 KM |
| Cowley, East Oxford, OX4 | £ 475,000 | BUY | Unknown | 0.14 KM |
| Lizmans Court, Temple Cowley | £ 200,000 | BUY | Unknown | 0.16 KM |
| Silkdale Close, Cowley, East Oxford | £ 220,000 | BUY | 5 / 10 | 0.16 KM |
| Bennett Crescent, Oxford | £ 500,000 | BUY | 7 / 10 | 0.16 KM |
Nearby Properties
| Address | Price | Distance |
|---|---|---|
| 15 Hollow Way | £ 310,000 | 0.08 KM |
| 17 Hollow Way | £ 380,000 | 0.08 KM |
| 9 Fern Hill Road | £ 390,000 | 0.16 KM |
| 42 Fern Hill Road | £ 537,000 | 0.16 KM |
| 1 Fernhill Road | £ 455,000 | 0.16 KM |