75 Whittingehame Drive, Anniesland, G12 0YH
By Corum
£ 279,000
Reviews
3 out of 5 stars
Corum says ..
A semi-detached villa in the ever popular Anniesland area, with south facing garden, in the List One catchment for Jordanhill School.
Property Oracle says ..
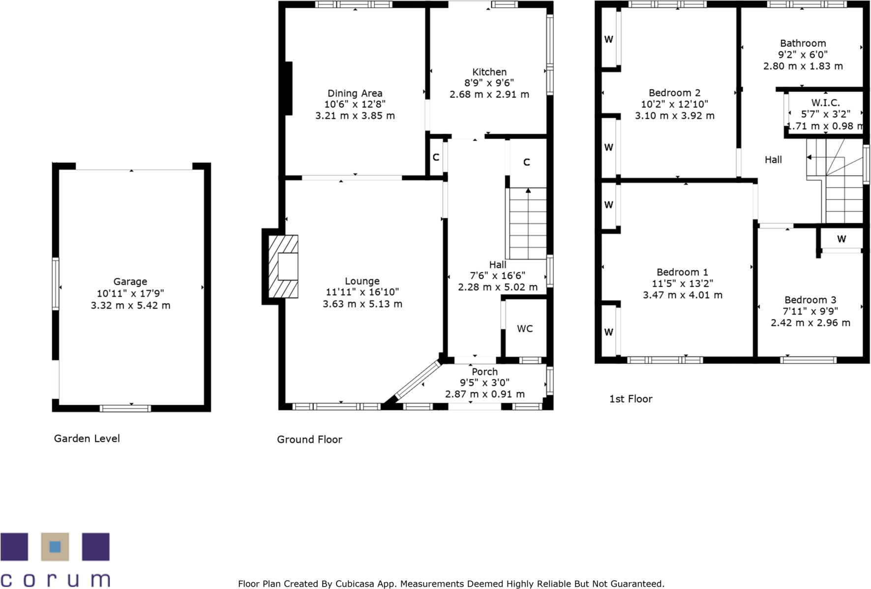
The property is located in Anniesland, Glasgow City, specifically in the Partick East/Kelvindale locality. The area benefits from close proximity to transportation hubs. Based on the images, the property appears to be in a condition that requires renovation. The interior design and fixtures seem dated. The property includes a garden and shed, offering a good amount of outdoor space. The list price is £279,000. The average price per square foot in the area is £304. This property has 1,193.61 sqft, working out at £233 per sqft. The average property price in the area is £333,849.
Therefore, we give this property 6 / 10. *Disclaimer: This is our option and does constitute a recommendation or financial advice. Do your own research. *
- Price
- 8
- Condition
- 4
- Location
- 7
- Land
- 7
- Bedrooms
- 3
- Bathrooms
- 1
- Sqft (est)
- 1,193.61
The heatmap indicates the level of crime in the area. The color of the heatmap indicates the crime severity and recency.
Metrics Year-on-Year
- Average area value
- 273,565.00 £Increased by 3.79 %
- Est sale value
- 336,598.02 £Increased by 9.73 %
- Average area rental value
- 1,350.00 £/moDecreased by 11.01 %
- Est letting value
- 1,193.61 £/moUnchanged by 0.00 %
- Est rental Yield
- 5.92 %Decreased by 14.33 %
- Crime Rate
- 0.00 %
Agent Activity
Corum created the listing.
Images
Nearby Streets
| Name | Average Price | Average Sqft | Distance |
|---|---|---|---|
| Sackville Avenue | £ 369,000 | 0 | 0.00 KM |
| Whittingehame Gardens | £ 0 | 0 | 0.00 KM |
| Drummond Gardens | £ 0 | 0 | 0.00 KM |
| Southbrae Lane | £ 495,000 | 0 | 0.00 KM |
| Woodend Lane | £ 0 | 0 | 0.00 KM |
Nearby Transport
| Name | NLC | TLC | Distance |
|---|---|---|---|
| Jordanhill | 9995 | JOR | 0.40 KM |
| Anniesland | 9972 | ANL | 0.48 KM |
| Hyndland | 9845 | HYN | 1.02 KM |
| Kelvindale | 1655 | KVD | 1.69 KM |
| Partick | 9917 | PTK | 2.24 KM |
Nearby Listings
| Address | Price | Type | Score | Distance |
|---|---|---|---|---|
| 75 Whittingehame Drive, Anniesland, G12 0YH | £ 279,000 | BUY | 6 / 10 | 0.00 KM |
| Fifth Avenue, Jordanhill, Glasgow, G12 0AT | £ 159,000 | BUY | 6 / 10 | 0.14 KM |
| Fifth Avenue, Jordanhill, G12 | £ 315,000 | BUY | Unknown | 0.15 KM |
| Albany Cottages, Jordanhill, Glasgow | £ 395,000 | BUY | 7 / 10 | 0.30 KM |
| Whittingehame Drive, Jordanhill, Glasgow | £ 249,000 | BUY | 5 / 10 | 0.33 KM |