Drovers Lane, West Broyle, PO19
By Henry Adams
£ 168,750
Reviews
4 out of 5 stars
Henry Adams says ..
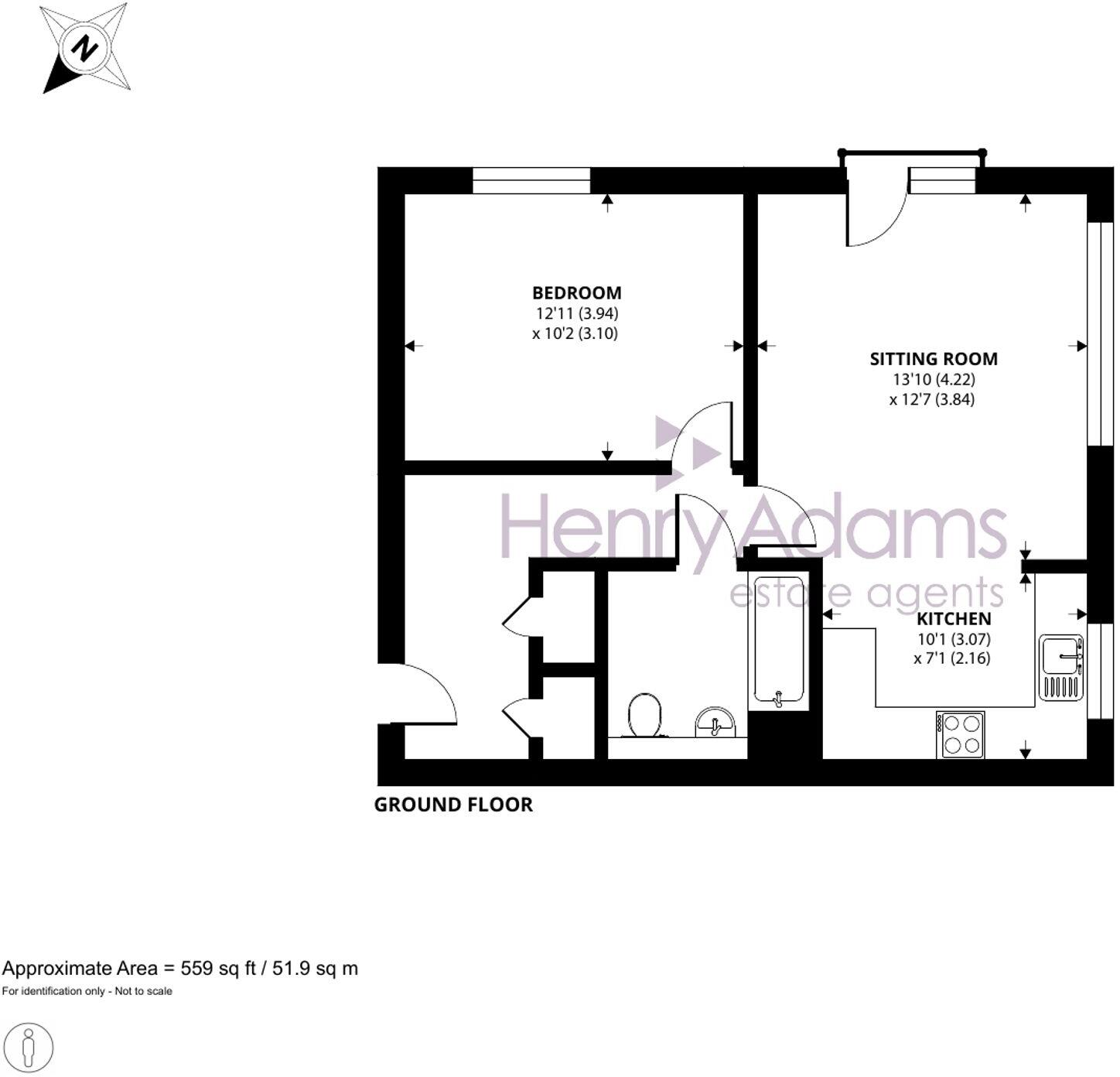
GROUND FLOOR APARTMENT situated on the favour northern side of the city. OPEN PLAN sitting/dining room/kitchen, DOUBLE BEDROOM, modern bathroom, ALLOCATED PARKING SPACE. 100% OWNERSHIP AVAILABLE @ £225,000. EPC-B
Property Oracle says ..
The property is a one-bedroom ground floor flat situated in Chichester West, West Sussex. The area benefits from relatively close proximity to several schools, including Parklands Community Primary School (rated ‘Good’ by Ofsted) and St Anthony’s School (rated ‘Outstanding’). Chichester train station is also within a reasonable distance, offering convenient access to other parts of the region. The images provided show a modern, well-maintained flat. The interior is presented in excellent condition, with a contemporary finish and modern appliances. There is no visible evidence of damage or the need for repairs or renovations. Information on the plot size is unavailable. The list price of £168,750 is significantly lower than the average house price in the area (£506,075). However, it is crucial to consider that this property is a one-bedroom ground floor flat, whereas the average price reflects a broader range of property types. The absence of square footage data prevents a precise comparison of price per square foot. Given the modern condition and convenient location, the price could potentially represent good value for a first-time buyer or investor seeking a smaller property in a desirable area. Further investigation into comparable properties in the immediate vicinity would be beneficial to solidify this assessment.
Therefore, we give this property 8 / 10. *Disclaimer: This is our option and does constitute a recommendation or financial advice. Do your own research. *
- Price
- 7
- Condition
- 10
- Location
- 8
- Land
- 0
- Bedrooms
- 1
- Bathrooms
- 1
- Sqft (est)
- 369.00
- Lot (est)
- 559.00
The heatmap indicates the level of crime in the area. The color of the heatmap indicates the crime severity and recency.
Metrics Year-on-Year
- Average area value
- 357,500.00 £Decreased by 26.13 %
- Est sale value
- 282,285.00 £Increased by 88.42 %
- Average area rental value
- 1,429.00 £/moDecreased by 5.74 %
- Est letting value
- 1,107.00 £/moIncreased by 200.00 %
- Est rental Yield
- 4.80 %Increased by 27.66 %
- Crime Rate
- 0.00 %
Agent Activity
Henry Adams created the listing.
Nearby Schools
| Name | Type | Ofsted | Distance |
|---|---|---|---|
| Bishop Luffa School, Chichester | Academy Converter | 1.02 KM | |
| Parklands Community Primary School | Community School | Good | 1.05 KM |
| Jessie Younghusband Primary School | Community School | Good | 1.41 KM |
| St Anthony'S School | Community Special School | Outstanding | 1.44 KM |
| St. Joseph'S Infant School | Academy Converter | 1.64 KM |
Images
Nearby Streets
| Name | Average Price | Average Sqft | Distance |
|---|---|---|---|
| Purchase Place | £ 0 | 0 | 0.00 KM |
| Harris Road | £ 0 | 0 | 0.00 KM |
| The Rew | £ 0 | 0 | 0.00 KM |
| Schirmer Road | £ 84,375 | 0 | 0.00 KM |
| Barnard Mead | £ 0 | 0 | 0.00 KM |
Nearby Transport
| Name | NLC | TLC | Distance |
|---|---|---|---|
| Fishbourne (Sussex) | 5261 | FSB | 2.29 KM |
| Chichester | 5255 | CCH | 2.38 KM |
| Bosham | 5254 | BOH | 5.68 KM |
| Nutbourne | 5262 | NUT | 9.58 KM |
Nearby Listings
| Address | Price | Type | Score | Distance |
|---|---|---|---|---|
| Drovers Lane, West Broyle, PO19 | £ 168,750 | BUY | 8 / 10 | 0.00 KM |
| Drovers Lane, West Broyle, PO19 | £ 225,000 | BUY | 7 / 10 | 0.16 KM |
| The Rew, Minerva Heights, Chichester | £ 415,000 | BUY | 7 / 10 | 0.18 KM |
| The Rew, Chichester | £ 399,950 | BUY | Unknown | 0.18 KM |
| Harris Road, West Broyle, PO19 | £ 450,000 | BUY | Unknown | 0.20 KM |
Nearby Properties
| Address | Price | Distance |
|---|---|---|
| 68 Newlands Lane | £ 75,000 | 0.59 KM |
| 62 Newlands Lane | £ 162,500 | 0.59 KM |
| 3 Barton Road | £ 93,950 | 0.64 KM |
| 28 Barton Road | £ 245,000 | 0.64 KM |
| 4 Barton Road | £ 330,000 | 0.64 KM |