Barnfield Gardens, Kingston Upon Thames, KT2
By Mervyn Smith
£ 995,000
Reviews
3 out of 5 stars
Mervyn Smith says ..
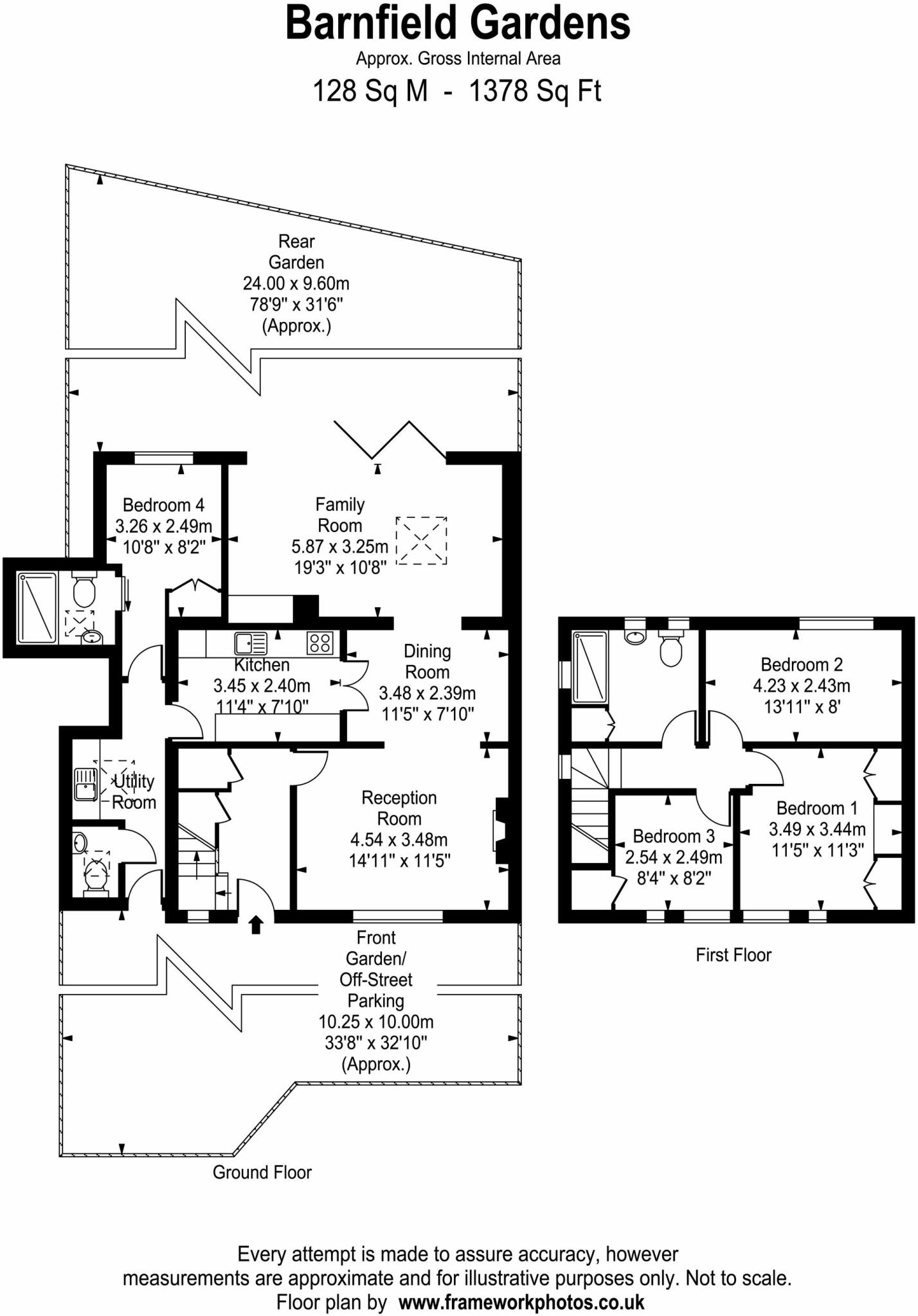
NEW! 4 BEDROOM 2 BATHROOM SEMI DETACHED extended to rear & side. In quiet N. Kingston cul de sac. NO CHAIN! Off street parking + rear garden over 78 ft. Ground floor WC, three 1st floor bedrooms and family bathroom + grd fl side extension has bedroom and shower room with independent front access.
Property Oracle says ..
This four-bedroom, two-bathroom semi-detached house in Barnfield Gardens, Kingston Upon Thames, presents a comfortable family home. The property benefits from a good location, with proximity to highly-rated schools and convenient transport links to Kingston Upon Thames and London. The exterior appears well-maintained, showcasing a traditional brick design. Internally, the images reveal a relatively spacious layout with a modern kitchen and updated bathrooms. The inclusion of a rear garden adds considerable appeal, especially for families. While the house demonstrates a generally good condition, potential buyers might consider updating some areas, such as the kitchen and bathrooms, to modernize the property and improve its market value. The £995,000 price point reflects the desirable location and property features, but further comparative market research is needed to precisely assess the property’s value. Overall, it offers a sound investment opportunity in a sought-after area, but potential buyers must carefully consider the condition and conduct due diligence.
Therefore, we give this property 7 / 10. *Disclaimer: This is our option and does constitute a recommendation or financial advice. Do your own research. *
- Price
- 7
- Condition
- 7
- Location
- 8
- Land
- 6
- Bedrooms
- 4
- Bathrooms
- 2
- Sqft (est)
- 1,378.00
The heatmap indicates the level of crime in the area. The color of the heatmap indicates the crime severity and recency.
Metrics Year-on-Year
- Average area value
- 668,750.00 £Decreased by 1.97 %
- Est sale value
- 854,360.00 £Decreased by 5.05 %
- Average area rental value
- 2,575.00 £/moDecreased by 1.83 %
- Est letting value
- 2,756.00 £/moUnchanged by 0.00 %
- Est rental Yield
- 4.62 %Increased by 0.22 %
- Crime Rate
- 5.00 %Unchanged by 0.00 %
Agent Activity
Mervyn Smith created the listing.
Nearby Schools
| Name | Type | Ofsted | Distance |
|---|---|---|---|
| The Tiffin Girls' School | Academy Converter | Outstanding | 0.58 KM |
| The Kingston Academy | Free Schools | Outstanding | 0.68 KM |
| Fern Hill Primary School | Academy Converter | 0.76 KM | |
| North Kingston Children'S Centre | Children's Centre | 0.82 KM | |
| Latchmere School | Academy Converter | Good | 0.86 KM |
Images
Nearby Streets
| Name | Average Price | Average Sqft | Distance |
|---|---|---|---|
| Beech Row | £ 0 | 0 | 0.00 KM |
| St Albans Road | £ 1,350,000 | 0 | 0.00 KM |
| Studland Road | £ 1,650,000 | 0 | 0.00 KM |
| Barnfield Avenue | £ 0 | 0 | 0.00 KM |
| Wych Elm Close | £ 0 | 0 | 0.00 KM |
Nearby Transport
| Name | NLC | TLC | Distance |
|---|---|---|---|
| Kingston | 5565 | KNG | 1.83 KM |
| Hampton Wick | 5589 | HMW | 2.21 KM |
| Norbiton | 5568 | NBT | 2.48 KM |
| St Margarets | 5604 | SMG | 3.75 KM |
| Teddington | 5572 | TED | 3.77 KM |
Nearby Listings
| Address | Price | Type | Score | Distance |
|---|---|---|---|---|
| Barnfield Gardens, Kingston Upon Thames, KT2 | £ 995,000 | BUY | 7 / 10 | 0.00 KM |
| Bainbridge Close, Richmond, TW10 | £ 1,750,000 | BUY | 8 / 10 | 0.08 KM |
| Barnfield Gardens, Kingston Upon Thames, KT2 | £ 1,150,000 | BUY | Unknown | 0.09 KM |
| Barnfield Avenue, Kingston Upon Thames | £ 975,000 | BUY | Unknown | 0.11 KM |
| Barnfield Avenue, Kingston Upon Thames, KT2 | £ 795,000 | BUY | 7 / 10 | 0.11 KM |
Nearby Properties
| Address | Price | Distance |
|---|---|---|
| 4 Bainbridge Close | £ 490,000 | 0.05 KM |
| 13 Bainbridge Close | £ 935,000 | 0.05 KM |
| 2 Bainbridge Close | £ 1,675,000 | 0.05 KM |
| 10 Bainbridge Close | £ 399,500 | 0.07 KM |
| 3 Bainbridge Close | £ 590,000 | 0.07 KM |