Albion Hall, Kearsley, Bolton
By Hannon Holmes Limited
£ 350,000
Reviews
4 out of 5 stars
Hannon Holmes Limited says ..
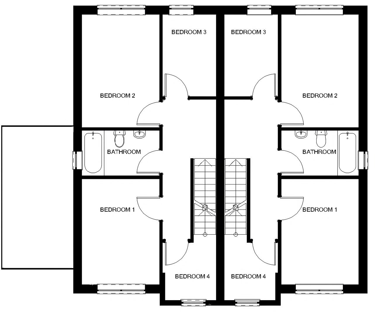
Hannon Holmes are thrilled to present 14 Brand New, 4 Bedroom Detached, and 4 Bedroom Semi Detached, spacious family homes, to the sales market. These stunning, timber framed properties, are situated within a unique and stylish development, that has thoughtfully integrated itself within the urban...
Property Oracle says ..
This property is a new build, located in Kearsley, Bolton. The property is a 4 bedroom, 3 bathroom house. Based on the images provided the property appears to be in excellent condition and well finished. The property benefits from a good size garden with artificial grass and a children’s play set. There are a number of schools and train stations within a reasonable distance of the property. The average price for a property in the area is £385,295, with an average price per sqft of £392. The list price of £350,000 seems reasonable given the condition, location, and size of the property. However, more information on the sqft of the property is needed to make a more informed decision.
Therefore, we give this property 8 / 10. *Disclaimer: This is our option and does constitute a recommendation or financial advice. Do your own research. *
- Price
- 8
- Condition
- 10
- Location
- 7
- Land
- 8
- Bedrooms
- 4
- Bathrooms
- 3
- Sqft (est)
- 13.38
The heatmap indicates the level of crime in the area. The color of the heatmap indicates the crime severity and recency.
Metrics Year-on-Year
- Average area value
- 550,000.00 £Increased by 32.27 %
- Est sale value
- 2,943.60 £Decreased by 57.12 %
- Average area rental value
- 1,864.00 £/moIncreased by 17.16 %
- Est letting value
- 0.00 £/moDecreased by 100.00 %
- Est rental Yield
- 4.07 %Decreased by 11.33 %
- Crime Rate
- 0.00 %
Agent Activity
Hannon Holmes Limited created the listing.
Nearby Schools
| Name | Type | Ofsted | Distance |
|---|---|---|---|
| Grosvenor Nursery School | Local Authority Nursery School | Outstanding | 0.19 KM |
| Grosvenor Start Well Link Site | Children's Centre | 0.19 KM | |
| St John Cofe Primary School, Kearsley | Voluntary Aided School | Good | 0.23 KM |
| St Gregory'S Rc Primary School, A Voluntary Academy | Academy Sponsor Led | 0.23 KM | |
| Tlg Bolton | Other Independent School | Good | 0.32 KM |
Images
Nearby Streets
| Name | Average Price | Average Sqft | Distance |
|---|---|---|---|
| Nelson Street | £ 0 | 0 | 0.00 KM |
| Frederick Street | £ 0 | 0 | 0.00 KM |
| Church Street | £ 0 | 0 | 0.00 KM |
| Russell Street | £ 99,983 | 0 | 0.00 KM |
| Peel Street | £ 137,500 | 0 | 0.00 KM |
Nearby Transport
| Name | NLC | TLC | Distance |
|---|---|---|---|
| Farnworth | 2811 | FNW | 0.47 KM |
| Kearsley (Manchester) | 2605 | KSL | 1.60 KM |
| Moses Gate | 2606 | MSS | 1.70 KM |
| Walkden | 2612 | WKD | 3.02 KM |
| Bolton | 2599 | BON | 5.09 KM |
Nearby Listings
| Address | Price | Type | Score | Distance |
|---|---|---|---|---|
| Albion Hall, Kearsley, Bolton | £ 350,000 | BUY | 7 / 10 | 0.00 KM |
| Albion Hall, Kearsley, Bolton | £ 350,000 | BUY | 8 / 10 | 0.00 KM |
| Albion Hall, Kearsley, Bolton | £ 350,000 | BUY | 8 / 10 | 0.00 KM |
| Albion Hall, Kearsley, Bolton | £ 350,000 | BUY | 8 / 10 | 0.00 KM |
| Albion Hall, Kearsley, Bolton | £ 350,000 | BUY | 7 / 10 | 0.00 KM |
Nearby Properties
| Address | Price | Distance |
|---|---|---|
| 28 Mather Street | £ 120,000 | 0.02 KM |
| 19 Mather Street | £ 45,000 | 0.02 KM |
| 55 Mather Street | £ 215,000 | 0.02 KM |
| 25 Mather Street | £ 63,000 | 0.02 KM |
| 27 Mather Street | £ 95,000 | 0.02 KM |