5 (3F2), Steel's Place, Morningside, Edinburgh, EH10 4QR
By Warners Solicitors
£ 225,000
Reviews
3 out of 5 stars
Warners Solicitors says ..
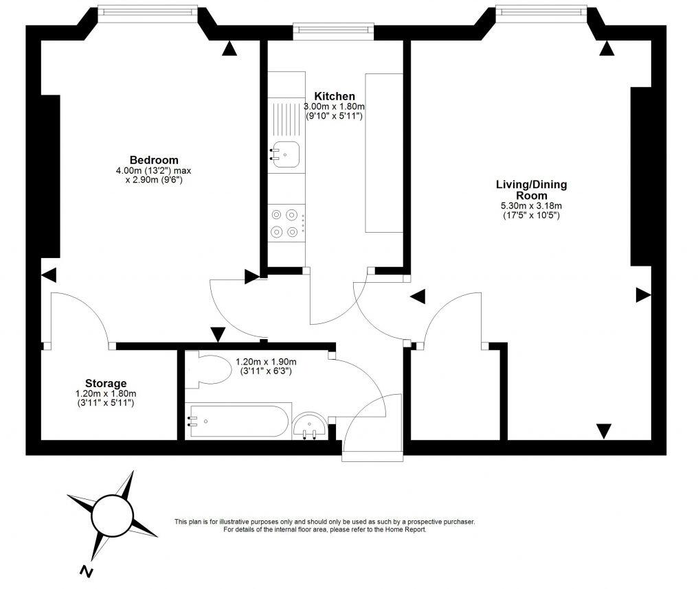
Nestled on a quiet street in the heart of Morningside, one of the city's most prestigious postcodes, surrounded by the areas excellent cafes, artisan bakeries and independent retailers is this immaculately presented top floor apartment. Boasting double glazing, gas central heating, ample on stree...
Property Oracle says ..
Therefore, we give this property 7 / 10. *Disclaimer: This is our option and does constitute a recommendation or financial advice. Do your own research. *
- Price
- 6
- Condition
- 8
- Location
- 8
- Land
- 7
- Bedrooms
- 1
- Bathrooms
- 1
- Sqft (est)
- 387.65
The heatmap indicates the level of crime in the area. The color of the heatmap indicates the crime severity and recency.
Metrics Year-on-Year
- Average area value
- 488,158.00 £Decreased by 3.53 %
- Est sale value
- 237,241.80 £Increased by 62.33 %
- Average area rental value
- 2,178.00 £/moIncreased by 7.93 %
- Est letting value
- 775.30 £/moIncreased by 100.00 %
- Est rental Yield
- 5.35 %Increased by 11.69 %
- Crime Rate
- 0.00 %
from 506,045.00 £
from 146,144.05 £
from 2,018.00 £/mo
from 387.65 £/mo
from 4.79 %
from 0.00 %
Agent Activity
Warners Solicitors created the listing.
Nearby Schools
| Name | Type | Ofsted | Distance |
|---|---|---|---|
| Merchiston Castle School | Offshore Schools | 5.30 KM |
Images
Nearby Streets
| Name | Average Price | Average Sqft | Distance |
|---|---|---|---|
| Abbotsford Park | £ 0 | 0 | 0.00 KM |
| Cluny Avenue | £ 1,222,500 | 0 | 0.00 KM |
| Stable Lane | £ 0 | 0 | 0.00 KM |
| The Crescent | £ 387,000 | 0 | 0.00 KM |
| Fairacre Court | £ 0 | 0 | 0.00 KM |
Nearby Transport
| Name | NLC | TLC | Distance |
|---|---|---|---|
| Haymarket | 9419 | HYM | 2.20 KM |
| Edinburgh | 9328 | EDB | 3.49 KM |
| Slateford | 9236 | SLA | 3.85 KM |
| Kingsknowe | 9217 | KGE | 6.31 KM |
| Wester Hailes | 9231 | WTA | 8.51 KM |
Nearby Listings
| Address | Price | Type | Score | Distance |
|---|---|---|---|---|
| 5 (3F2), Steel's Place, Morningside, Edinburgh, EH10 4QR | £ 225,000 | BUY | 7 / 10 | 0.00 KM |
| Steel's Place, Morningside, Edinburgh, EH10 | £ 350,000 | BUY | 7 / 10 | 0.05 KM |
| 201/1 Morningside Road, Edinburgh, EH10 4QP | £ 395,000 | BUY | Unknown | 0.05 KM |
| Flat 1, 7, Canaan Lane, Morningside, Edinburgh, EH10 4SZ | £ 340,000 | BUY | 7 / 10 | 0.09 KM |
| Falcon Road West, Morningside , | £ 905,000 | BUY | 7 / 10 | 0.09 KM |