School Road, Sale, M33 - 2 mixed-use Units (residential & commercial)
By Nested
£ 500,000
Reviews
2 out of 5 stars
Nested says ..
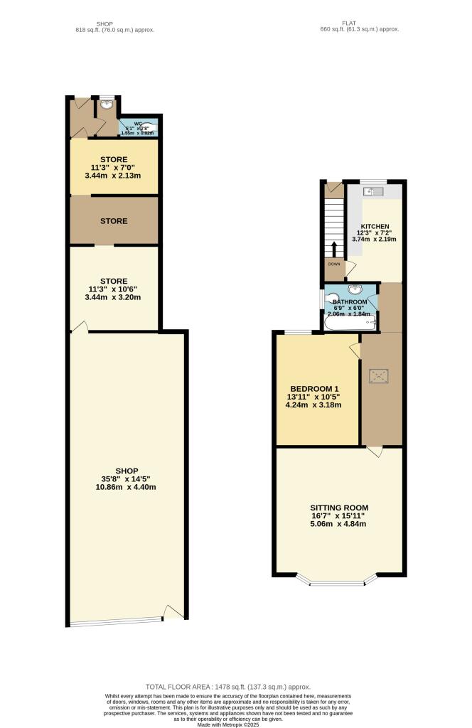
Prime Sale town centre investment – two retail units, two flats, basement storage & courtyard. Fully let, producing a strong 6.4% yield with immediate returns.
Property Oracle says ..
This mixed-use property on School Road, Sale, offers a unique investment opportunity with both residential and commercial potential. The residential unit features two bedrooms and two bathrooms, while the commercial unit provides retail or office space. While the location is advantageous due to its proximity to schools and amenities, the property’s condition requires modernisation, particularly in the residential unit. The limited outdoor space is a drawback. The price reflects the mixed-use nature of the property but appears high compared to the average price per square foot in the area, taking into account the need for renovation.
Therefore, we give this property 5 / 10. *Disclaimer: This is our option and does constitute a recommendation or financial advice. Do your own research. *
- Price
- 6
- Condition
- 5
- Location
- 7
- Land
- 4
- Bedrooms
- 2
- Bathrooms
- 2
- Sqft (est)
- 370.17
The heatmap indicates the level of crime in the area. The color of the heatmap indicates the crime severity and recency.
Metrics Year-on-Year
- Average area value
- 456,240.00 £Increased by 13.67 %
- Est sale value
- 136,592.73 £Decreased by 7.29 %
- Average area rental value
- 1,149.00 £/moDecreased by 10.09 %
- Est letting value
- 0.00 £/moDecreased by 100.00 %
- Est rental Yield
- 3.02 %Decreased by 20.94 %
- Crime Rate
- 0.00 %
Agent Activity
Nested created the listing.
Nearby Schools
| Name | Type | Ofsted | Distance |
|---|---|---|---|
| Springfield Primary School | Community School | Outstanding | 0.36 KM |
| St Joseph'S Catholic Primary School | Voluntary Aided School | Outstanding | 0.60 KM |
| Forest Park Preparatory School | Other Independent School | 0.75 KM | |
| Park Road Sale Primary School | Academy Converter | 0.79 KM | |
| St Mary'S Cofe Primary School | Voluntary Aided School | Outstanding | 1.00 KM |
Images
Nearby Streets
| Name | Average Price | Average Sqft | Distance |
|---|---|---|---|
| John Street | £ 0 | 0 | 0.00 KM |
| Oaklands Drive | £ 350,000 | 0 | 0.00 KM |
| Hollies Court | £ 220,000 | 0 | 0.00 KM |
| Maple Court | £ 240,000 | 0 | 0.00 KM |
| Milton Grove | £ 0 | 0 | 0.00 KM |
Nearby Transport
| Name | NLC | TLC | Distance |
|---|---|---|---|
| Humphrey Park | 2937 | HUP | 3.01 KM |
| Trafford Park | 2969 | TRA | 3.55 KM |
| Navigation Road | 2940 | NVR | 4.02 KM |
| Urmston | 2938 | URM | 4.21 KM |
| Altrincham | 2806 | ALT | 4.94 KM |
Nearby Listings
| Address | Price | Type | Score | Distance |
|---|---|---|---|---|
| School Road, Sale, M33 - 2 mixed-use Units (residential & commercial) | £ 500,000 | BUY | 5 / 10 | 0.00 KM |
| The Courts, Sale (PLOT D2.04) | £ 655,000 | BUY | Unknown | 0.04 KM |
| School Road, Sale, Cheshire, M33 | £ 145,000 | BUY | 5 / 10 | 0.06 KM |
| Benbow Street, Sale, Cheshire, M33 | £ 3,500,000 | BUY | Unknown | 0.12 KM |
| Benbow Street, Sale, Greater Manchester, M33 | £ 775,000 | BUY | Unknown | 0.13 KM |
Nearby Properties
| Address | Price | Distance |
|---|---|---|
| 2a Curzon Road | £ 280,000 | 0.01 KM |
| 1 Curzon Road | £ 55,000 | 0.01 KM |
| 52 Ashfield Road | £ 207,750 | 0.18 KM |
| 48 Ashfield Road | £ 300,000 | 0.18 KM |
| 42 Ashfield Road | £ 410,000 | 0.18 KM |