Knowle Avenue, Knowle, Fareham, Hampshire, PO17
By Beals
£ 300,000
Reviews
3 out of 5 stars
Beals says ..
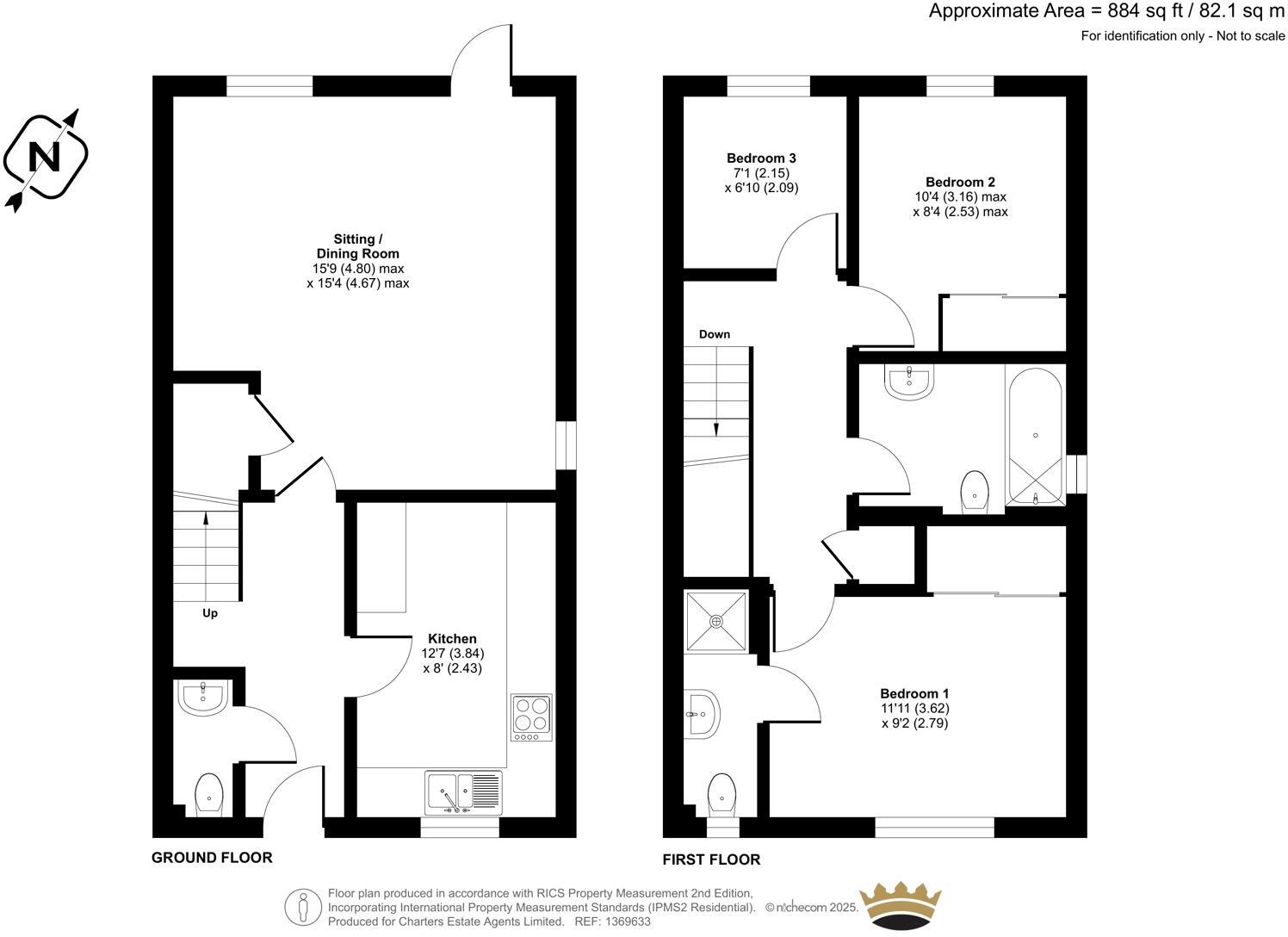
Situated in the highly sought-after and picturesque Knowle Village, this immaculately presented three-bedroom end-of-terrace house is offered with no forward chain, providing an excellent opportunity for buyers seeking a smooth and hassle-free move. Combining modern comfort with a tranquil villag...
Property Oracle says ..
This end-of-terrace property on Knowle Avenue offers three bedrooms and two bathrooms within 419.37 sqft of living space. The house is situated in a residential area of Knowle, Fareham, with convenient access to local amenities and transportation. The interior appears well-maintained, featuring a modern kitchen and bathrooms. The property also benefits from a garden, providing outdoor space. The asking price of £300,000 seems reasonable given the property’s condition, location, and the prices of comparable properties in the vicinity. Nearby schools and transportation links further enhance its appeal to families and commuters.
Therefore, we give this property 6 / 10. *Disclaimer: This is our option and does constitute a recommendation or financial advice. Do your own research. *
- Price
- 7
- Condition
- 7
- Location
- 7
- Land
- 6
- Bedrooms
- 3
- Bathrooms
- 2
- Sqft (est)
- 419.37
The heatmap indicates the level of crime in the area. The color of the heatmap indicates the crime severity and recency.
Metrics Year-on-Year
- Average area value
- 224,091.00 £Decreased by 51.86 %
- Est sale value
- 130,424.07 £Decreased by 24.88 %
- Average area rental value
- 1,581.00 £/moIncreased by 20.59 %
- Est letting value
- 838.74 £/moIncreased by 100.00 %
- Est rental Yield
- 8.47 %Increased by 150.59 %
- Crime Rate
- 197.00 %Unchanged by 0.00 %
Agent Activity
Beals created the listing.
Nearby Schools
| Name | Type | Ofsted | Distance |
|---|---|---|---|
| Orchard Lea Junior School | Community School | Good | 1.96 KM |
| Orchard Lea Infant School | Community School | Good | 2.06 KM |
| Oak Meadow Children'S Centre | Children's Centre | 2.50 KM | |
| St Columba Ce Primary School | Academy Sponsor Led | 2.58 KM | |
| Uplands Primary School | Community School | Good | 2.83 KM |
Images
Nearby Streets
| Name | Average Price | Average Sqft | Distance |
|---|---|---|---|
| Noctule Court | £ 0 | 0 | 0.00 KM |
| Saxe Court | £ 0 | 0 | 0.00 KM |
| Farm Cottages | £ 635,000 | 0 | 0.00 KM |
Nearby Transport
| Name | NLC | TLC | Distance |
|---|---|---|---|
| Fareham | 5900 | FRM | 3.56 KM |
| Swanwick | 5920 | SNW | 6.86 KM |
| Botley | 5894 | BOE | 7.15 KM |
| Portchester | 5928 | PTC | 9.62 KM |
Nearby Listings
| Address | Price | Type | Score | Distance |
|---|---|---|---|---|
| Knowle Avenue, Knowle, Fareham, Hampshire, PO17 | £ 300,000 | BUY | 6 / 10 | 0.00 KM |
| Knowle Avenue, Knowle | £ 300,000 | BUY | 6 / 10 | 0.00 KM |
| Lesser Horseshoe Close, Knowle, Fareham, Hampshire, PO17 | £ 310,000 | BUY | 6 / 10 | 0.03 KM |
| North Square, Knowle, Fareham, Hampshire, PO17 | £ 175,000 | BUY | 7 / 10 | 0.04 KM |
| Lesser Horseshoe Close, Knowle | £ 325,000 | BUY | 6 / 10 | 0.05 KM |
Nearby Properties
| Address | Price | Distance |
|---|---|---|
| 221 Knowle Avenue | £ 268,500 | 0.00 KM |
| 225 Knowle Avenue | £ 230,000 | 0.01 KM |
| 233 Knowle Avenue | £ 227,500 | 0.01 KM |
| 229 Knowle Avenue | £ 200,000 | 0.01 KM |
| 231 Knowle Avenue | £ 270,000 | 0.01 KM |