Teignmouth Road, London NW2
CA

Teignmouth Road, London NW2

By Camerons Stiff & Co

£ 1,395,000

Reviews

3 out of 5 stars

Camerons Stiff & Co says ..

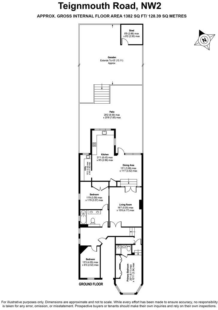
For Sale is this meticulous designed and presented three bedroom garden converted flat from the entire Ground Floor of this detached red brick Victorian House. The vendors have extensively refurbished and extended this flat to create a fabulous home, offering just under 1,400 sq feet of ...

Property Oracle says ..

This is a well-presented, modern house in a sought-after London location. The property benefits from a good-sized garden and is close to local amenities, including schools and transportation links. While the asking price is slightly above the average for the area, the excellent condition of the property justifies the premium. The house is ideal for families looking for a comfortable and stylish home in a convenient location.

Therefore, we give this property 7 / 10. *Disclaimer: This is our option and does constitute a recommendation or financial advice. Do your own research. *

Price
6
Condition
9
Location
8
Land
7
Bedrooms
3
Bathrooms
2
Sqft (est)
1,813.15

The heatmap indicates the level of crime in the area. The color of the heatmap indicates the crime severity and recency.

Metrics Year-on-Year

Average area value
1,318,000.00 £
Increased by 70.66 %
from 772,293.00 £
Est sale value
2,674,396.25 £
Increased by 119.49 %
from 1,218,436.80 £
Average area rental value
1,474.00 £/mo
Decreased by 27.60 %
from 2,036.00 £/mo
Est letting value
1,813.15 £/mo
Unchanged by 0.00 %
from 1,813.15 £/mo
Est rental Yield
1.34 %
Decreased by 57.59 %
from 3.16 %
Crime Rate
2.00 %
Unchanged by 0.00 %
from 2.00 %

Agent Activity

  • Camerons Stiff & Co created the listing.

Nearby Schools

NameTypeOfstedDistance
Anson Primary SchoolCommunity SchoolGood0.36 KM
North West London Jewish Day SchoolAcademy ConverterGood0.99 KM
Malorees Junior SchoolFoundation SchoolGood1.06 KM
Brondesbury College LondonOther Independent SchoolOutstanding1.09 KM
Convent Of Jesus And Mary Rc Infant SchoolVoluntary Aided SchoolOutstanding1.10 KM

Images

17188543 (1).jpg 17188543 (2).jpg 17188543 (4).jpg 17188543 (3).jpg 17188543 (6).jpg 17188543 (7).jpg 17188543 (20).jpg 17188543 (8).jpg 17188543 (5).jpg 17188543 (10).jpg 17188543 (12).jpg 17188543 (9).jpg 17188543 (11).jpg 17188543 (16).jpg 17188543 (17).jpg 17188543 (18).jpg 17188543 (13).jpg 17188543 (14).jpg 17188543 (15).jpg 17188543 (19).jpg

Nearby Streets

NameAverage PriceAverage SqftDistance
Clovelly Court £ 000.00 KM
Sylvan Grove £ 000.00 KM
Brondesbury Park £ 2,583,33300.00 KM
Gardiner Avenue £ 000.00 KM
Hudson Way £ 625,00000.00 KM

Nearby Transport

NameNLCTLCDistance
Cricklewood1519CRI1.01 KM
Brondesbury Park1438BSP1.40 KM
Brondesbury1437BSY1.81 KM
Kensal Rise1448KNR1.83 KM
Queens Park (London)1419QPW2.34 KM

Nearby Listings

AddressPriceTypeScoreDistance
Teignmouth Road, London NW2 £ 1,395,000BUY7 / 100.00 KM
Teignmouth Road, Willesden Green £ 749,950BUY5 / 100.05 KM
Teignmouth Road, Willesden Green £ 794,950BUY6 / 100.05 KM
Teignmouth Road, Willesden Green £ 794,950BUY6 / 100.05 KM
Teignmouth Road, Willesden Green £ 574,950BUY6 / 100.05 KM

Nearby Properties

AddressPriceDistance
100 Teignmouth Road £ 2,295,0000.02 KM
104 Teignmouth Road £ 785,0000.02 KM
102a Teignmouth Road £ 922,0000.02 KM
102c Teignmouth Road £ 215,0000.02 KM
108c Teignmouth Road £ 308,0000.02 KM