Homewise says ..
Guide price for a Home for Life Lifetime Lease for OVER 60s tailored to your personal circumstances and requirements. Your price may vary. OVER 60S could benefit from SAVINGS of up to 59% from the market value with a one-off payment for a Lifetime Lease on this property. £25...
Property Oracle says ..
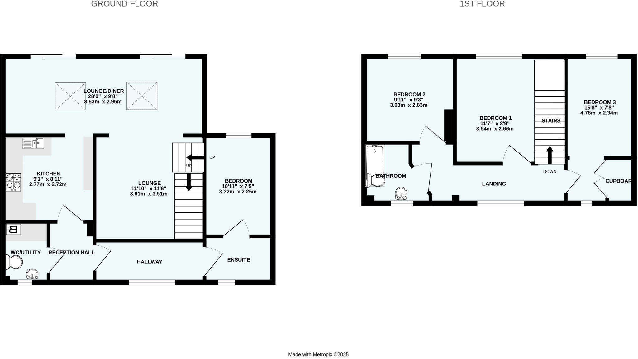
This is a semi-detached property in Shiphay, Torquay, featuring four bedrooms and two bathrooms. The property benefits from a modern interior, a well-maintained garden, and proximity to local schools and transport links. However, the property is significantly smaller than average for the area, and the price per square foot is high, suggesting it may be overpriced.
Therefore, we give this property 6 / 10. *Disclaimer: This is our option and does constitute a recommendation or financial advice. Do your own research. *
- Price
- 4
- Condition
- 8
- Location
- 7
- Land
- 7
- Bedrooms
- 4
- Bathrooms
- 2
- Sqft (est)
- 318.40
The heatmap indicates the level of crime in the area. The color of the heatmap indicates the crime severity and recency.
Metrics Year-on-Year
- Average area value
- 370,455.00 £Increased by 6.00 %
- Est sale value
- 123,539.20 £Increased by 43.70 %
- Average area rental value
- 971.00 £/moDecreased by 11.08 %
- Est letting value
- 318.40 £/mo
- Est rental Yield
- 3.15 %Decreased by 16.00 %
- Crime Rate
- 9.00 %Unchanged by 0.00 %
Agent Activity
Homewise created the listing.
Nearby Schools
| Name | Type | Ofsted | Distance |
|---|---|---|---|
| Shiphay Learning Academy | Academy Converter | 0.08 KM | |
| Sherwell Valley Primary School | Community School | Good | 0.64 KM |
| Torquay Boys' Grammar School | Academy Converter | Good | 0.88 KM |
| Torquay Girls Grammar School | Academy Converter | Outstanding | 1.21 KM |
| Our Lady Of The Angels Catholic Primary School | Academy Converter | Requires improvement | 1.46 KM |
Images
Nearby Streets
| Name | Average Price | Average Sqft | Distance |
|---|---|---|---|
| Water Lane | £ 0 | 0 | 0.00 KM |
| Higher Edginswell Lane | £ 0 | 0 | 0.00 KM |
| South Devon Highway | £ 400,000 | 0 | 0.00 KM |
| South Devon Highway | £ 472,500 | 0 | 0.00 KM |
| Oxenham Garden | £ 0 | 0 | 0.00 KM |
Nearby Transport
| Name | NLC | TLC | Distance |
|---|---|---|---|
| Torre | 3432 | TRR | 2.09 KM |
| Torquay | 3434 | TQY | 3.11 KM |
| Paignton | 3427 | PGN | 5.04 KM |
| Newton Abbot | 3426 | NTA | 6.74 KM |
Nearby Listings
| Address | Price | Type | Score | Distance |
|---|---|---|---|---|
| Exe Hill, Torquay, Devon, TQ2 | £ 258,000 | BUY | 6 / 10 | 0.00 KM |
| Exe Hill, Torquay, Devon | £ 385,000 | BUY | 7 / 10 | 0.01 KM |
| Collaton Road, Torquay, TQ2 | £ 375,000 | BUY | 6 / 10 | 0.14 KM |
| Veille Lane, Torquay, TQ2 | £ 475,000 | BUY | 7 / 10 | 0.23 KM |
| Veille Lane, Torquay, TQ2 | £ 550,000 | BUY | 8 / 10 | 0.24 KM |
Nearby Properties
| Address | Price | Distance |
|---|---|---|
| 18 Exe Hill | £ 205,000 | 0.02 KM |
| 4a Collaton Road | £ 140,000 | 0.10 KM |
| 43 Dart Avenue | £ 142,000 | 0.11 KM |
| 27 Dart Avenue | £ 58,950 | 0.11 KM |
| 37 Dart Avenue | £ 159,950 | 0.11 KM |