Joseph Scott says ..
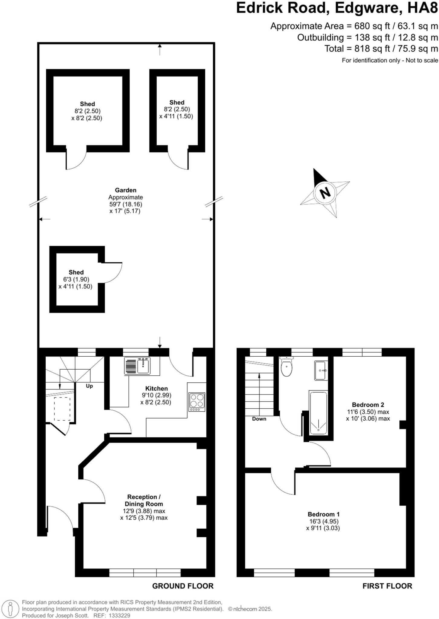
Presenting an immaculately maintained 2-bedroom mid-terraced house located a mere 0.8 miles from Edgware Underground Station, providing easy access to the Northern Line.
Property Oracle says ..
Therefore, we give this property 7 / 10. *Disclaimer: This is our option and does constitute a recommendation or financial advice. Do your own research. *
- Price
- 7
- Condition
- 7
- Location
- 8
- Land
- 7
- Bedrooms
- 2
- Bathrooms
- 1
- Sqft (est)
- 655.95
The heatmap indicates the level of crime in the area. The color of the heatmap indicates the crime severity and recency.
Metrics Year-on-Year
- Average area value
- 758,663.00 £Increased by 3.95 %
- Est sale value
- 312,232.20 £Decreased by 26.99 %
- Average area rental value
- 2,364.00 £/moDecreased by 11.43 %
- Est letting value
- 655.95 £/moDecreased by 50.00 %
- Est rental Yield
- 3.74 %Decreased by 14.81 %
- Crime Rate
- 7.00 %Unchanged by 0.00 %
from 729,814.00 £
from 427,679.40 £
from 2,669.00 £/mo
from 1,311.90 £/mo
from 4.39 %
from 7.00 %
Agent Activity
Joseph Scott created the listing.
Nearby Schools
| Name | Type | Ofsted | Distance |
|---|---|---|---|
| Watling Park School | Free Schools | Good | 0.33 KM |
| Menorah Foundation School | Voluntary Aided School | Good | 0.38 KM |
| Menorah Grammar School | Other Independent School | Inadequate | 0.38 KM |
| The Northgate School | Miscellaneous | 0.69 KM | |
| Northgate School | Pupil Referral Unit | Outstanding | 0.69 KM |
Images
Nearby Streets
| Name | Average Price | Average Sqft | Distance |
|---|---|---|---|
| Langham Road | £ 350,000 | 0 | 0.00 KM |
| Compton Close | £ 339,000 | 0 | 0.00 KM |
| Barnfield Road | £ 0 | 0 | 0.00 KM |
| Edwin Road | £ 0 | 0 | 0.00 KM |
| A5 | £ 441,650 | 0 | 0.00 KM |
Nearby Transport
| Name | NLC | TLC | Distance |
|---|---|---|---|
| Mill Hill Broadway | 1527 | MIL | 1.99 KM |
| Hendon | 1522 | HEN | 4.53 KM |
| Elstree And Borehamwood | 1542 | ELS | 5.06 KM |
| Kenton | 1399 | KNT | 6.34 KM |
| South Kenton | 1453 | SOK | 6.35 KM |
Nearby Listings
| Address | Price | Type | Score | Distance |
|---|---|---|---|---|
| Edrick Road, Edgware, HA8 | £ 425,000 | BUY | 7 / 10 | 0.00 KM |
| Deansbrook Road, Edgware | £ 540,000 | BUY | 6 / 10 | 0.08 KM |
| Wenlock Road, Edgware, Middlesex, HA8 | £ 399,950 | BUY | 5 / 10 | 0.13 KM |
| Wenlock Road, Edgware, Middlesex, HA8 | £ 589,950 | BUY | 6 / 10 | 0.13 KM |
| 54 Wenlock Road, Edgware, HA8 9JF | £ 275,000 | BUY | 5 / 10 | 0.13 KM |
Nearby Properties
| Address | Price | Distance |
|---|---|---|
| 7 Edrick Walk | £ 450,000 | 0.05 KM |
| 25 Edrick Walk | £ 230,000 | 0.05 KM |
| 15 Edrick Walk | £ 240,000 | 0.05 KM |
| 13 Edrick Walk | £ 134,000 | 0.05 KM |
| 88 Deansbrook Road | £ 241,150 | 0.08 KM |